The Coast Cafe & Bakery

Project details

This project involves the design and furnishing of a small rustic cafe, The Coast Cafe & Bakery, within an existing building. Program stipulations include that the client/owner of the cafe wants to provide customers with an ambiance that is refined but comfortable. She wanted the cafe to convey a sense of community and be the "neighborhood hub", a place that serves carefully curated, organic, and house-made foods, while preserving a familial casual vibe.

The provided floorplan, along with its windows, walls, and FF&E were pre-set. The objective was to come up with a concept and color palette for the cafe, select appropriate finishes for the floors, walls, ceiling, casework and countertops, and to select dining furniture that corresponded to the size/seating of the tables and chairs shown on the provided floorplan. Lastly, industry standard specifications of each piece of furniture and finishing material used was required.

Area of site

900 ft2

Date

04/2023

Status of the project

Finished @ design development phase

Tools used

Photoshop, InDesign, Revit, Excel

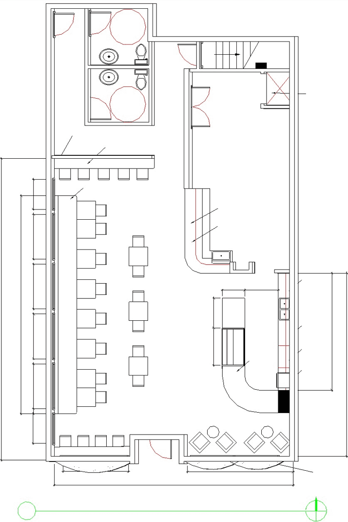
Existing Floor Plan

At right, is the pre-established floor plan for the cafe. The objective was to design only the south end of the restaurant - specifically the seating area and the bakery/juice bar counter area. The kitchen, halls, and bathroom are exempt from this design.
While all finishes and furniture was expected to be customized, the basic layout and amount of seating needed to stay consistent with this plan.

Southern(lower) half of this floorplan was within design scope.

Concept Development

Concept:
Stinson Beach Cottage

Concept: Stinson Beach Cottage

Furniture and Finish Plans

Here, I chose specific pieces of furniture that lent toward my concept and called out their location on the floorplan.
Here, I selected finishes for my floors, walls, ceiling, countertops, casework, and window treatments.

Specifications

As this assignment was for a 'Material Use' class, creating a neat and accurate specification list of all selected materials used for finishings and furnishings was very important. I've included all of my selections, along with all pertinent construction and care information. Each materials placement within the cafe can be seen on the Furniture or Finish plans above.

Cabinet Detail

Another type of specification, cabinet details are important for construction execution and absolutely crucial in custom casework such as the casework to be installed in The Coast Cafe & Bakery by HC Kitchen Cabinets of San Francisco. I created this detail page to illustrate cabinet material, hardware, hinge-type, and a hinge section.

Cabinet Detail

Perspective Sketches

After implementing my finish and furnish selections, I used tracing paper, pen, and colored pencil to sketch the space out.

Renderings

Using Revit's Cloud Rendering, I generated these images of the Revit model I built. All colors, materials, and furniture in the model are the exact materials I selected as they appear from the manufacturer.

Southeast Corner View: Juice & Espresso Bar/ Checkout and Lounge Area
Northwest Corner: Accent Wall and Kitchen Service Window
South Wall: Lounge Area and Counter Seating
Northeast View: Full Floor Perspective