Kravet Design Furniture & Furnish Plan

Project details

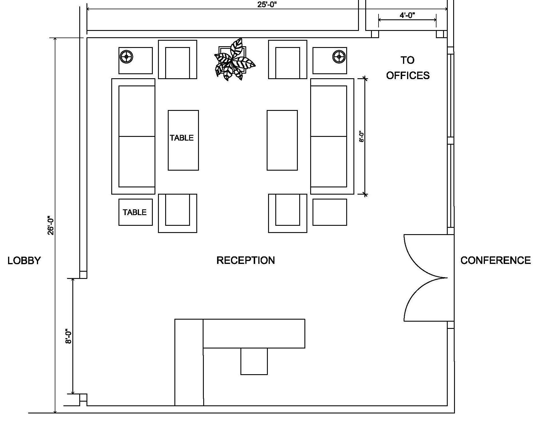
This project involved the design of a furniture and finish plan for the reception area of a real estate firm. The objective was to create a plan using textiles and furniture exclusively from Kravet Inc, and to explain why each item selected was appropriate for this space. The floorplan and arrangement of furniture was pre-set, so the primary goal was to use furniture pieces and textiles that were exciting to the eye and commercial-tested. Kravet specializes in unique and luxury textiles, with an inventory that ranges from contemporary to archival.

I decided on a "luxury earthen" concept. This concept translated to my color palette, combining contrasting earthen colors such as greens, browns, and neutrals. The concept also translated to the aesthetic I had in mind; an office that conveyed success and luxury, but still exuded warmth and comfortability through the use of natural finishes. You will find my (3) stages of the design process below.

Area of site

650 ft2

Date

March 2023

Status of the project

Finished through Schematic Design Phase

Tools used

Photoshop, Revit, Word

Stages 1 & 2:

Stage one consisted of creating a concept, color palette, and mood board for the project. Stage two consisted of selecting furniture and furnishings from Kravet's website that complemented my concept and space. See below for the execution of these stages, as well as an image of the unfinished floorplan of the reception area.

Specifications

A key part of this assignment was to accurately list the specifications of every material used in the design, and to understand the various tests each material undergoes.

Result

Using Photoshop, I implemented all of the Kravet finishes I selected during Stage 2 to the blank furniture plan.

This project was a great success. I believe the resulting reception furniture plan seen above was an excellent reflection of my initial concept and aesthetic. The project was submitted to Kravet for their Spring 2023 student design competition and was given a top five finalist award.
Completing this project greatly furthered my knowledge of materials, material testing, and how to properly specify materials.