Cho Ca - Vietnamese Restaurant

Project details

This project marked my introduction to interior lighting design. The final project of my Lighting Design class at AAU, the objective for the project was to design a restaurant for Michelin-rated chef, David Phu, a Vietnamese American from Oakland, at a site directly above the Pacific Ocean on San Francisco's Fisherman's Wharf. While the project spans from the Programming phase through the Schematic Design phase, the bulk of the project's focus was on learning and implementing various lighting design practices that aligned with our chosen concept for the restaurant.

The first half of this project is purely lighting study research. In the second half, I establish my concept for the restaurant, the lighting strategies I intend to use, and finally plans, elevations, specifications and renderings of the completed front-of-house area of the restaurant.

Area of site

2500 ft2

Status of the project

Complete thru Schematic Design Phase

Tools used

Revit, InDesign, Photoshop

Concept Development

The concept for this project, Vietnamese Fish Market, was selected after a brainstorming session, detailed below. At right is the concept statement and rationale behind the selected name for the restaurant: Co Cha.

Working from my concept, I used lighting strategies that would achieve 3 goals:

  1. Diffuse the daylight penetrating the ample fenestration;

  2. Provide functional lighting;

  3. Provide decorative/ambient lighting that emphasizes focal points and the project concept.

Furniture Plan, Reflected Ceiling Plan & Elevations

Furniture Plan for public areas of restaurant. Seats 100. North, south and east sides of restaurant are bordered by ocean.
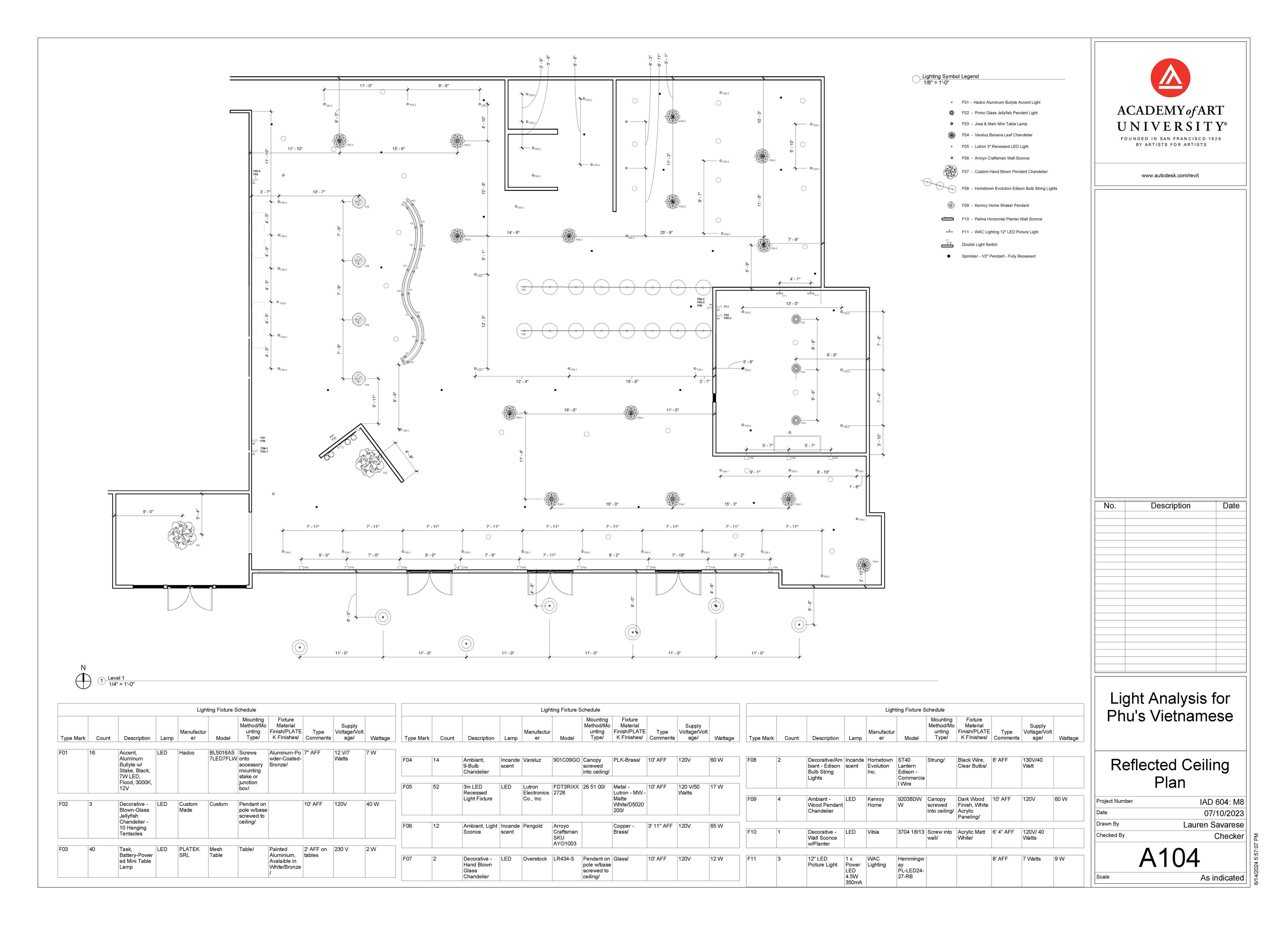
RCP for public areas of restaurant. Light fixture legend at top right. Light fixture schedule at bottom.
As part of the project requirements, lighting for art illumination was chosen and utilized in the Private Dining Room.

Lighting Study & Specs

At right in the specification list of all non-recessed lighting found on the reflected ceiling plan. Below, is a lighting study showing how the restaurant interior interacts with morning, afternoon and evening daylight. Material and fixture choice is also explained as they relate to lighting strategies.

Renderings

Using Revit's Cloud Rendering, the following images were generated from my Revit model of the restaurant. At right, the south seating area, with views of the seafood station and bar can be seen. Below, is the Southwest seating alcove, the host stand upon entry, and the seafood station facing north, respectively.

Northwest Perspective - South Seating Area with Bar in background
Seafood station
Southwest perspective of Bar
Southeast perspective of North seating area, featuring art installation along West wall.
West perspective of Private Dining Room
Southeast perspective of South Seating Alcove.

Results

The project was a great introduction to interior lighting design. The biggest take away was understanding the impact daylight can have on interiors, and how to diffuse the light in a manner consistent with the concept of the interior. Looking back at this project now, the lack of negative space on my presentation pages bothers me, but of course, this is indicative on my progression in design documentation.