Wraparound Rear Extension & High End Layout Changes, Rochester - Planning Approved

Project details

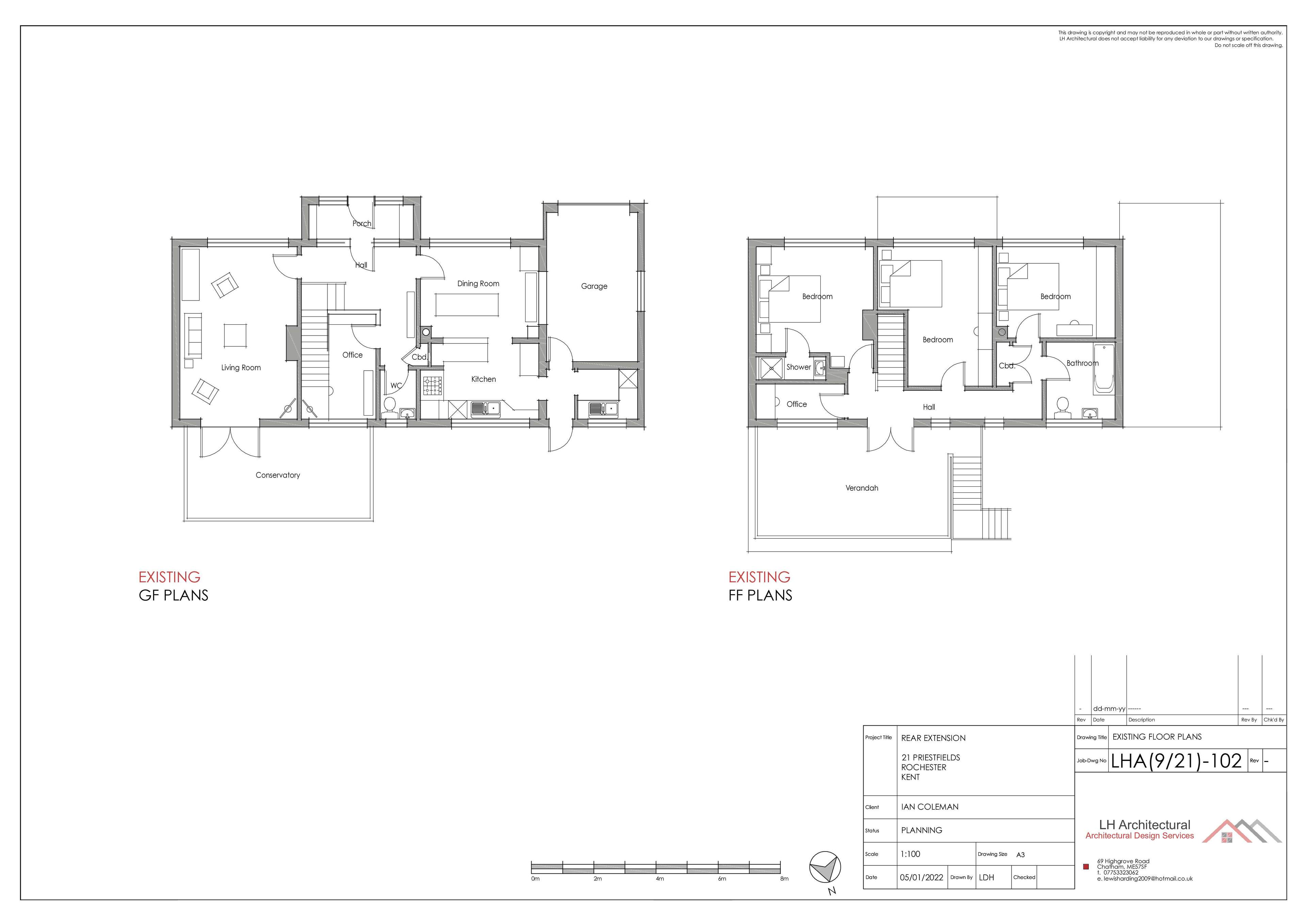
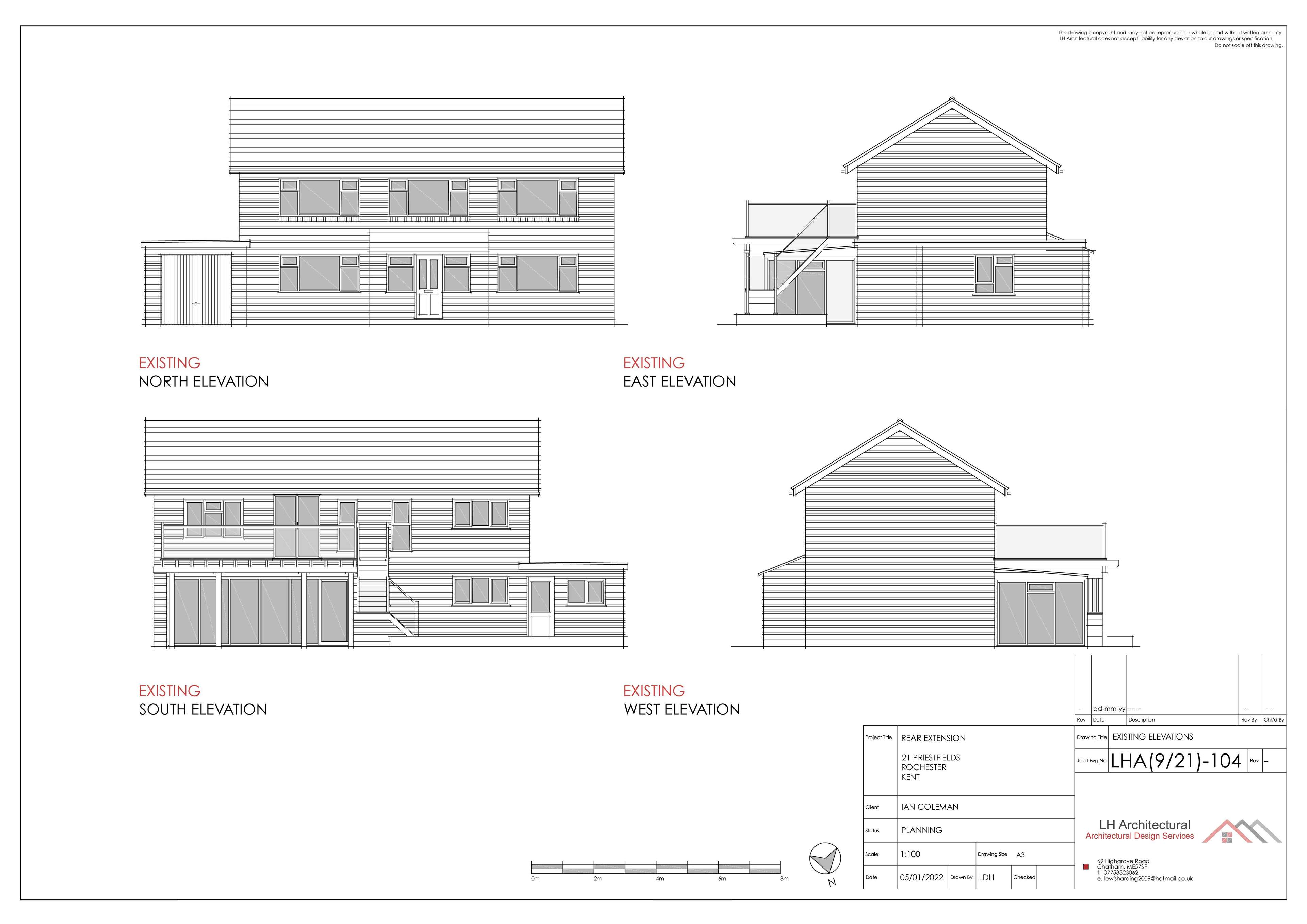
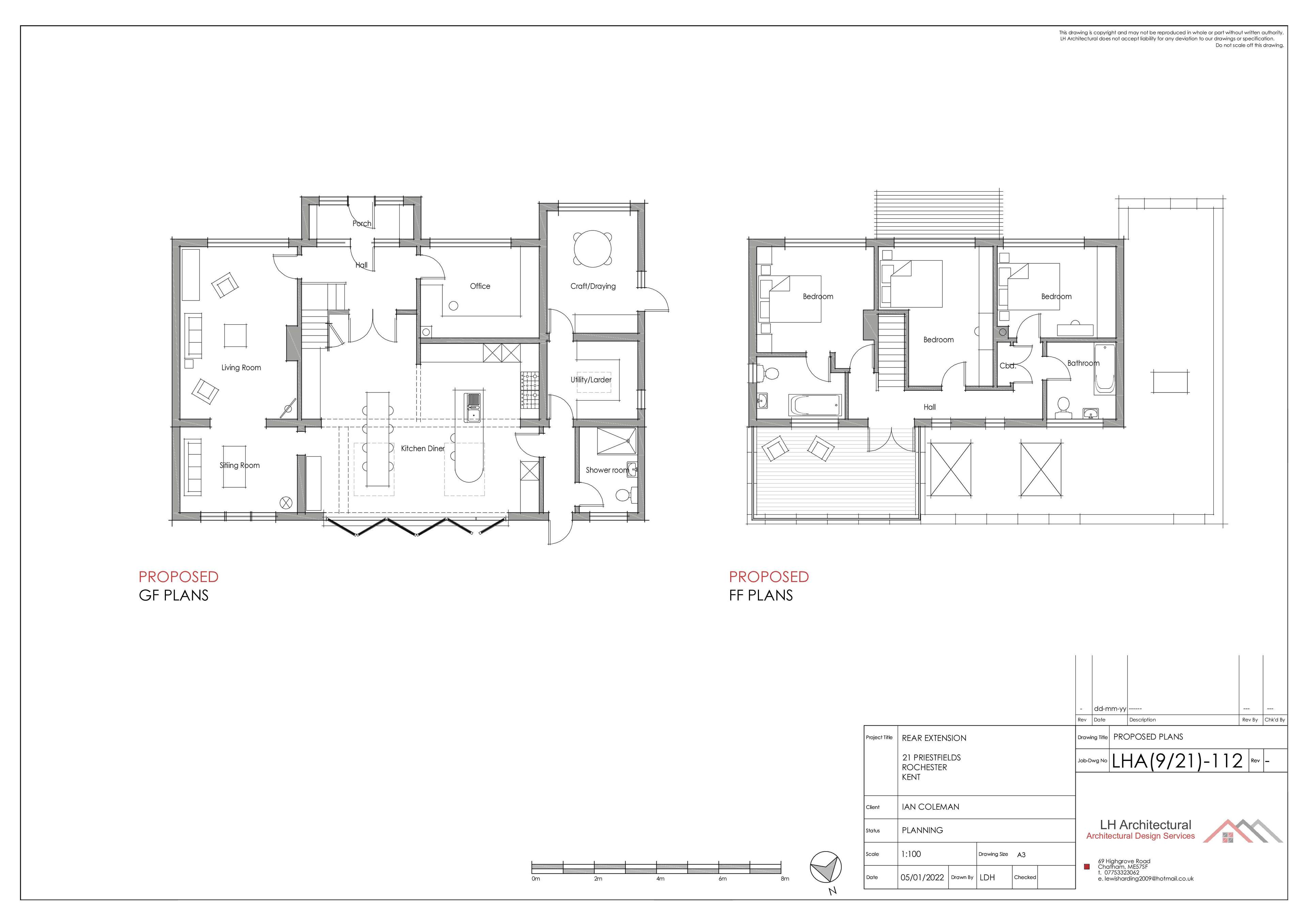
This project involved an extensive development at the ground floor level to add a large rear extension and conversion of an existing garage to create the ultimate daily living space.

The client wanted a grand central room with an open planned kitchen perfect for family dining with auxiliary spaces to allow them to also have their own space and maximise storage off of the main kitchen. we replanned to ground floor moving the office from the dark understairs cupboard to the front of the house, along with the craft room and kept the family spaces at the rear looking onto the south facing garden through a large set of bifolding doors.

the project allowed the client couple to have each his and hers spaces while being in such close proximity to the heart of the house, where they can relax and cater for the entire family.

Date

2022

Status of the project

Under construction, Planning Approved

Tools used

AutoCAD

Results

The project was a great success. The project was completed on time, and the client was very satisfied with the final result. The design plan was executed effectively, and the resulting space has exceeded expectations. The project is currently under construction.