Second Storey & Rear Extension, Sevenoaks - Awaiting Planning

Project details

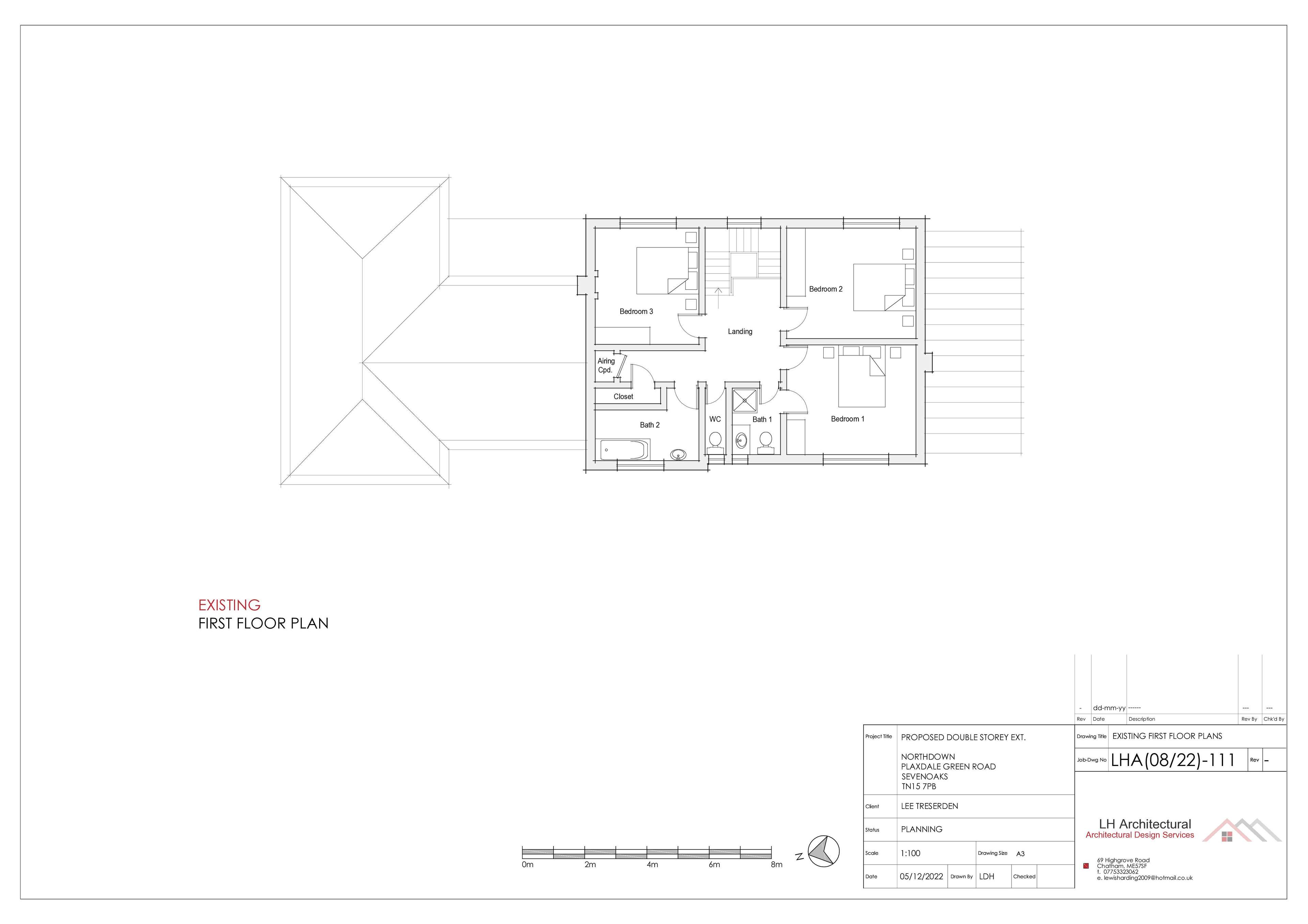
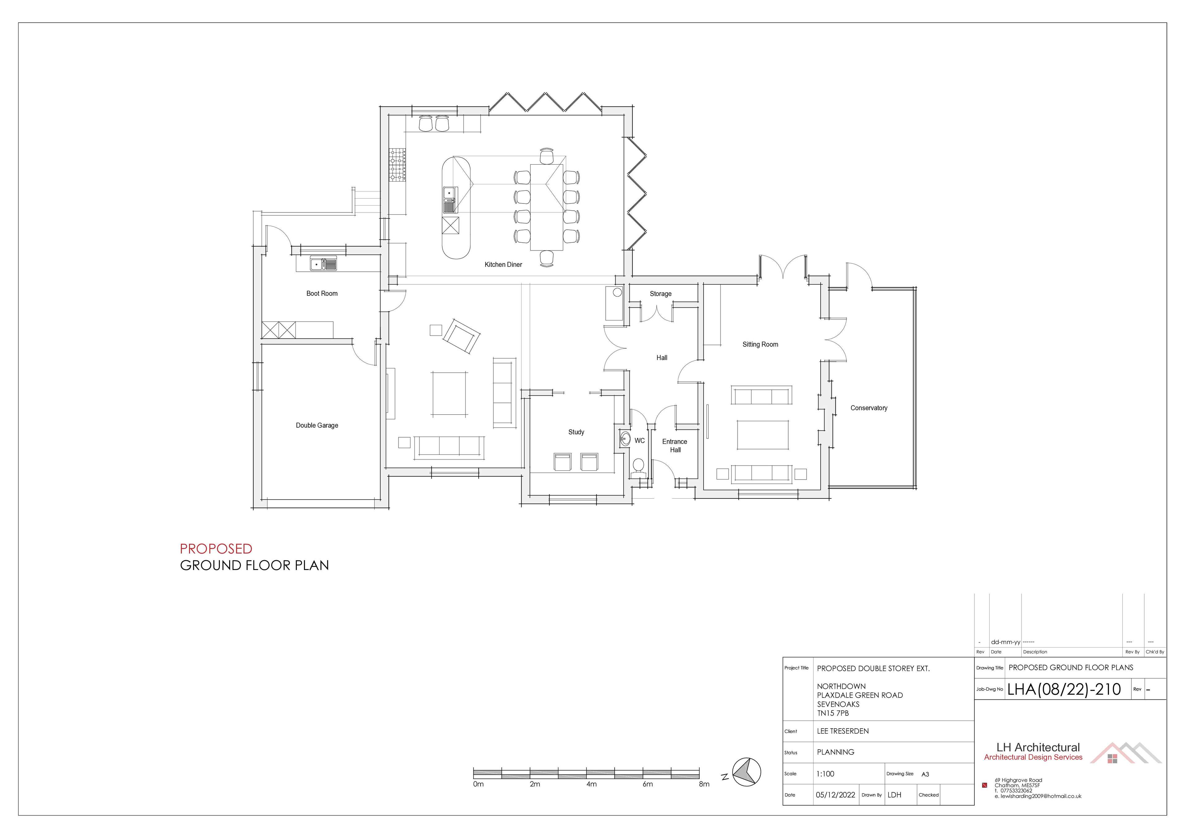
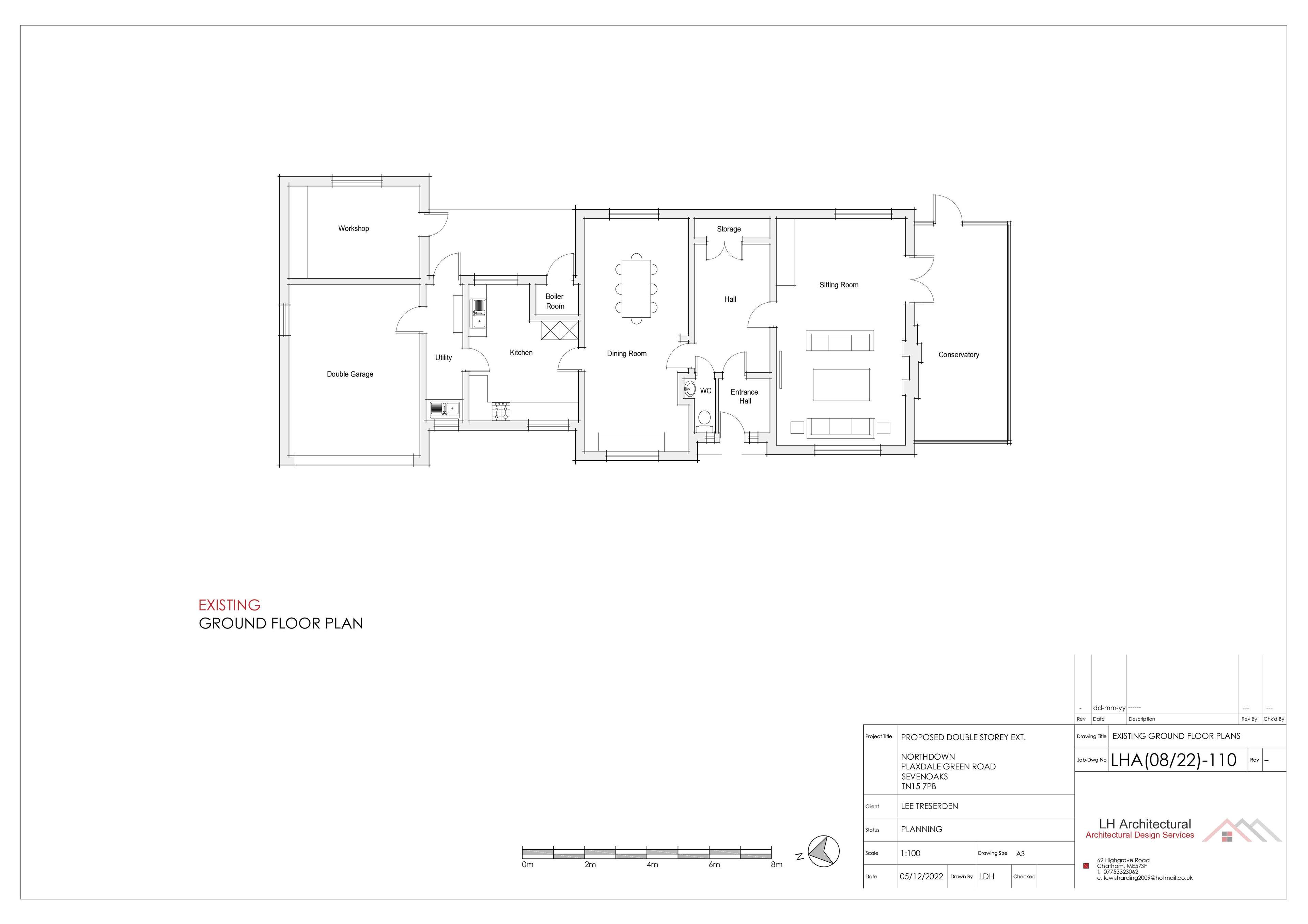
This project was to resubmit a lapsed planning application from a few years ago but with the added request that their kitchen be extended and rearranged to enhance the clients day to day living and capture the stunning views to the rear of the property.

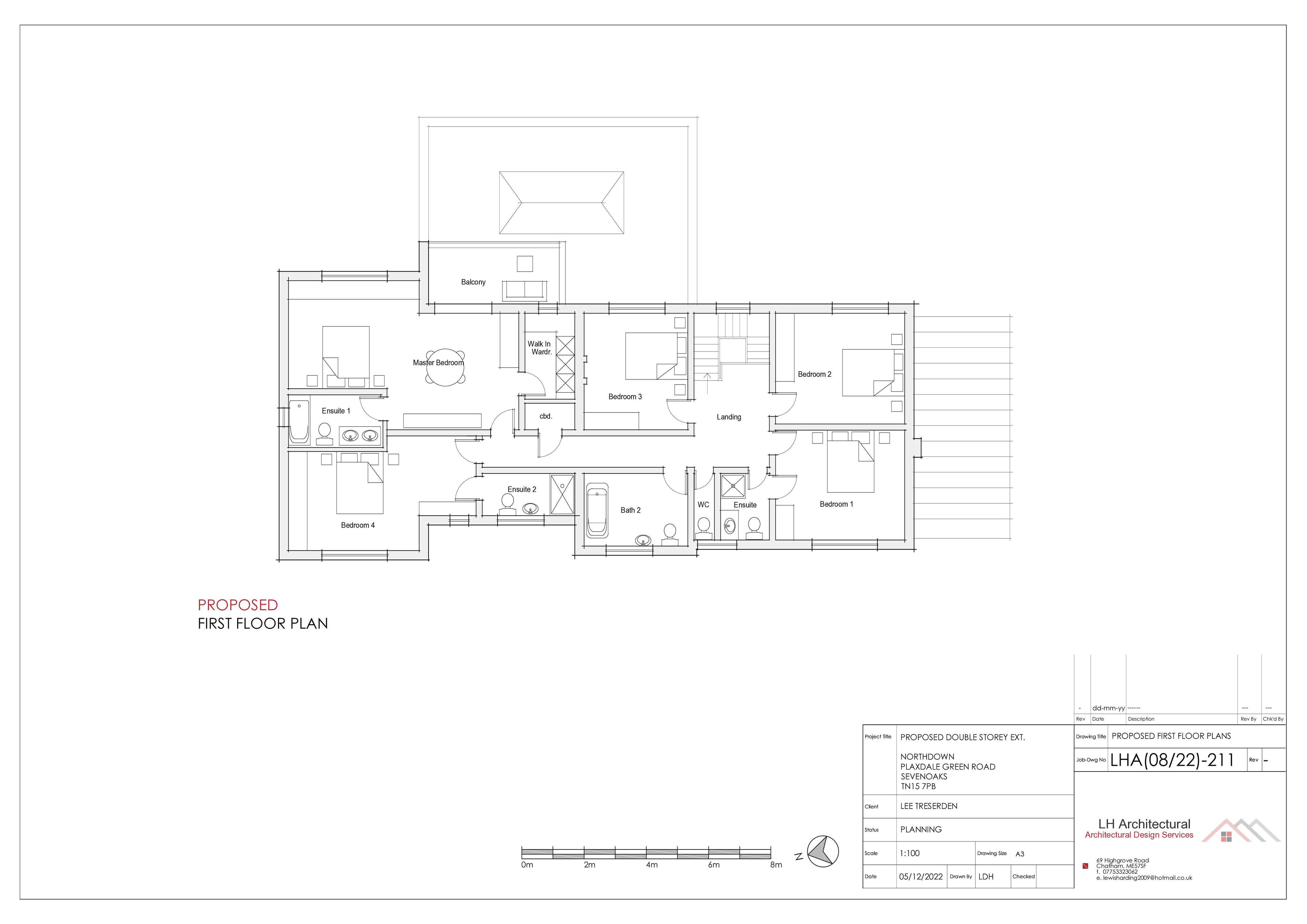
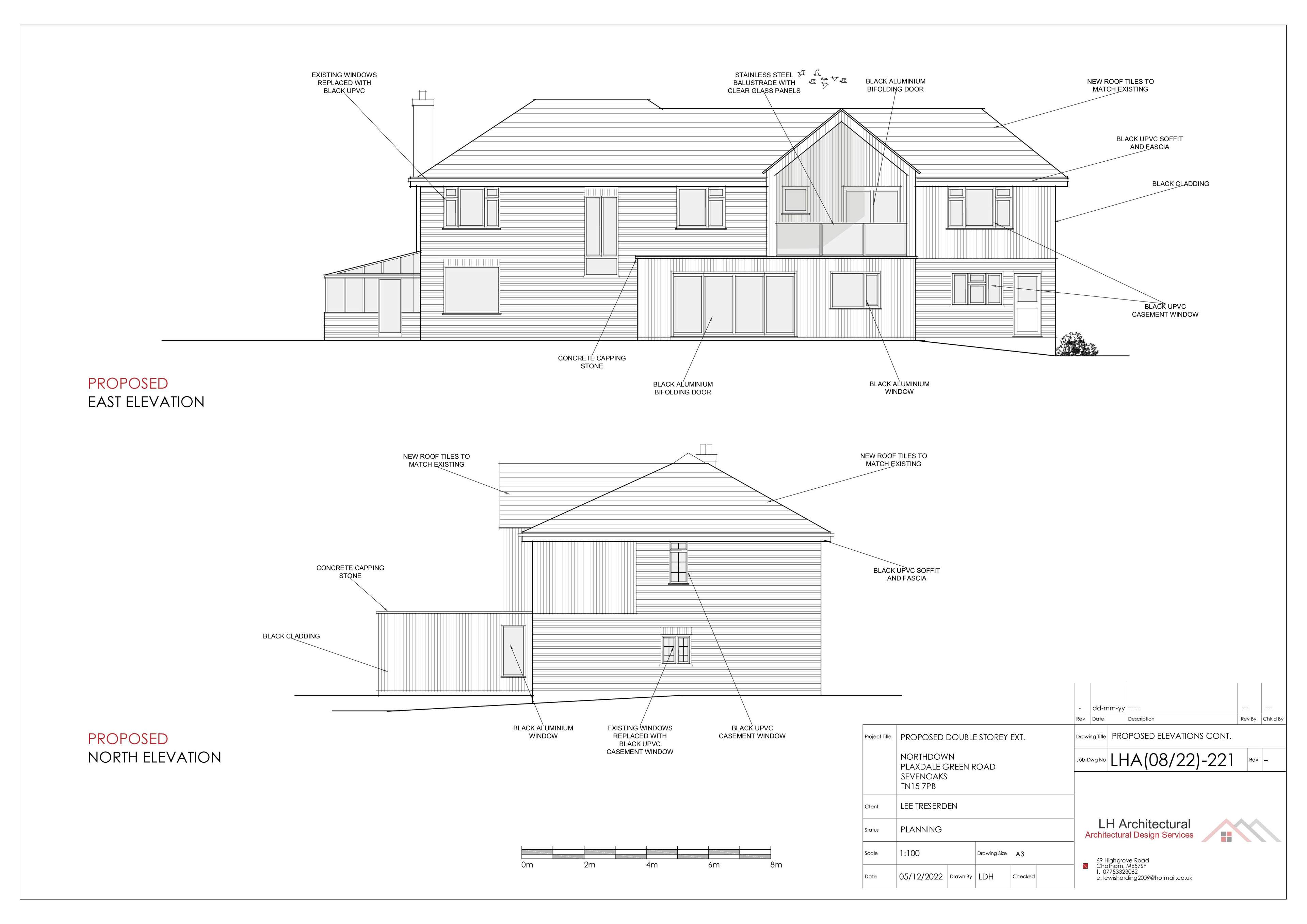
I reconfigured both the ground and first floor to maximise usable space and minimise hallways/through rooms to create a space downstairs where the family could spend their evenings together. It was also imperative to create a space that backed directly onto the garden that could be opened up and enjoyed as one.

Upstairs the client's top priority was to get their own master suite where they could spend their evenings and lazy Sundays, ideally with a balcony so they could have their own personal space with plenty of space to relax during all times of the day.

Date

2022

Status of the project

Pre Planning

Tools used

AutoCAD

Results

The project is ongoing and planning is proving difficult with the site being located in a green belt, we are currently amending the design to ensure openness and impact on the footprint within the green belt is minimised.