Public House Wraparound Extension, Cooling - Planning Approved

Project details

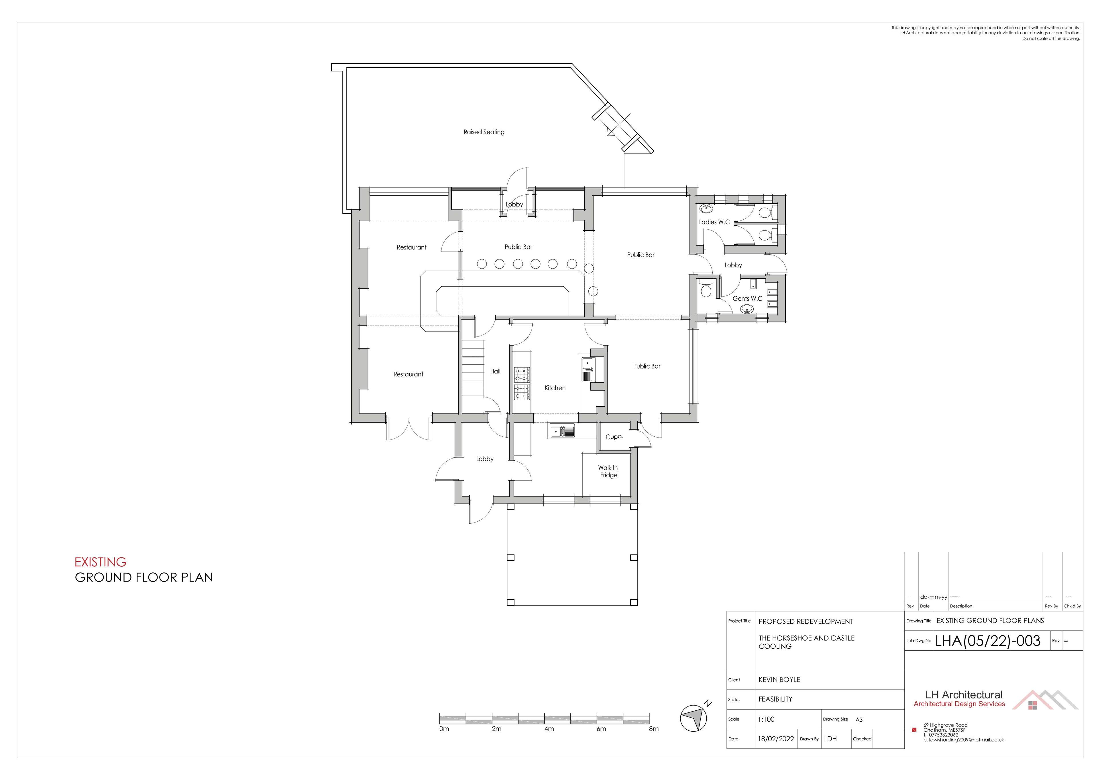
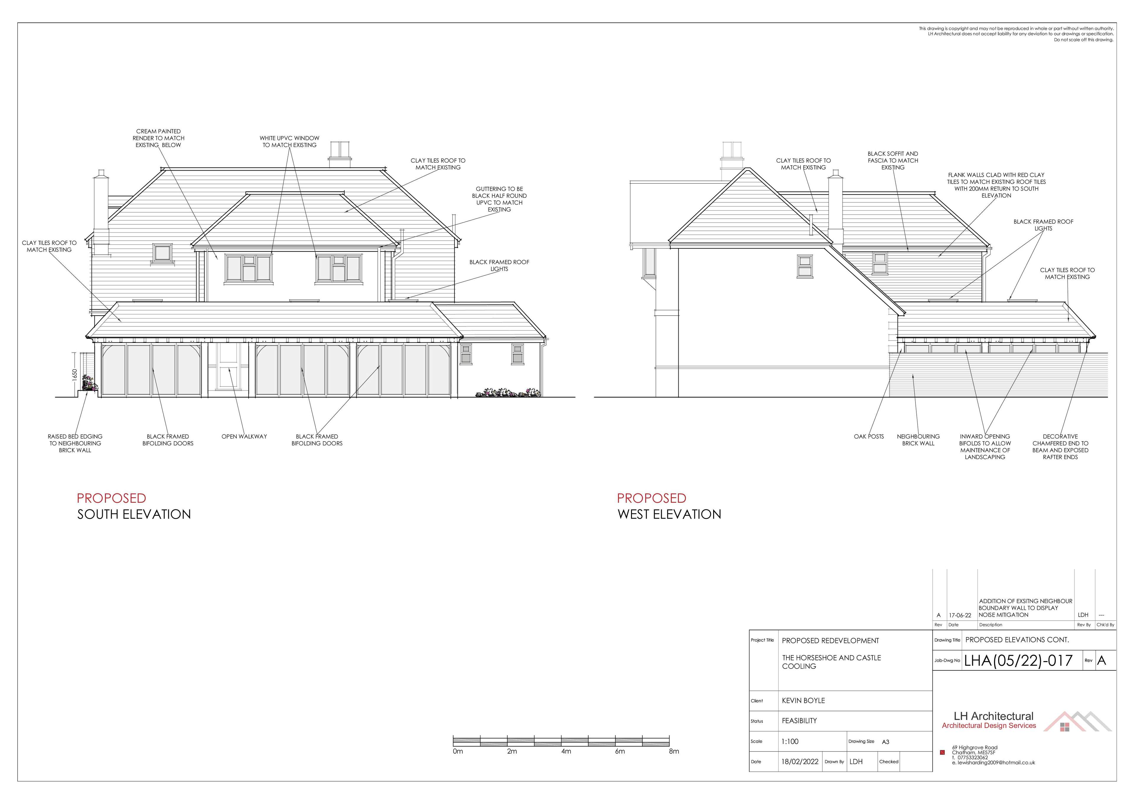
This project was born from the adaptions the pub had to make through the Covid 19 era. Social distancing meant tables being spaced apart, more sit down meals with a greater demand for tables and designated seating.

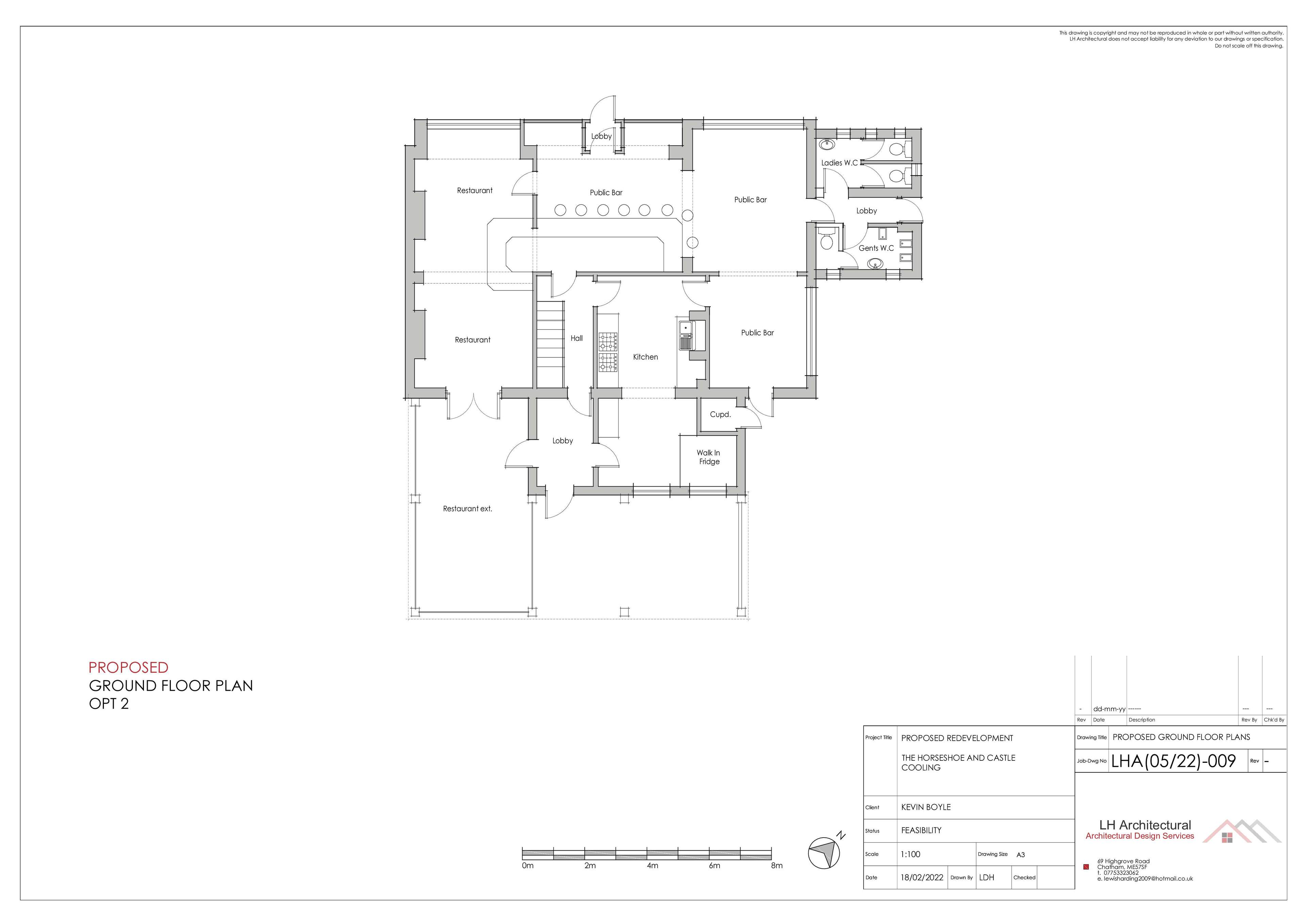
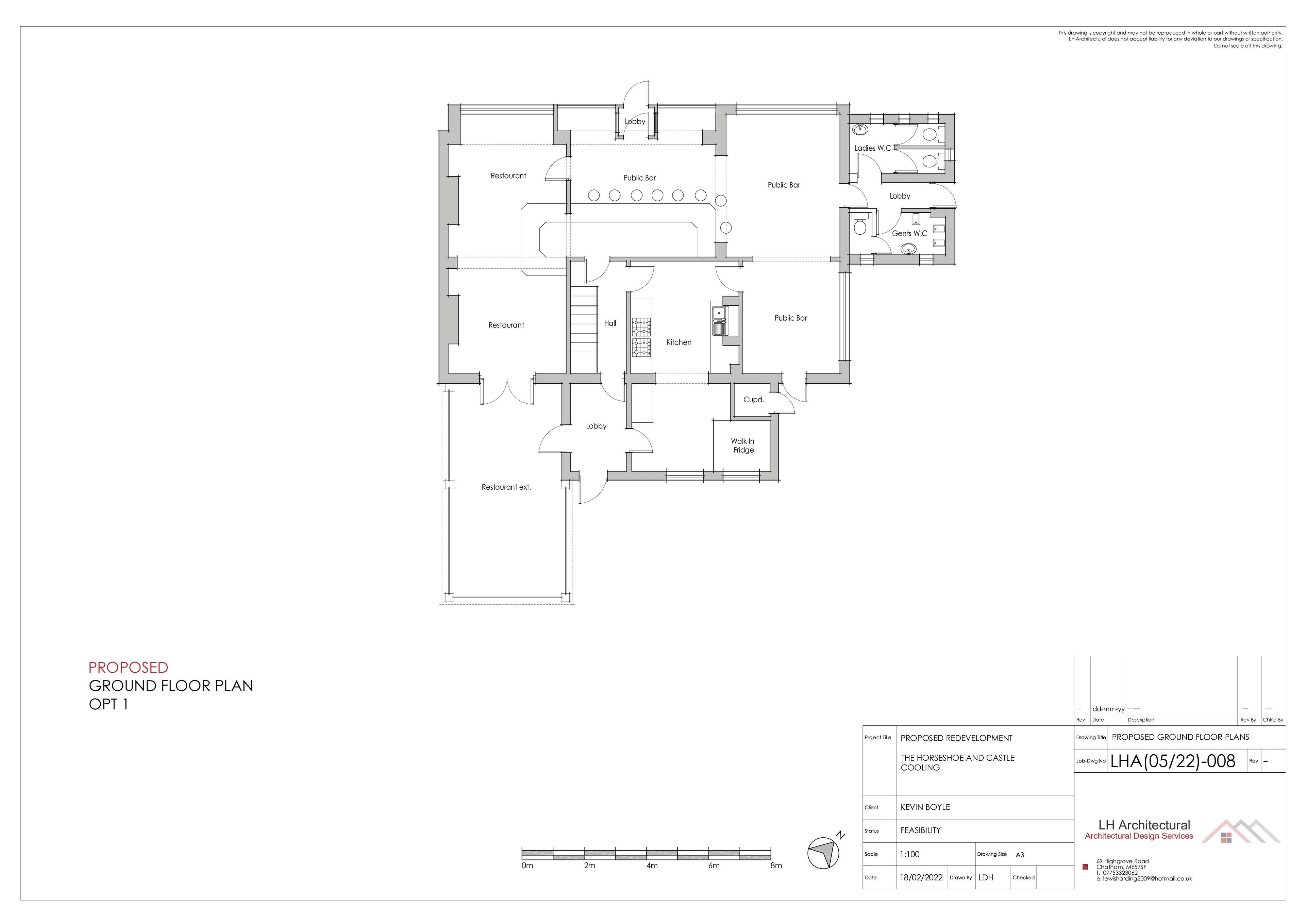
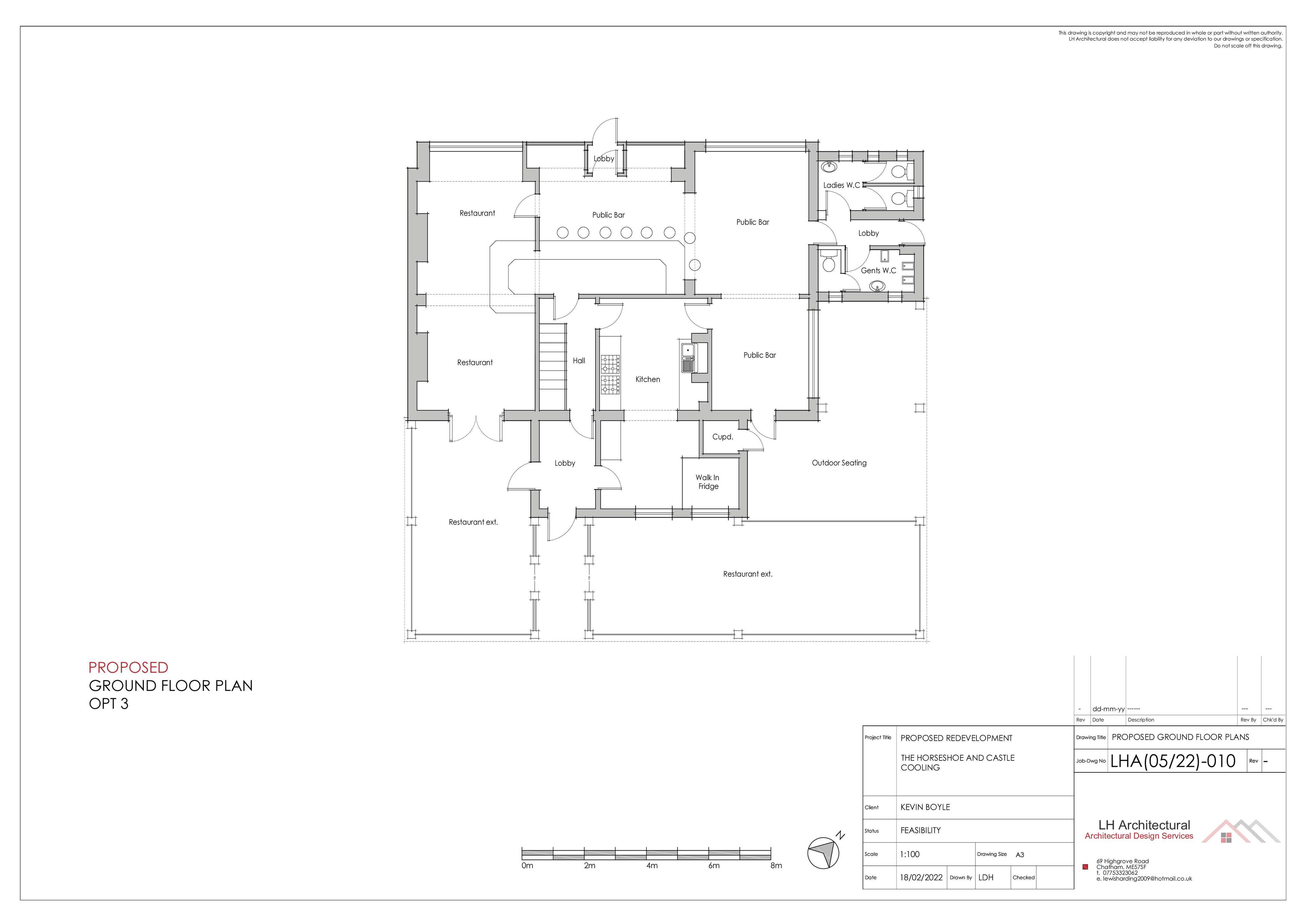
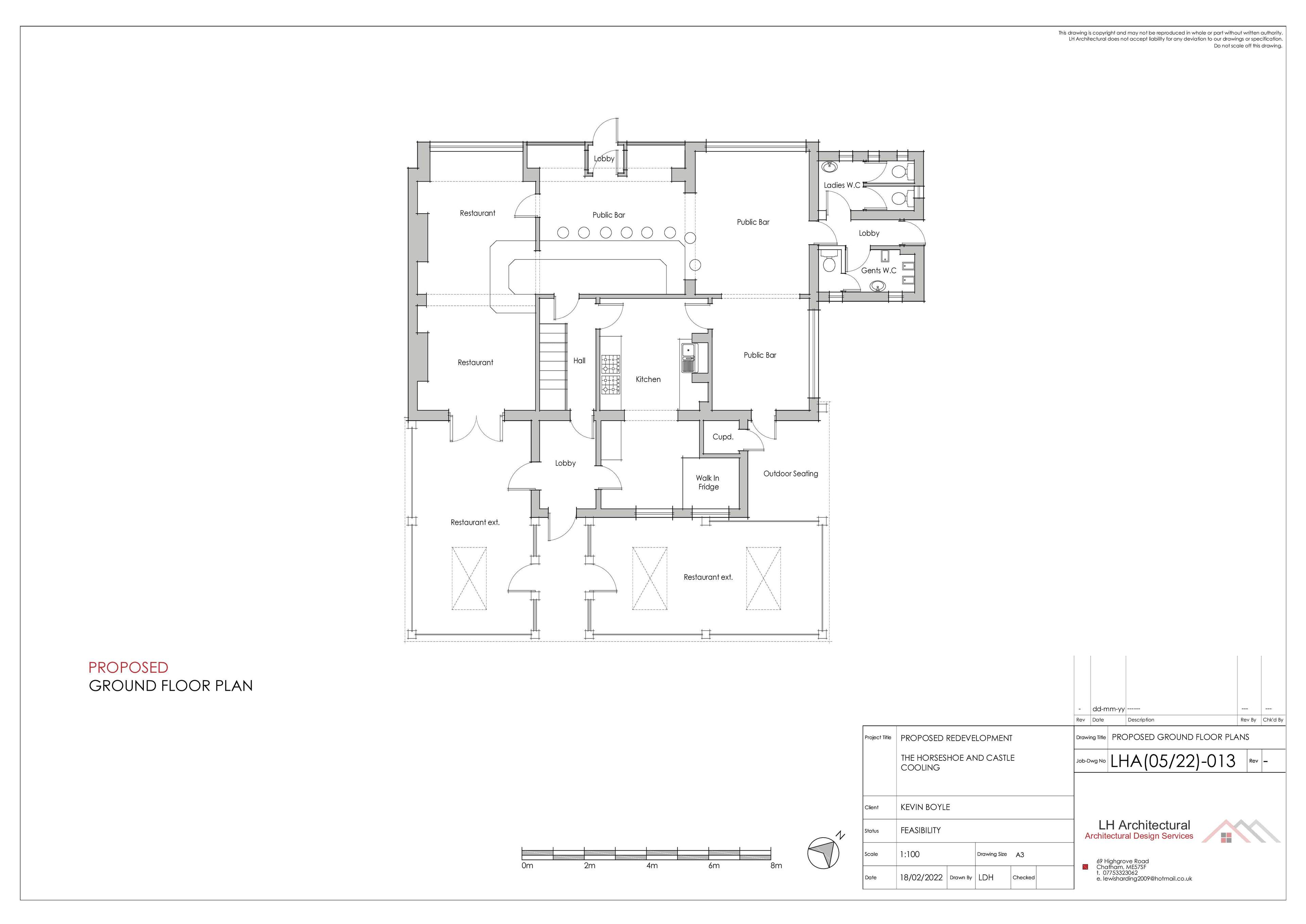
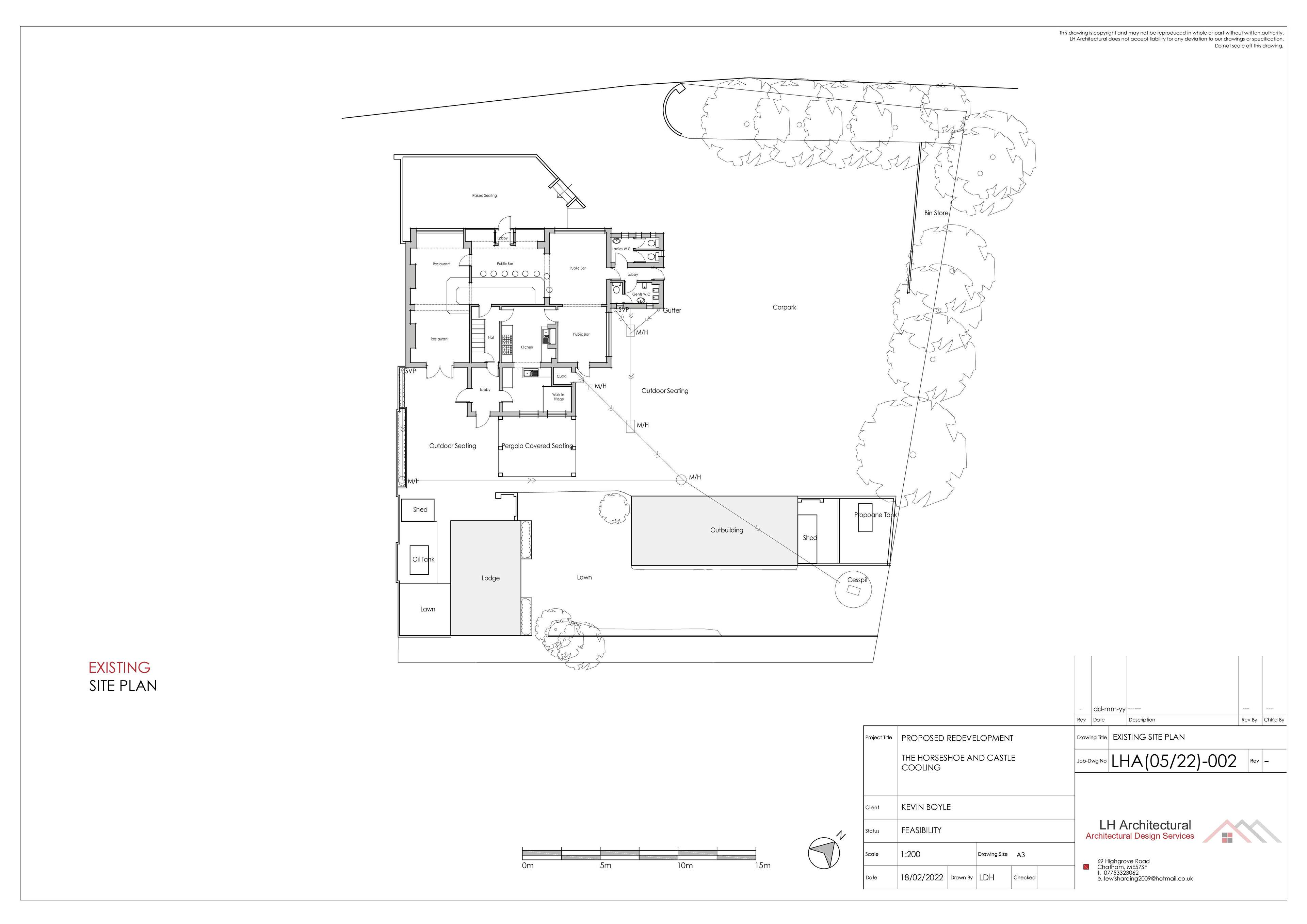
My client came to me requesting that we make use of his extended garden that has been neglected and could be repurposed to improve customer satisfaction and ideally increase footfall year round with this all weather design solution.

We kept the timeless timber and glass material pallet to allow maximal daylight to not limit the main benefactor of the garden that is the sun but equally create enough shade/shelter that people can safely drink/eat in all weathers.

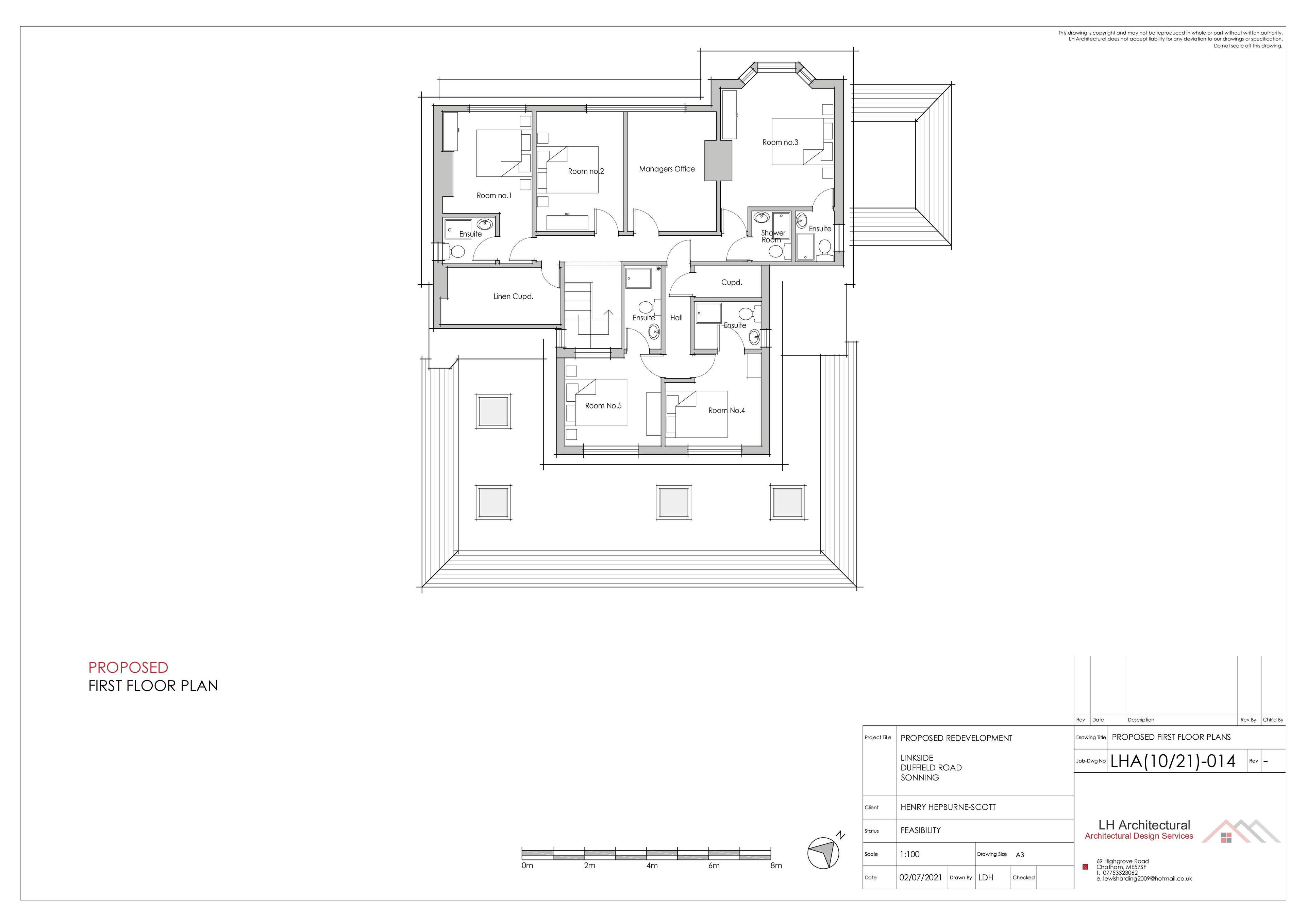
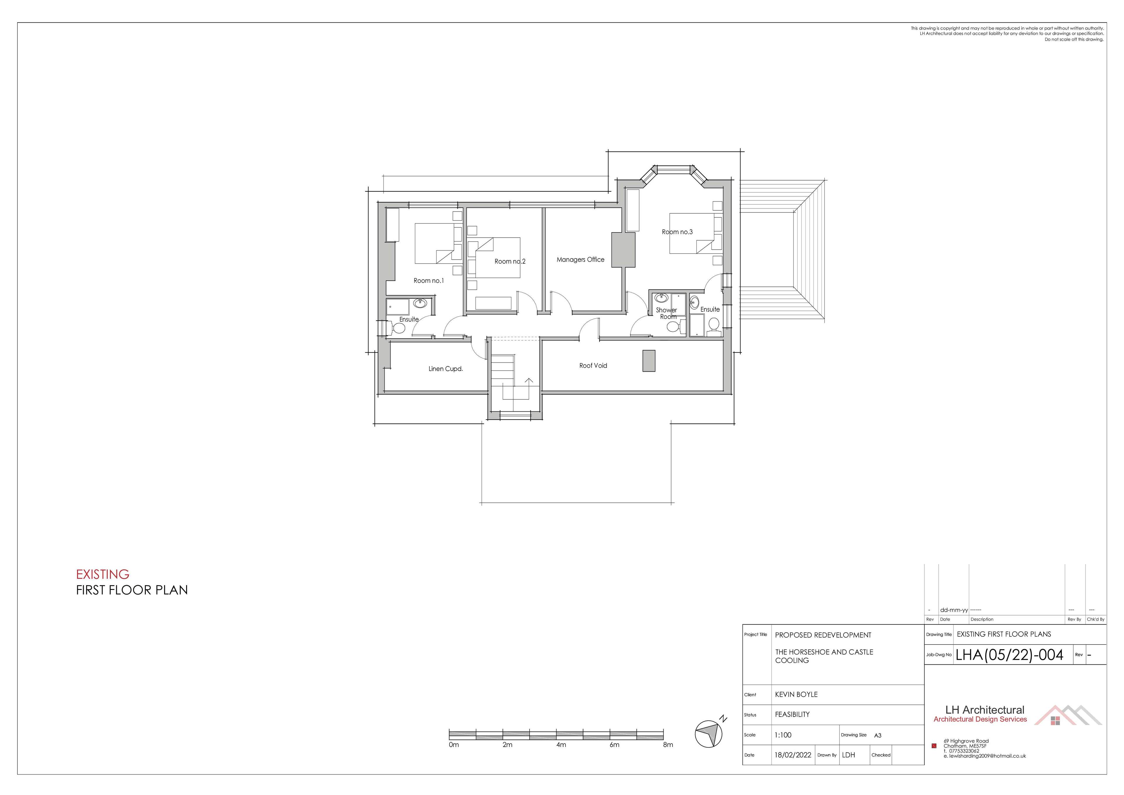
The extra accomodation upstairs allows for increased revenue from overnight stays/ formal dining areas and a separate entrance for BnB customers to keep the two businesses separate and as professional as possible.

Date

2022

Status of the project

Planning Approved

Tools used

AutoCAD

Results

The project was a great success. We had to ensure that the noise from the increased capacity of the pub was mitigated through some design alterations. The client is due to start construction ready for summer 2023 where this lovely addition will be put to use.