Growing Family Double Extension, Renovation & Self Contained Accessible Annexe, Higham - Planning Approved

Project details

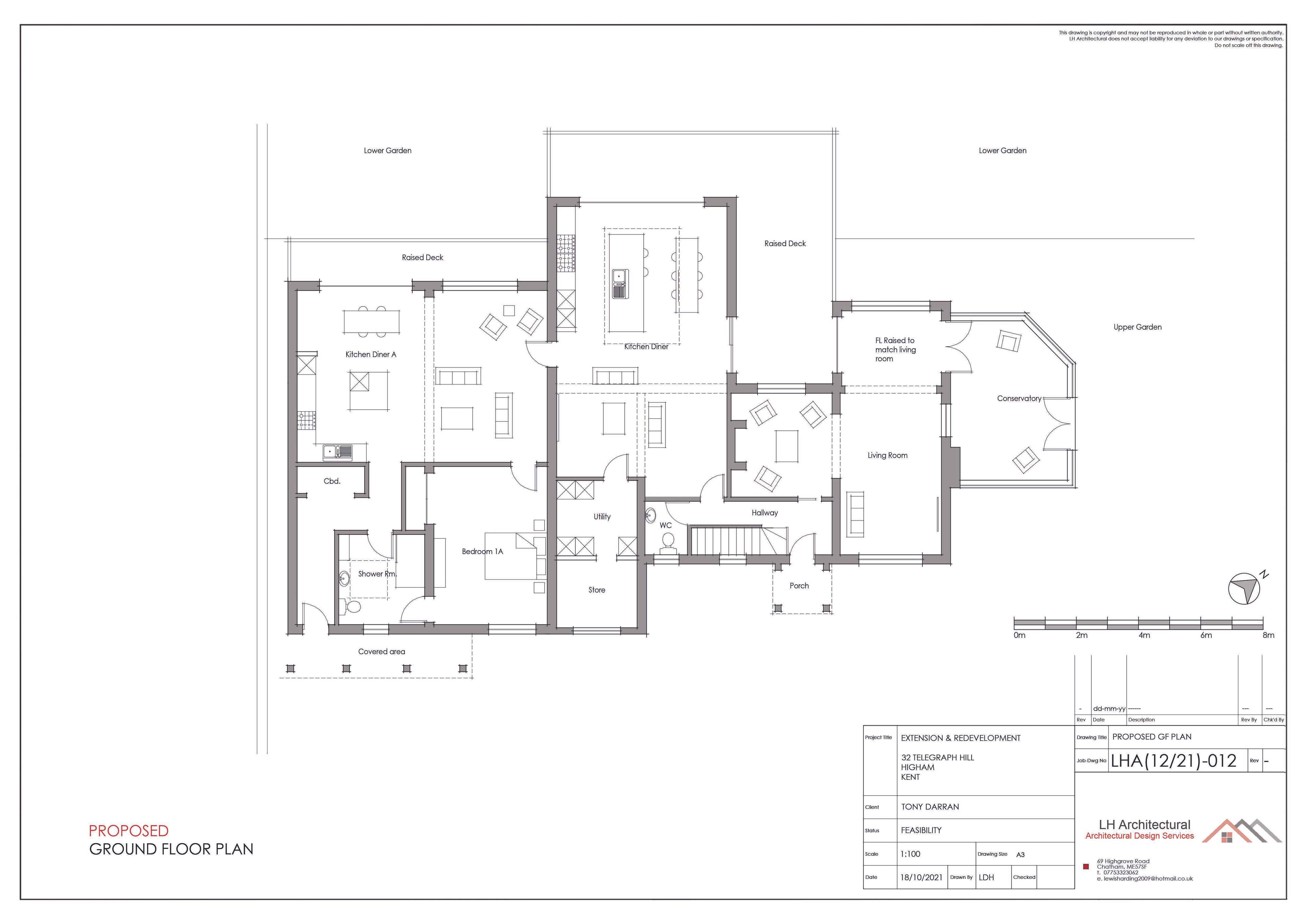
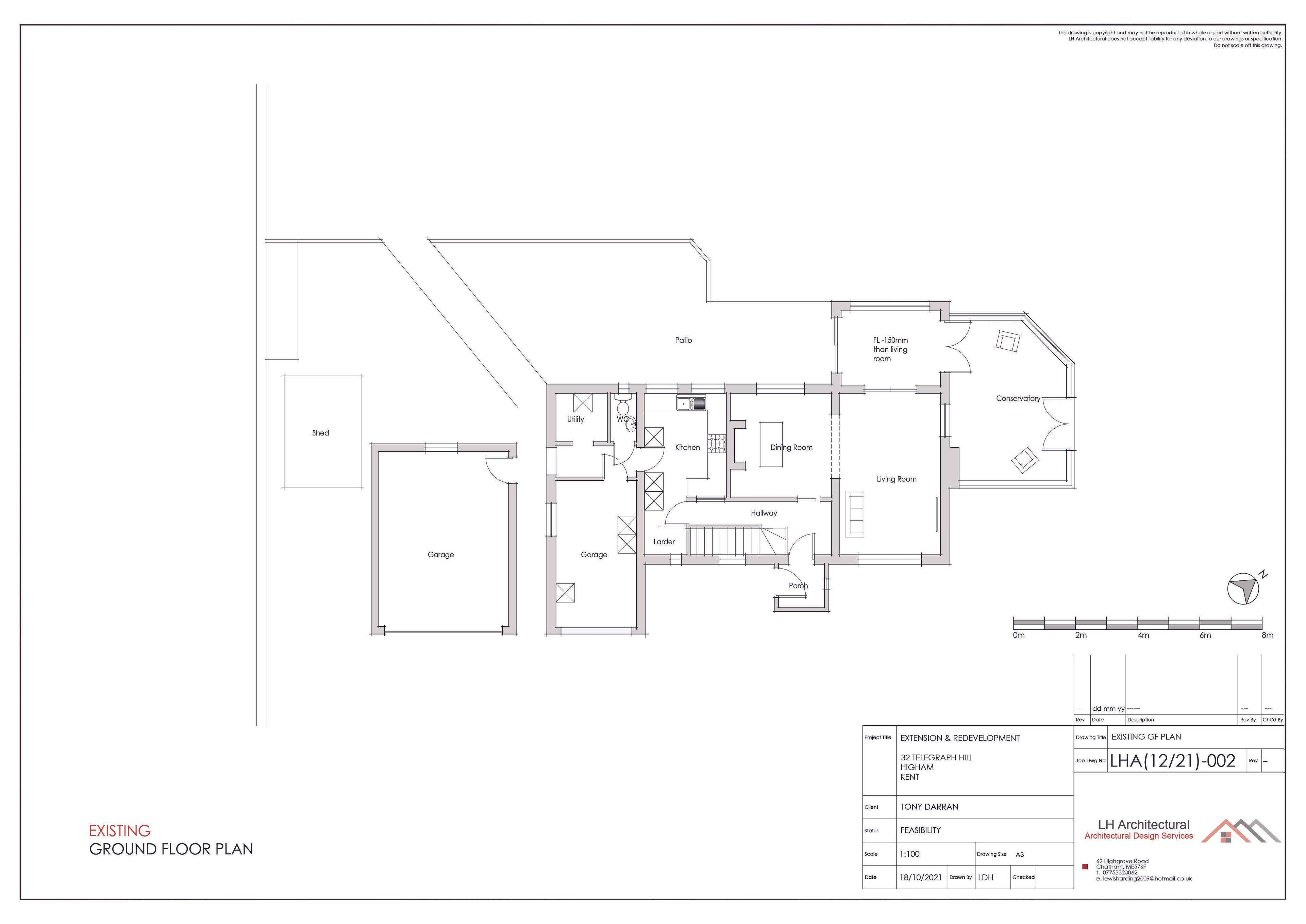
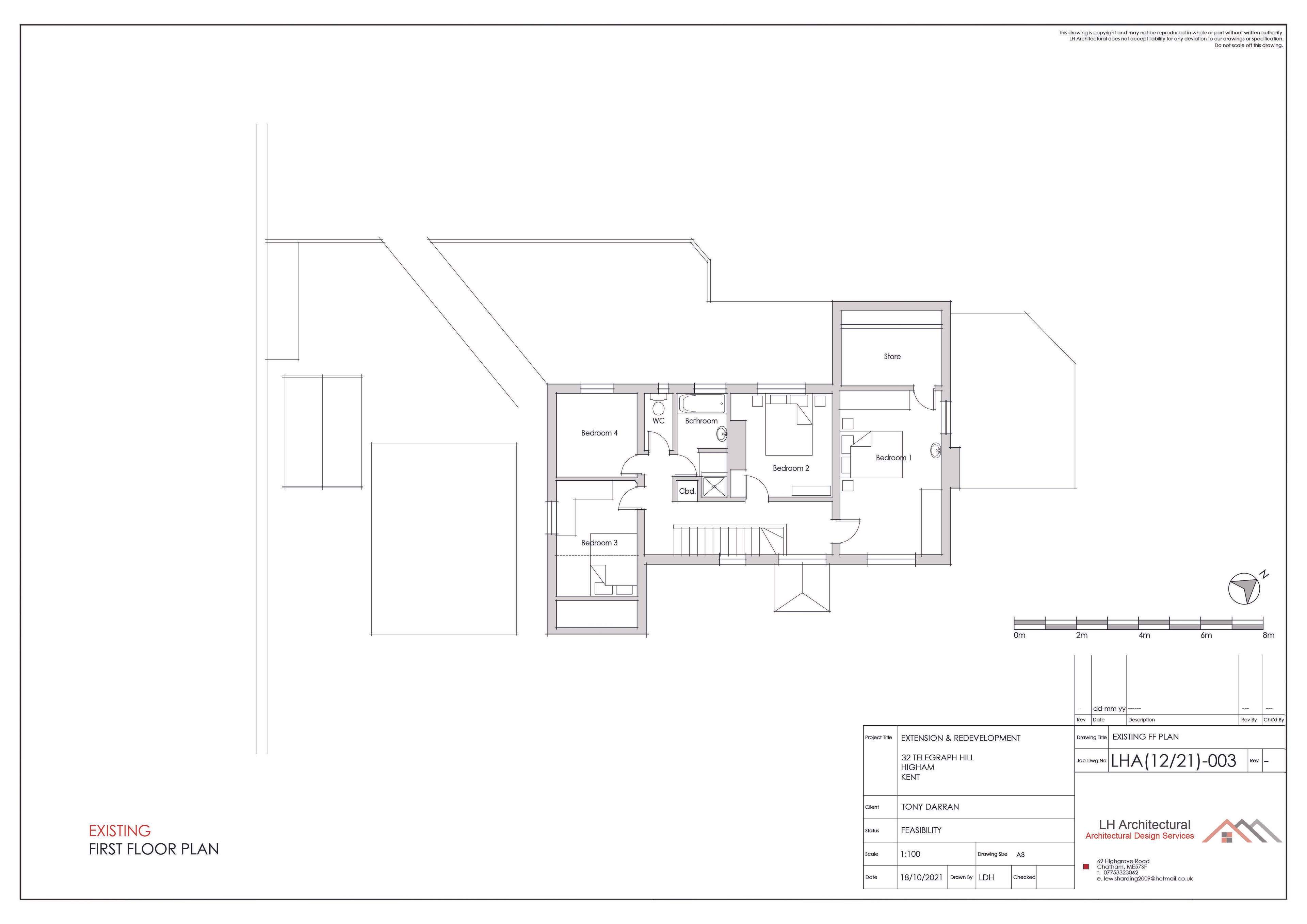
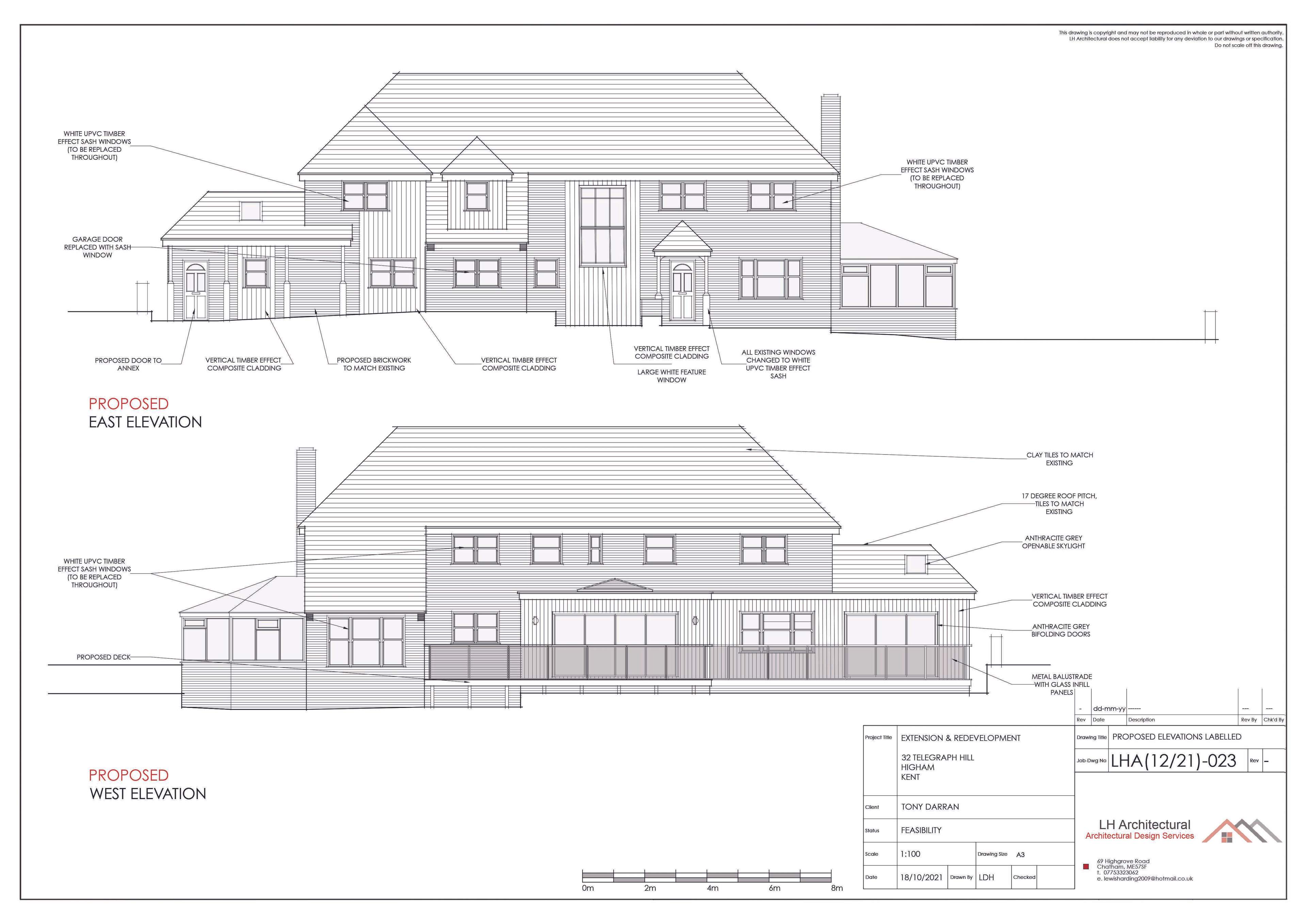
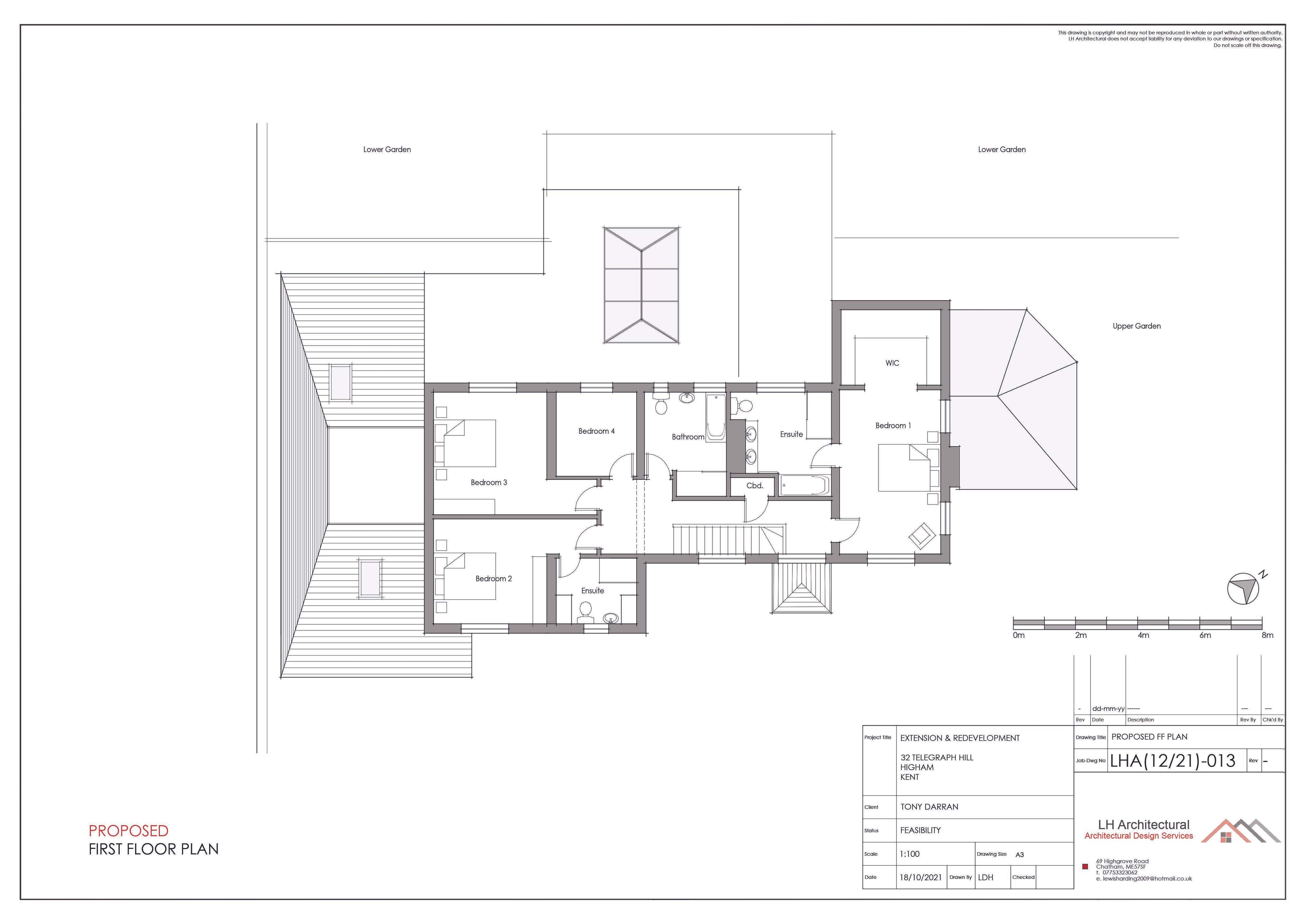
this projects involves a large kitchen extension to form a communal living and dining area for the large family in this home. the client also required contained annexe that was wheelchair accessible but not separate from the house to avoid the parents moving in there becoming isolated.

This was a heavily sloped side on a holly from front to back to levels were difficult to accommodate, especially for the accessible annexe. With this in mind, we knew that construction costs would be higher due to excessive piling/steelwork for the rear extension over the hillside, therefore it was imperative to acheive maximal result inside while making use of existing services and walls.

This project required careful planning to accommodate the larger family while given them their own spaces if needed. This along with the concerns for budget and the logistics of the build made for a very engaging and rewarding design process.

Date

2022

Status of the project

Construction Complete, Planning Approved

Tools used

Photoshop, AutoCAD

Results

The project was a success. The project was completed on time, and the client was very satisfied with the final result. The design plan was executed effectively, and the resulting space has exceeded expectations. The team also finished construction under the calculated budget.