Garage Block Conversion, Thanet - Planning Withdrawn

Project details

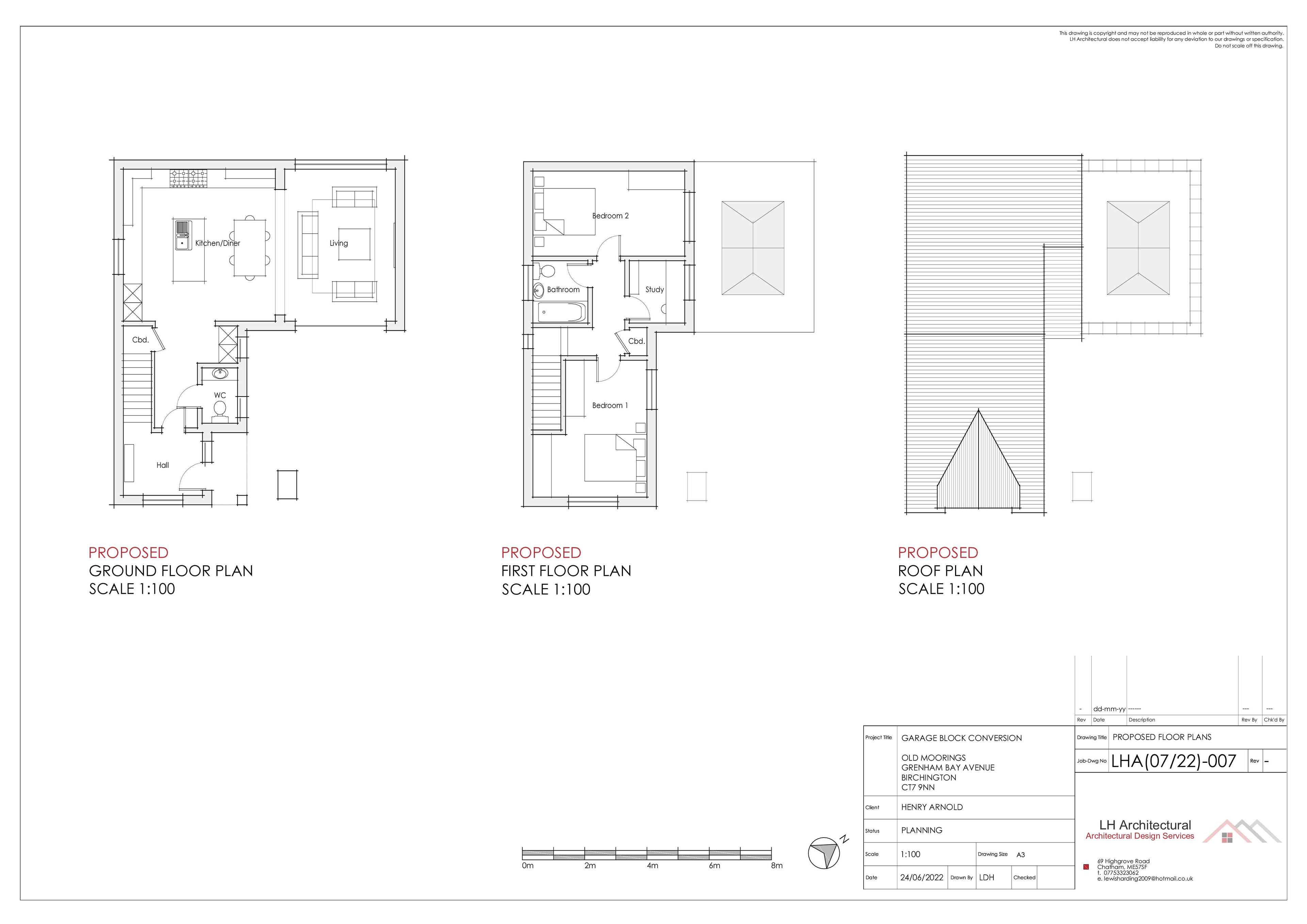
This project was for a new property investor who had purchased a set of three garages on a corner plot, seeking to convert them to a residential dwelling. the site had previous lapsed planning for a single storey dwelling with basement level however the client didn't wish to proceed with this due to the excessively high construction costs. The main constraint with this site was the sewer running through the middle of the site which called for careful design and wall placement to avoid diverting the sewer and opting for a build over agreement.

I positioned the tallest section of the house in the back left corner of the site to avoid impairing views of neighbouring properties and respect the existing corner plot to not over develop the corner fronting the main street. I also reduced the overall height to make use of the roof space to keep the mass and scale to a minimum. this was to maximise the chances of planning approval while also maximising the property value for my client.

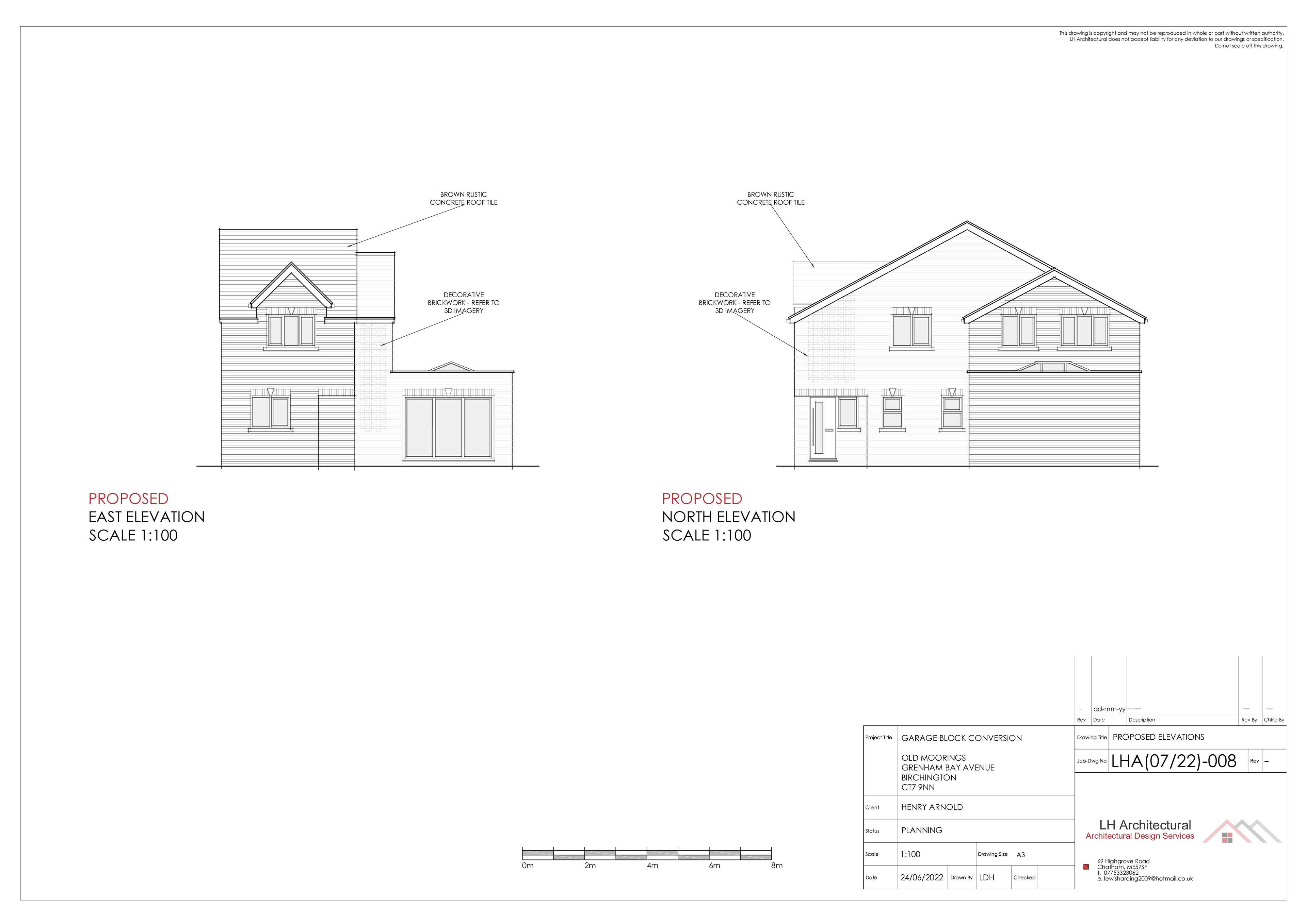
I kept the style of the property in keeping with the surrounding architecture while adding some modern touches to create depth and break in large brick elevations with brick detailing and stone lintels and sills.

Date

2022

Status of the project

Under construction

Tools used

Photoshop, SketchUp, AutoCAD

Results

This project was withdrawn after being recomended for refusal sue to the proposal being two storey. Despite my best efforts to create a sympathetic proposal to neighbours and surrounding amenity that respects the architectural type, the local council were very firm that no two storey development would be accepted regardless of reason.

We decided to amended the application and resubmit an application that ensured my client could make a profit despite this setback.