Bungalow Redevelopment, Strood

Project details

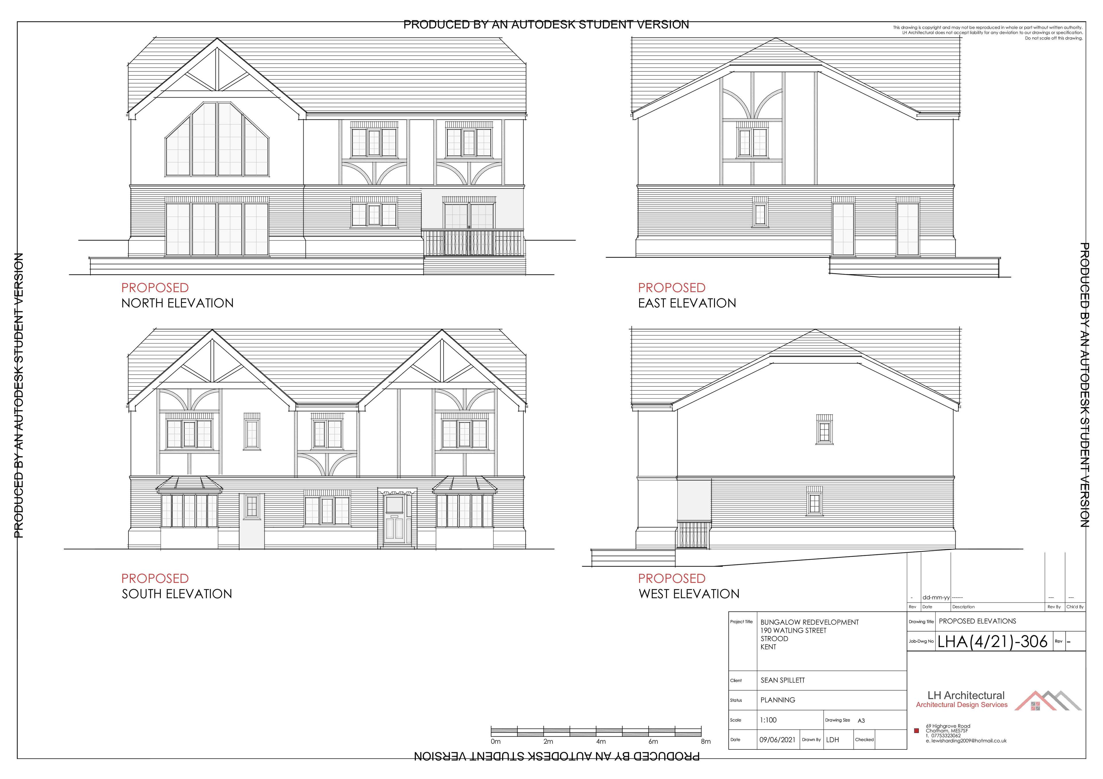
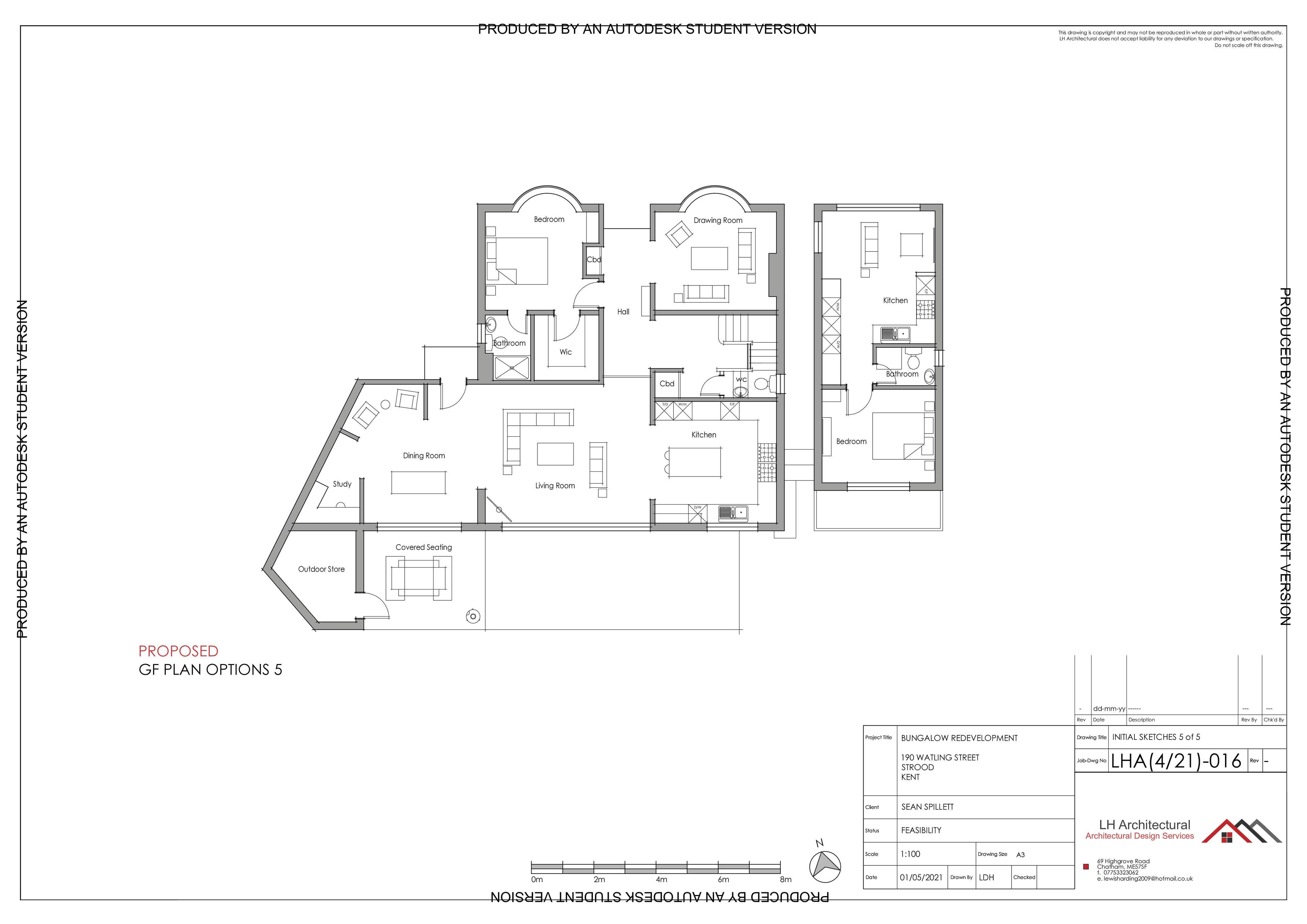
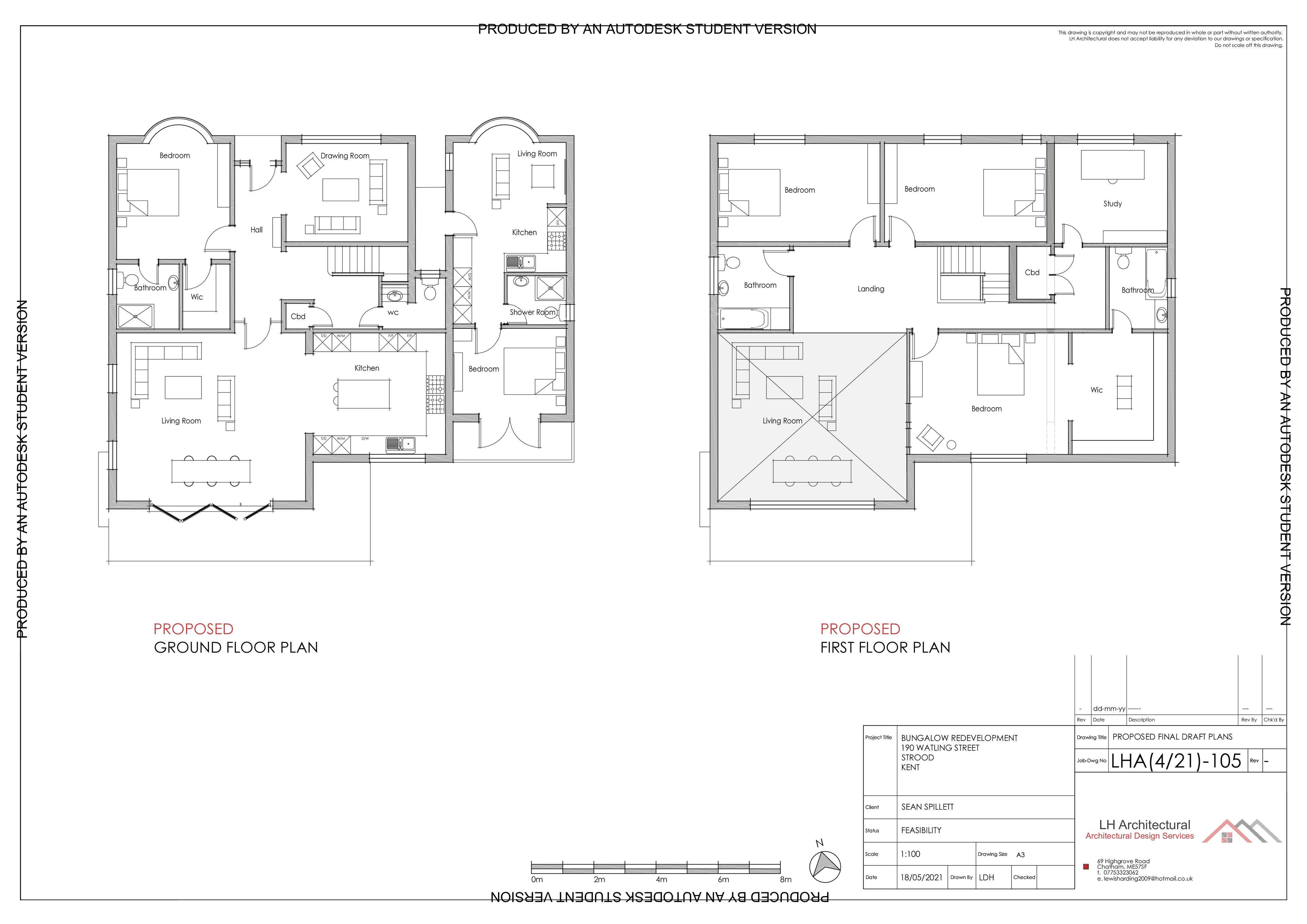
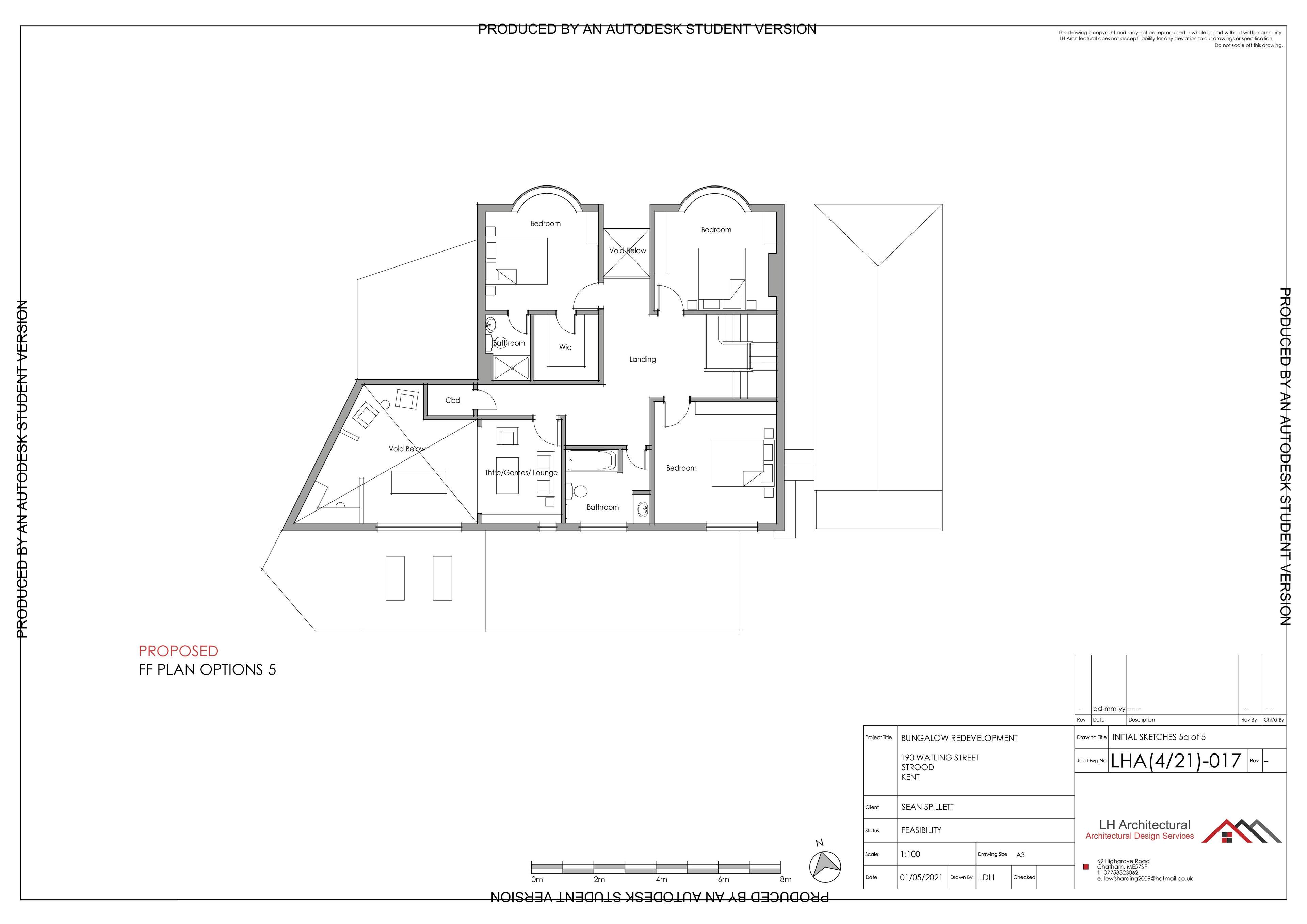
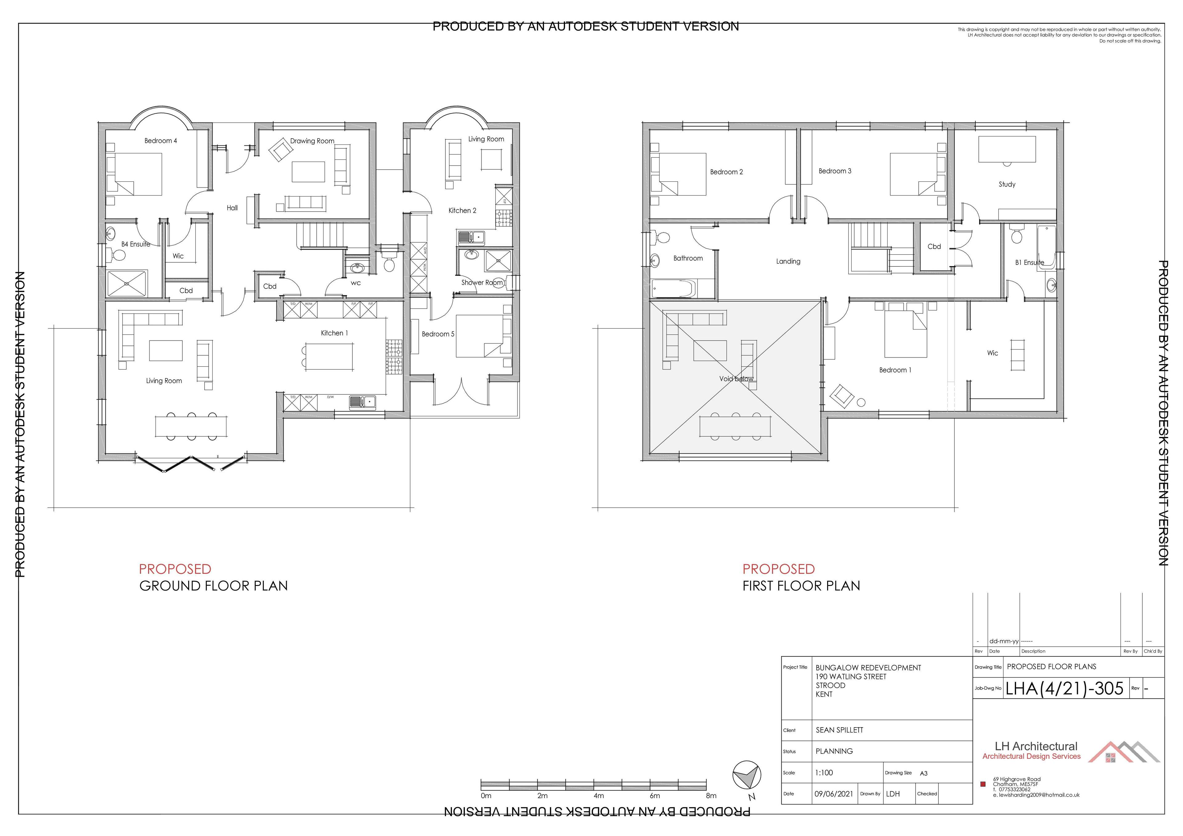
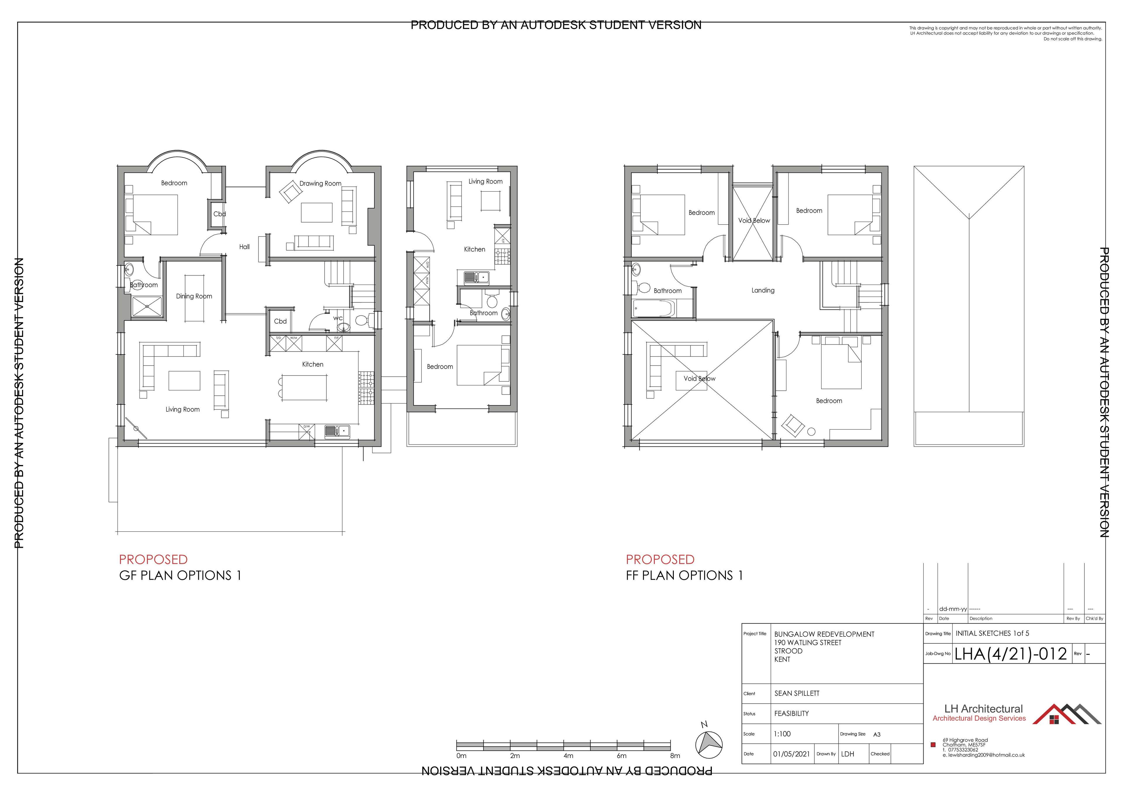
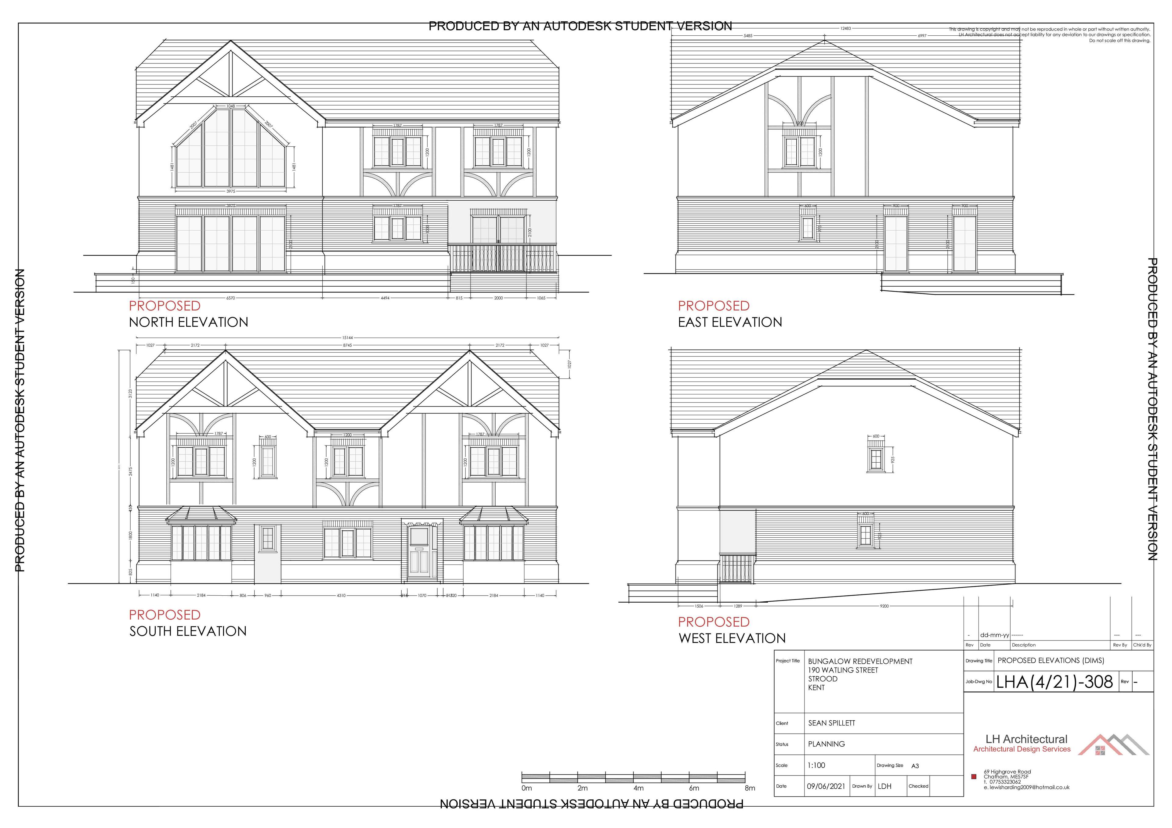
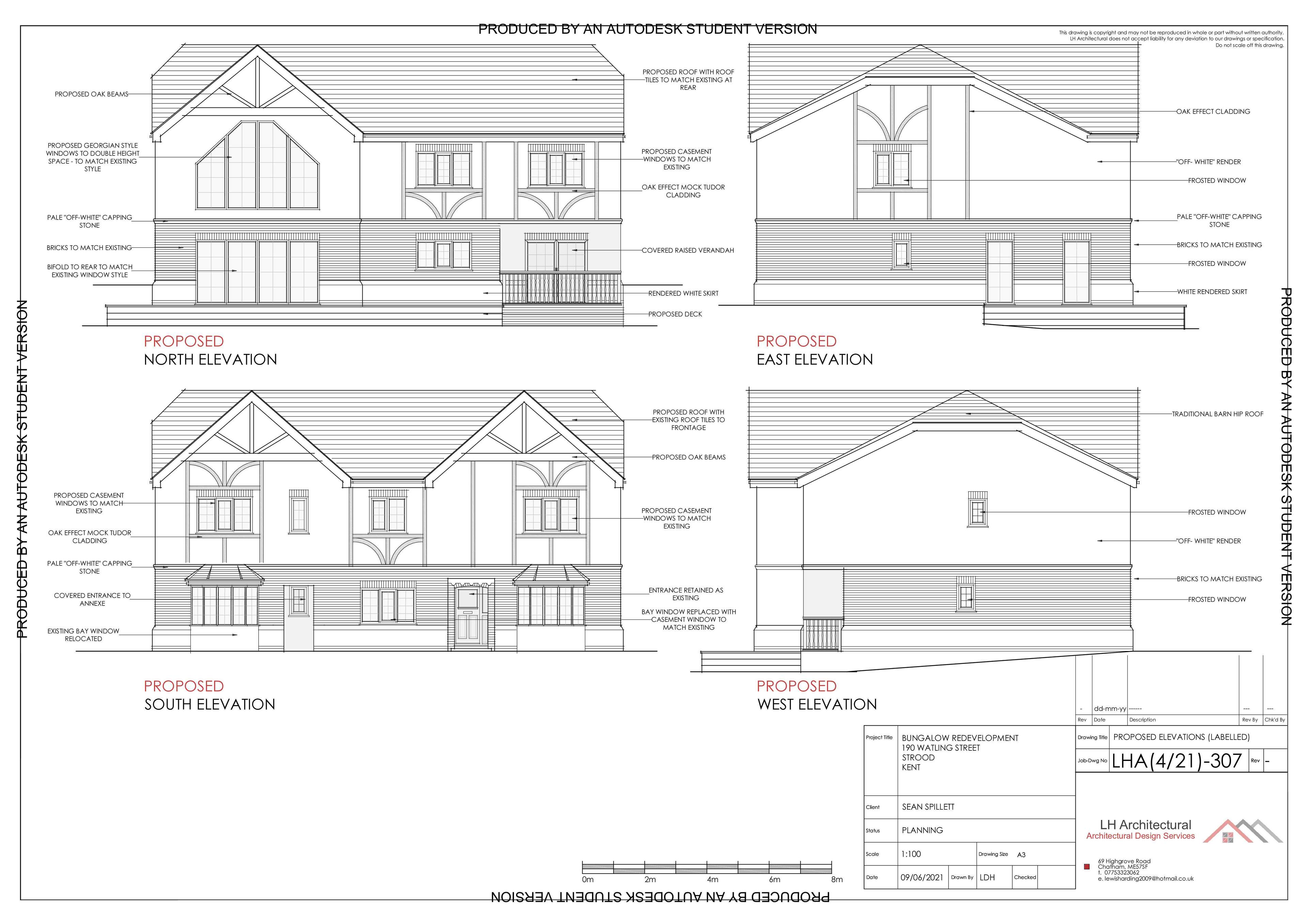
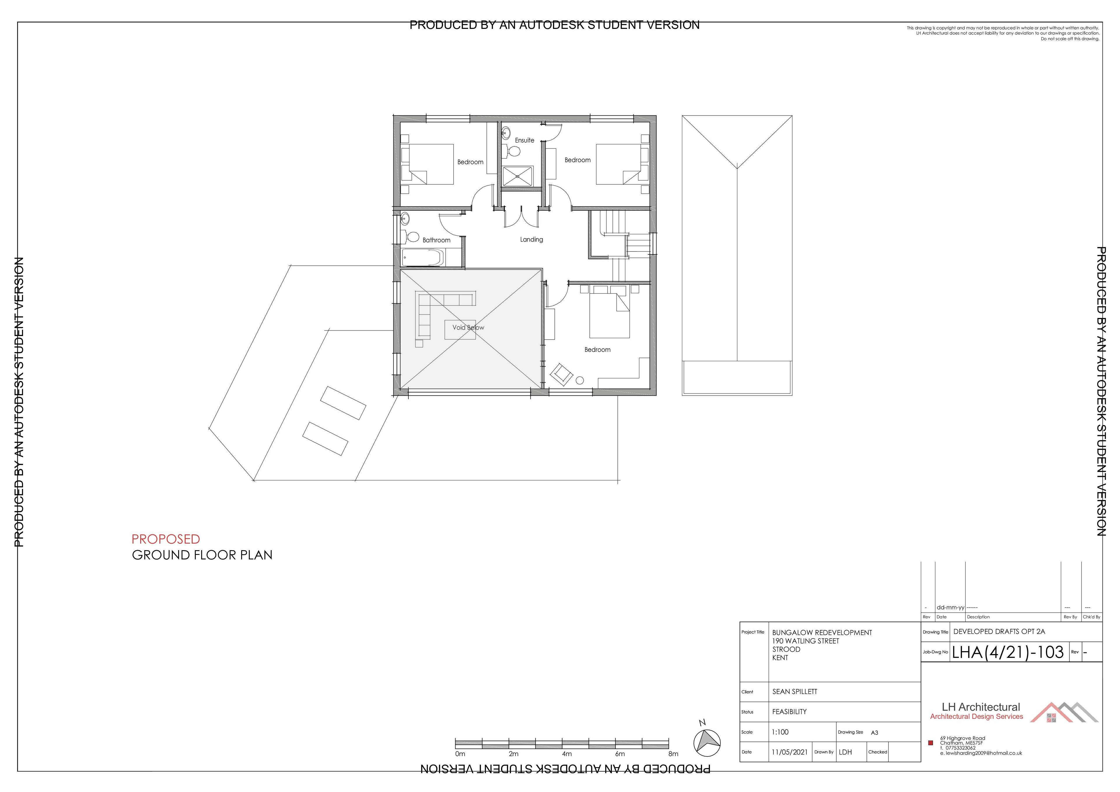
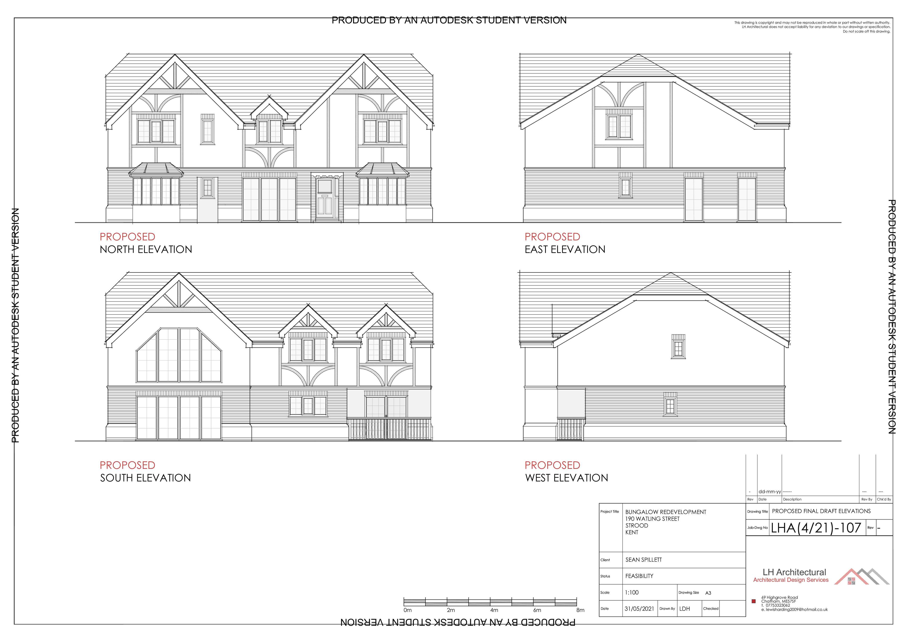
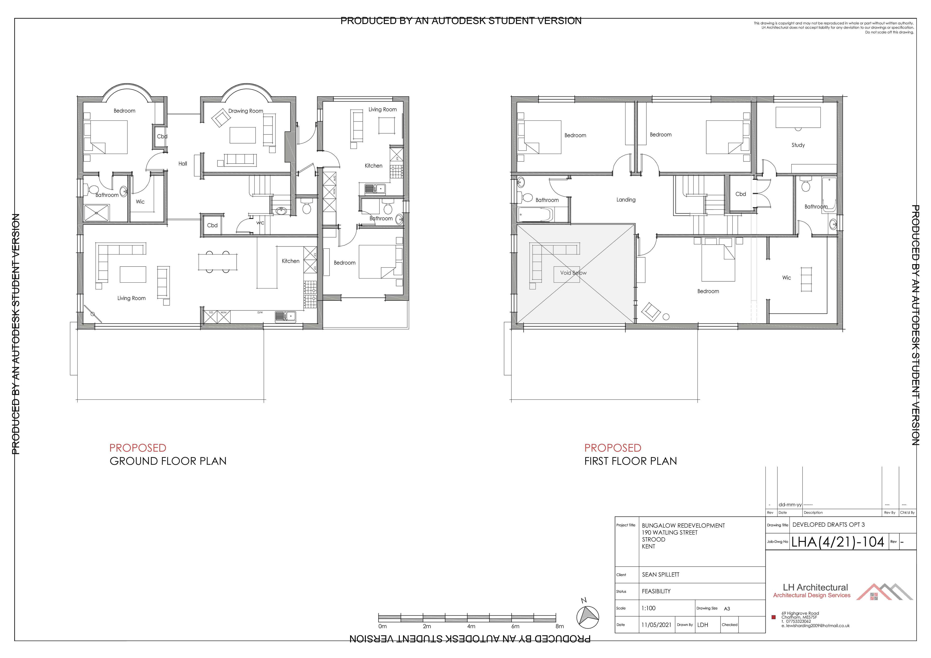
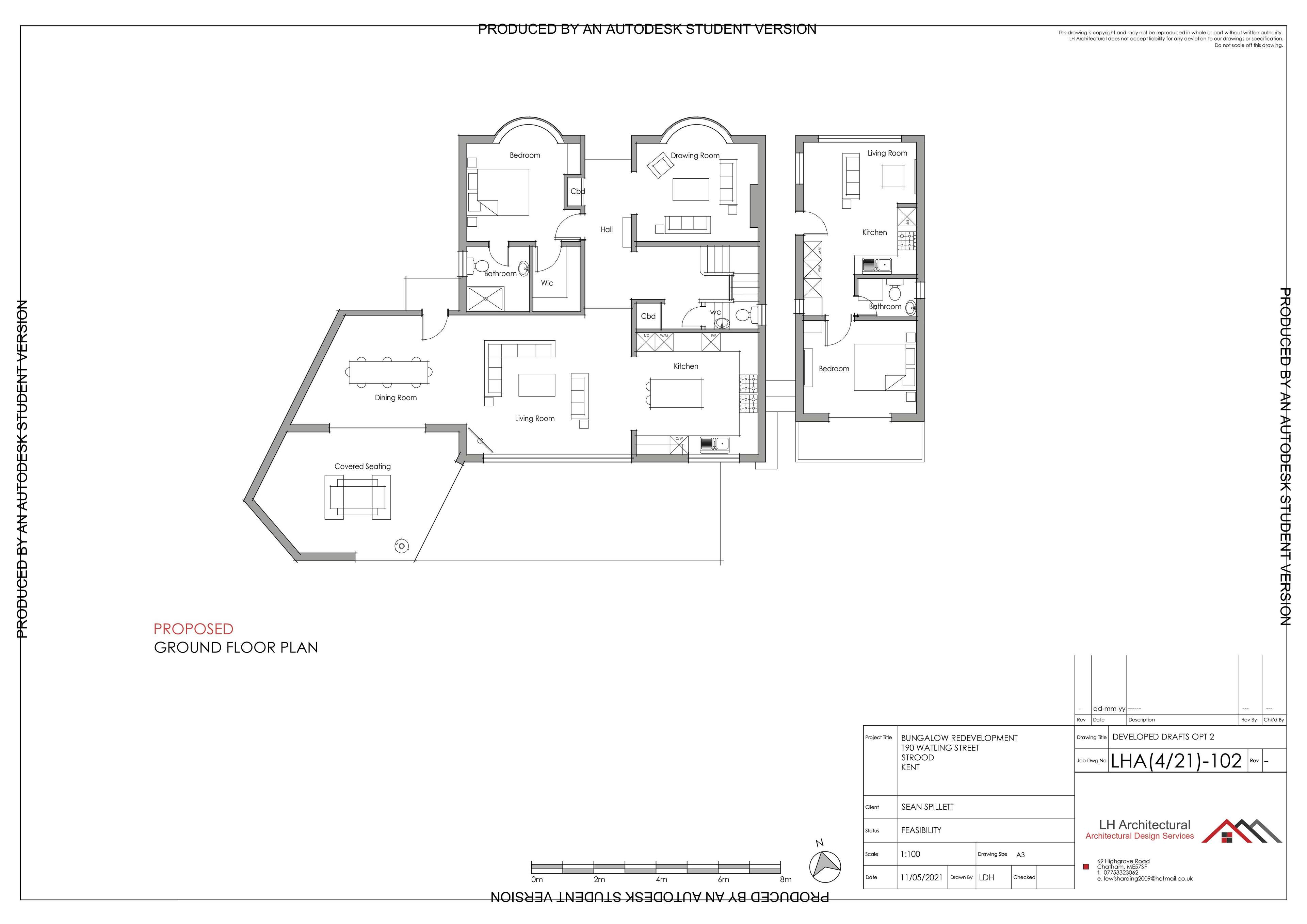
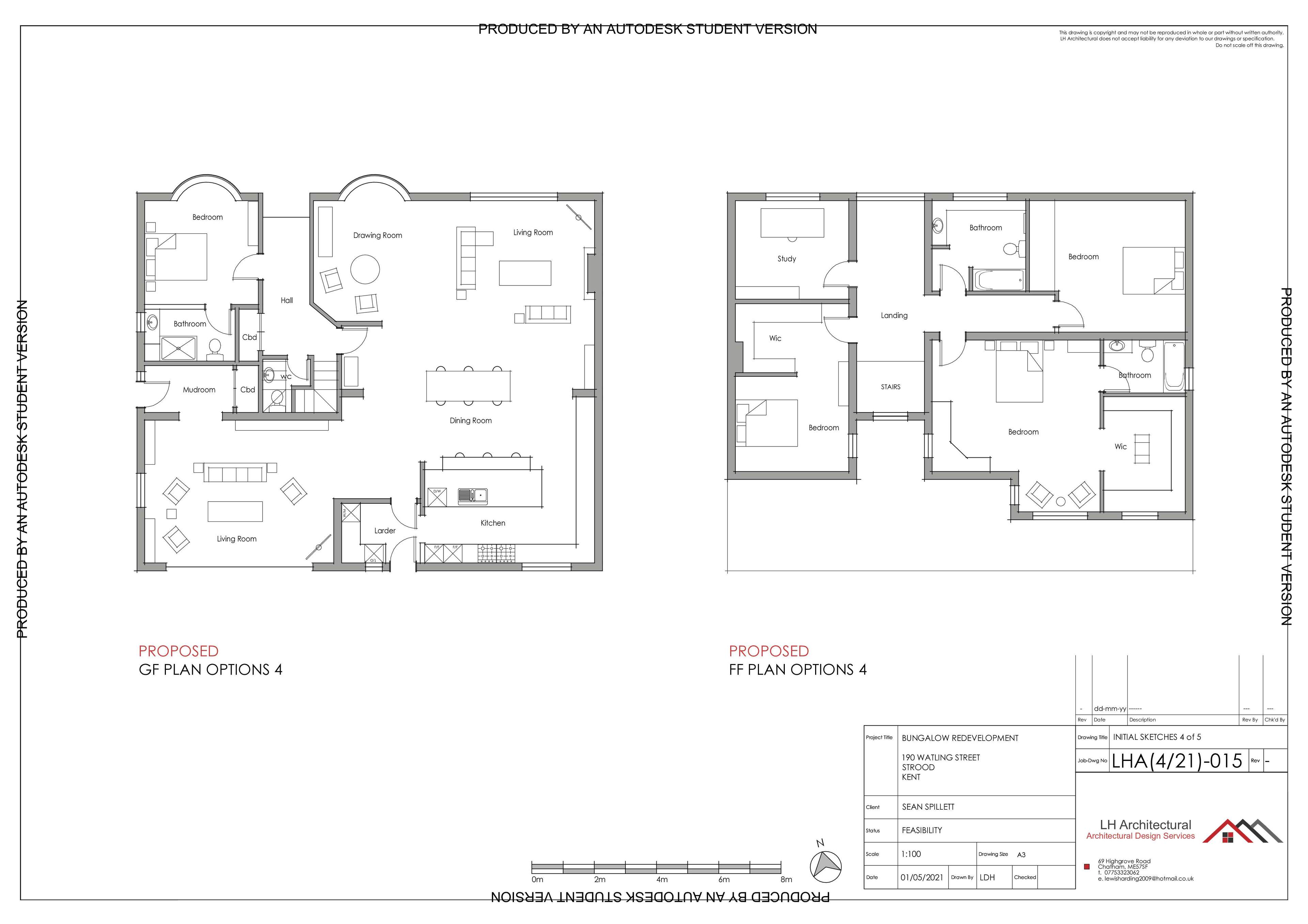
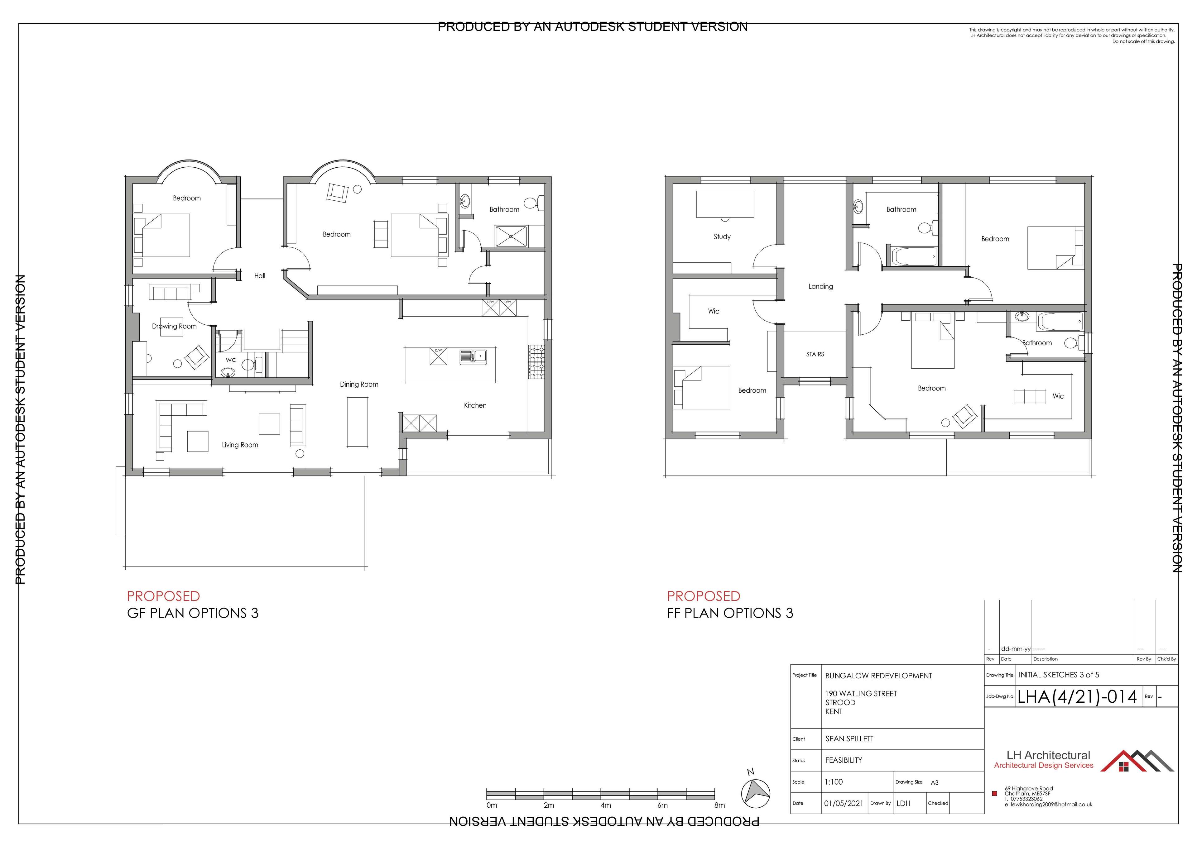
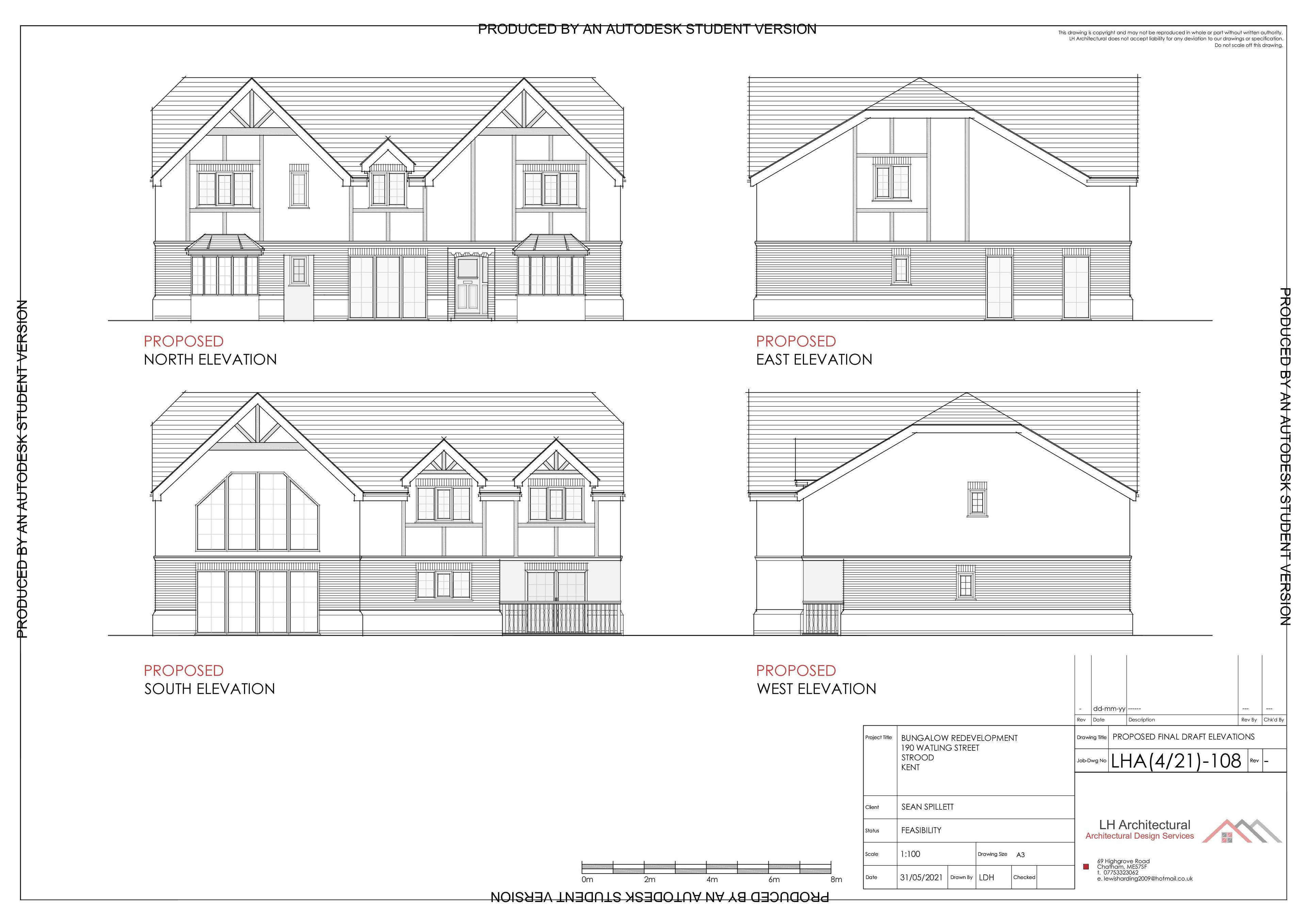
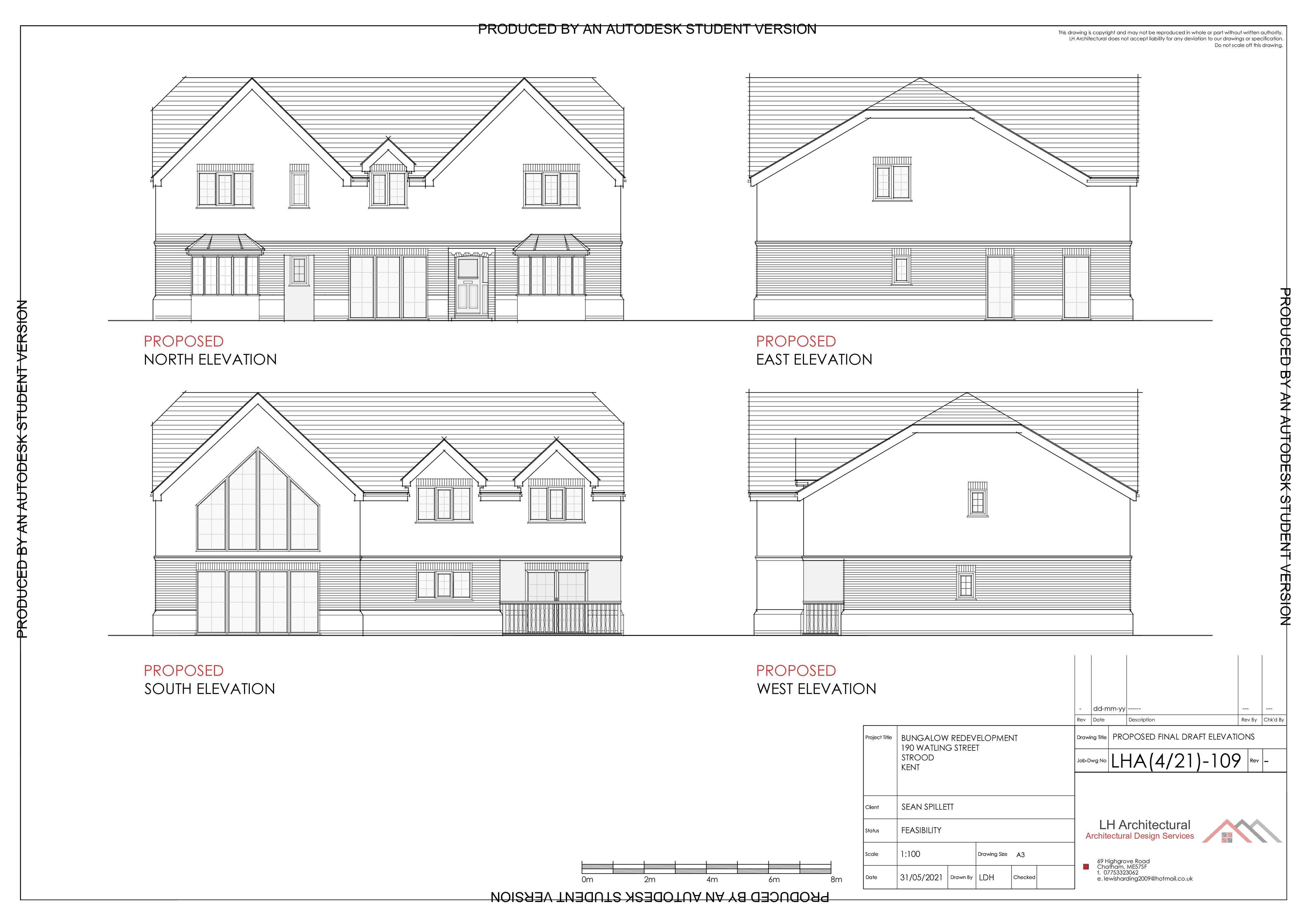
This project was instructed to me to maximise the value of the property by creating a full second storey to the dwelling, adding bedrooms, bathrooms and much more floor area. Along with this I also experimented with adding a annexe for extended family and friends to come and stay which suited the clients social lifestyle.

Due to declining health we also designed a self contained suite including a walk in wardrobe and wet room to prepare for the future how we could.

My client was also a chef in his career and we chose to not let his health preventing him from doing what he loved, therefore we created a stunning open planning kitchen and dining area for the perfect hosting setup.

This project allowed us to maximise investment in their home, ensuring the budget was spent efficiently yet where they did spend, it was in pursuit of a lasting benifit toward quality of life and their wallet.

Date

2021

Status of the project

Concept Development Comp.

Tools used

Photoshop, SketchUp

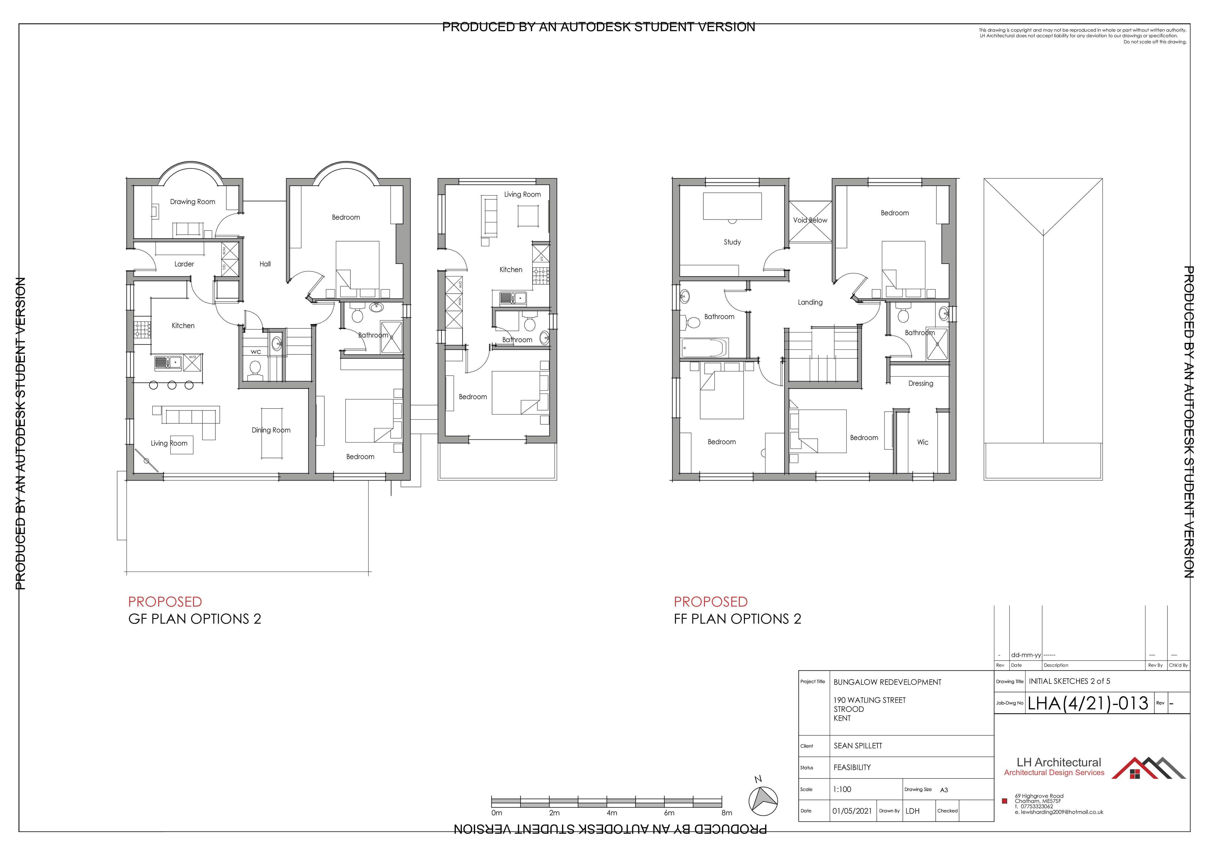
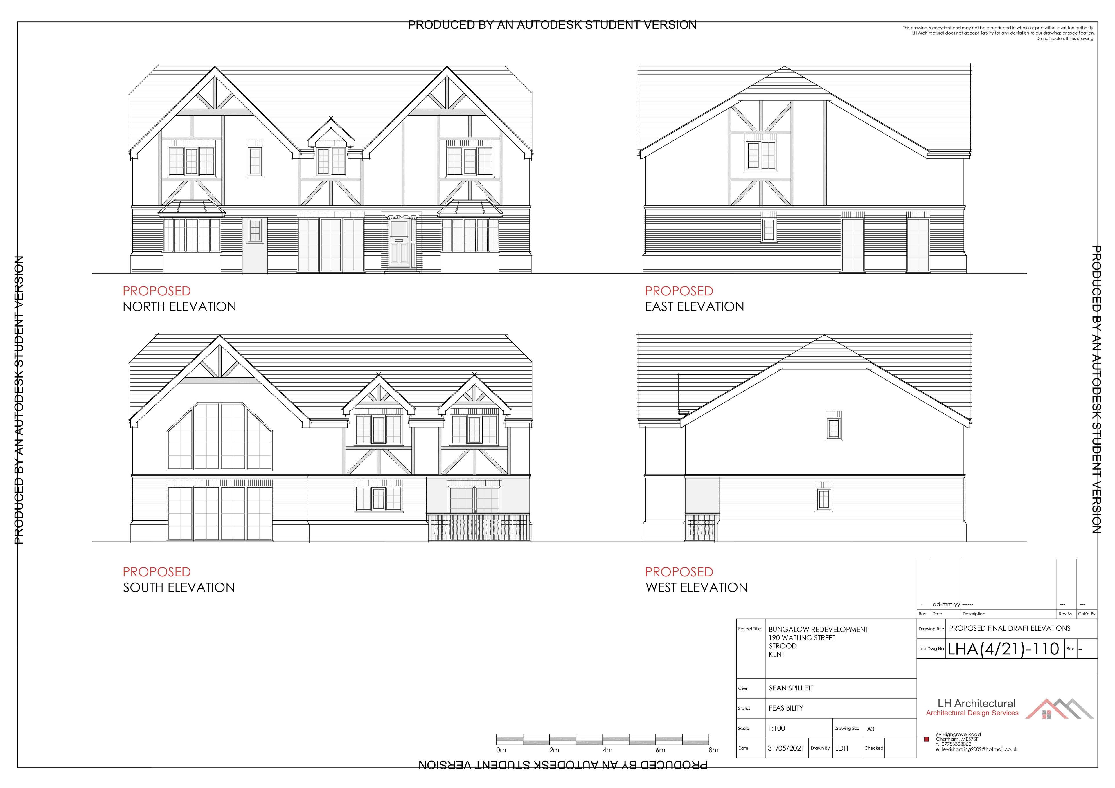
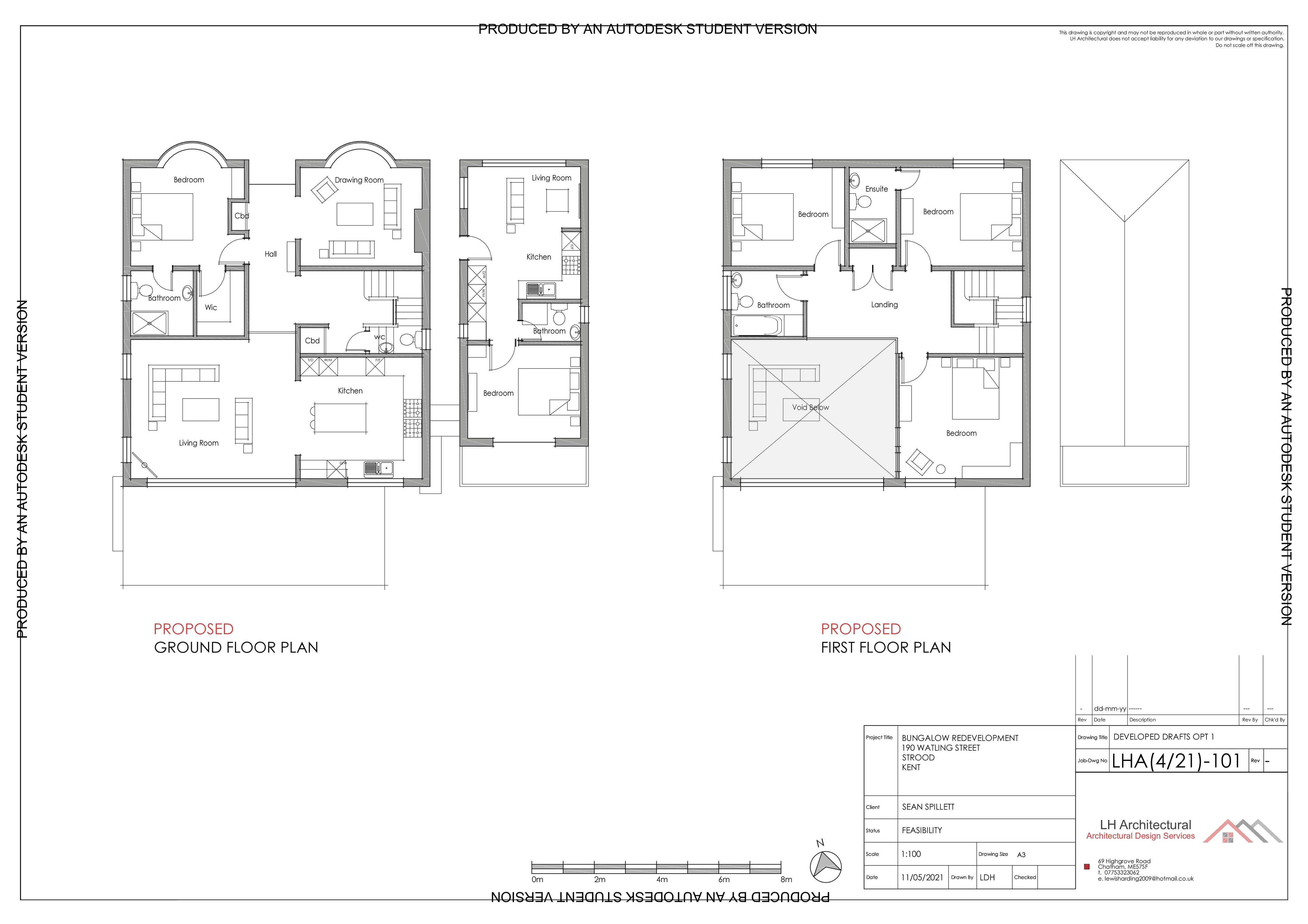
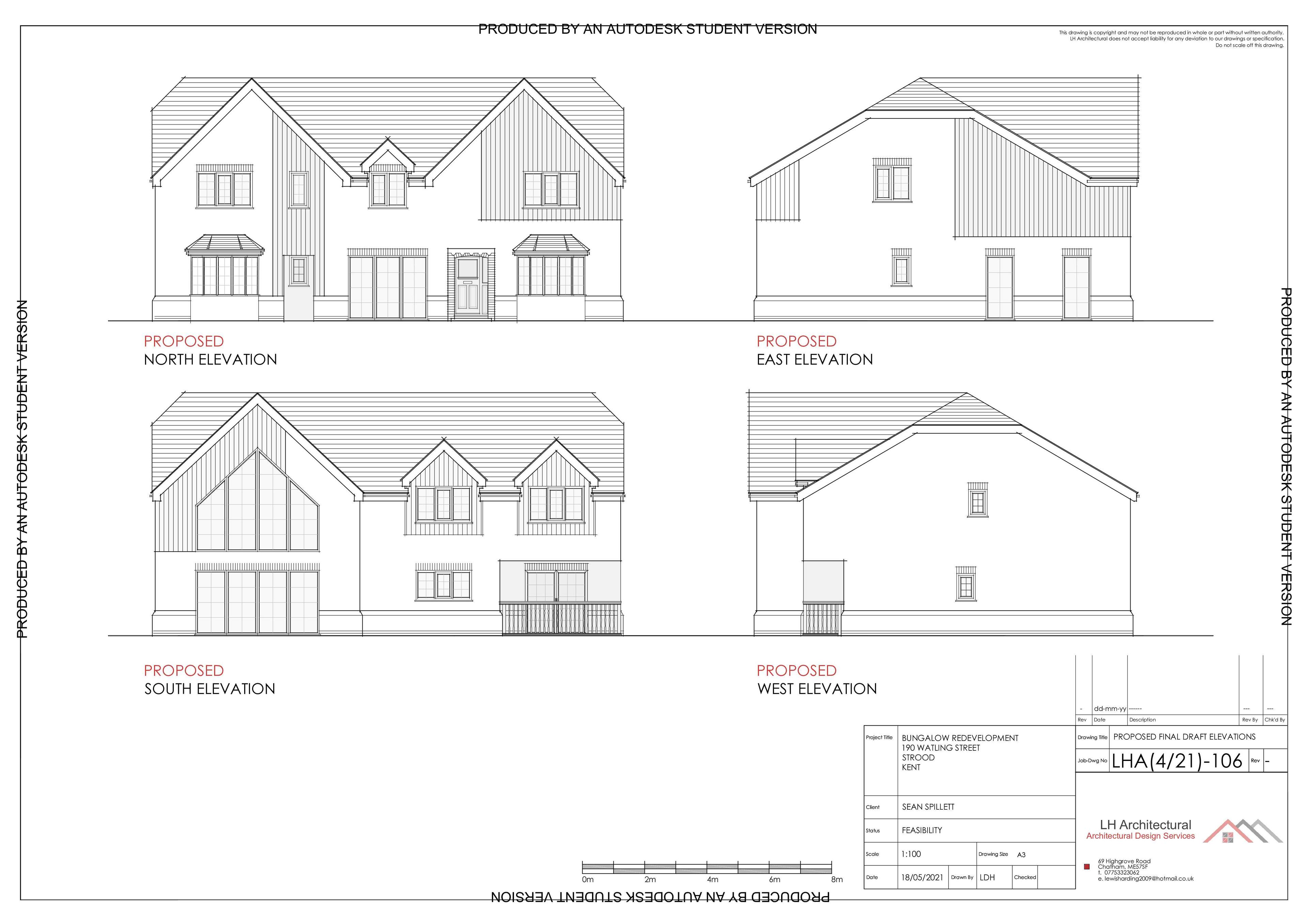
The Design Process

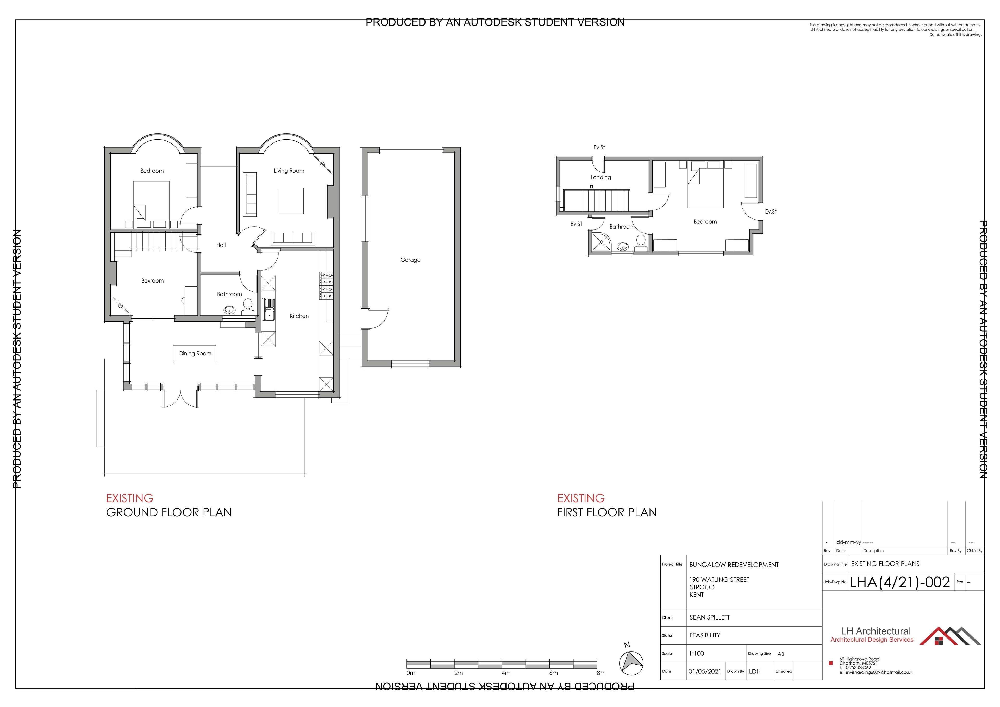
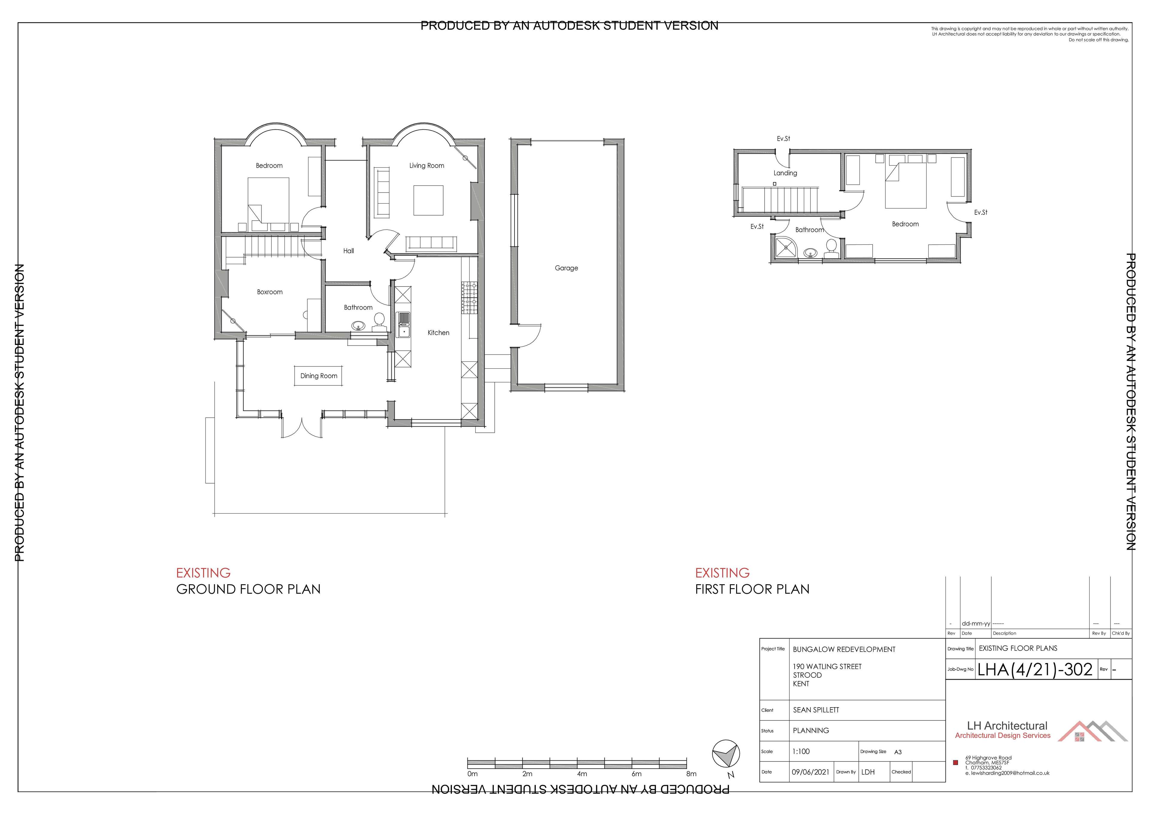
Below you will find the different variations of floor plans and elevations we explored during this design process. I like to work from a broad pallet of varying designs and filter down as the client and I build a working relationship to ensure the project is moving toward their desired outcome whilst also keeping open to ideas they hadn't previously been aware of.

Results

The project was a great success. The clients were very happy with the thorough design process we undertook, exploring many different variations of both floor plans and elevations.

We explored different costings and material decisions, weighing up the costs vs benifit to ensure they got the desired outcome within their given price.