NZ Zuha Villa

Project details

NZ Zuha Villa, located on Zuha Island within World Islands, Dubai, is designed to engage with its seafront setting. Spanning two plots, the villa features expansive curved terraces across multiple levels that provide extensive ocean views.

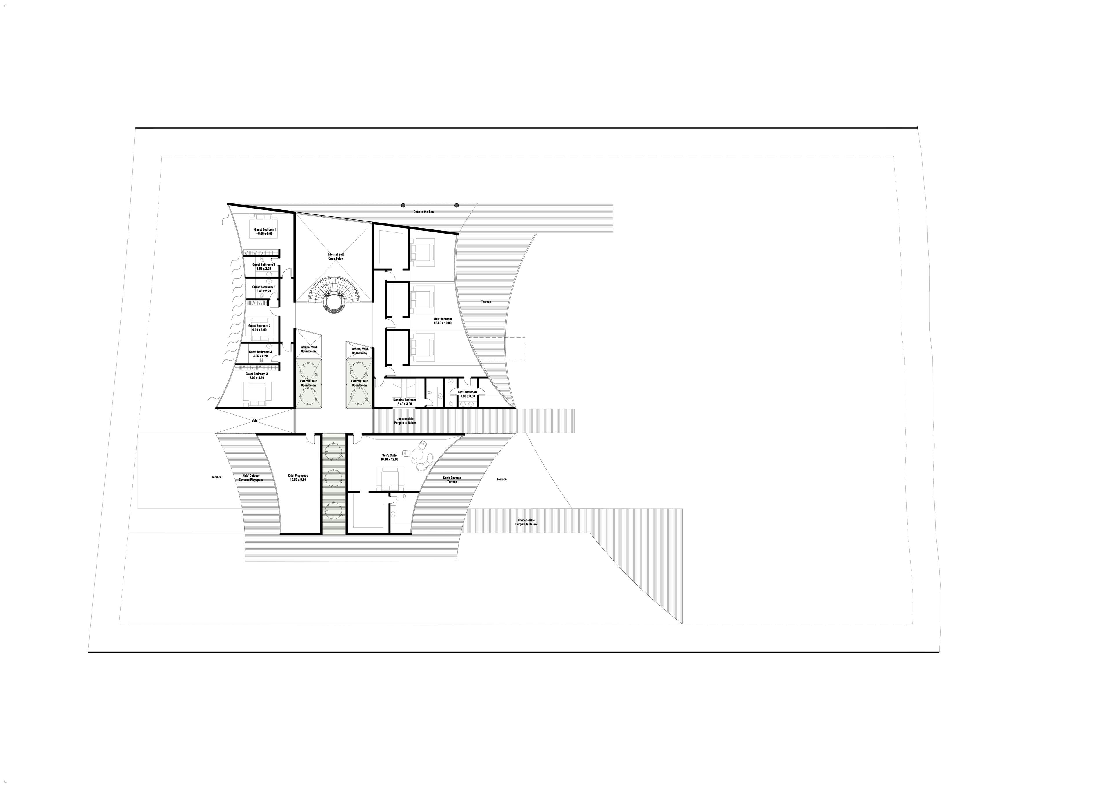
The ground floor includes a range of amenities such as a gym, massage and sauna rooms, a main office, and staff living quarters. The first floor is dedicated to children's bedrooms, a play area, guest bedrooms, and a suite. The second floor contains two exclusive suites, while the rooftop offers a living area with a roof terrace and landscaped greenery, creating a tranquil space to enjoy the seaside environment.

The villa's design integrates high-quality finishes and natural elements, emphasizing its connection to the sea.

Area of site

48,675 ft2

Date

2023

Status of the project

Under construction

Project Category

Private Residential Villa

Plans

Ground Floor Plan
First Floor Plan
Second Floor Plan
Roof Floor Plan

Project Visuals