Element.78

Project details

Located in the heart of Dubai, Element.78 is a prominent residential building with 11 floors above ground. Designed with a focus on functionality and practicality, the building caters to diverse residential needs.

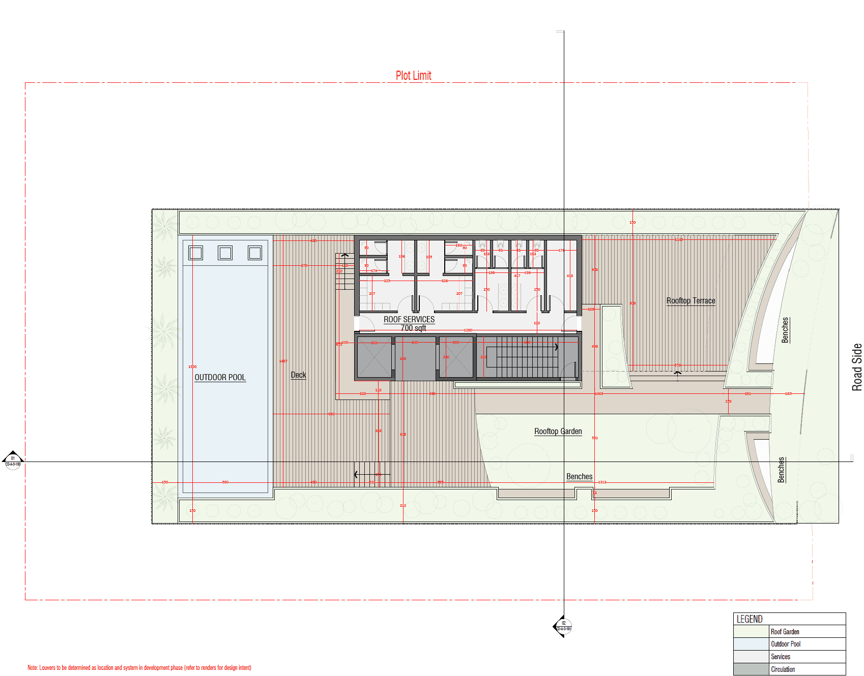
Element.78 offers a variety of apartment configurations, including 1-bedroom, 2-bedroom, and spacious 3-bedroom units. The architectural design of Element.78 is characterized by clean lines and sleek facades, emphasizing efficient use of space. The rooftop includes a well-appointed swimming pool area with essential amenities, providing a recreational space with panoramic city views.

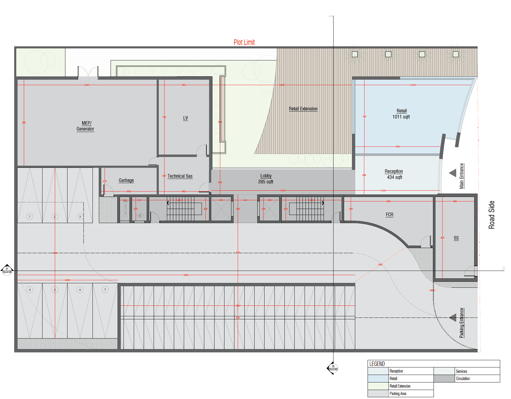
The ground floor is designed to actively engage with its surroundings, featuring wide entrances, clear pathways, and designated communal areas. This design fosters a sense of openness and ease of navigation, contributing to a strong sense of community among residents.

Area of site

15180 ft2

Date

2023

Status of the project

Under Construction

Category

Commercial Residential

Project Visuals

Floor Plans

Site Plan
Mass Plan
Ground Floor Plan
Typical Parking Plan
Podium Level plan
Typical Residential Floor Plan 1
Typical Residential Floor Plan 2
Rooftop Plan