Small-scale venue

Project details

Having use for small-scale weddings and exhibitions, this venue is made up of two lofts opened together in Budapest, Hungary. The site had multiple walls removed before I joined the project.

My contributions involved sketching up my plan, working closely with the architect, and finalising the render. I helped with managing orders and guiding during construction.

Area of site

3500 ft2

Date

2022

Status of the project

Complete

Tools used

SketchUp, 3ds Max

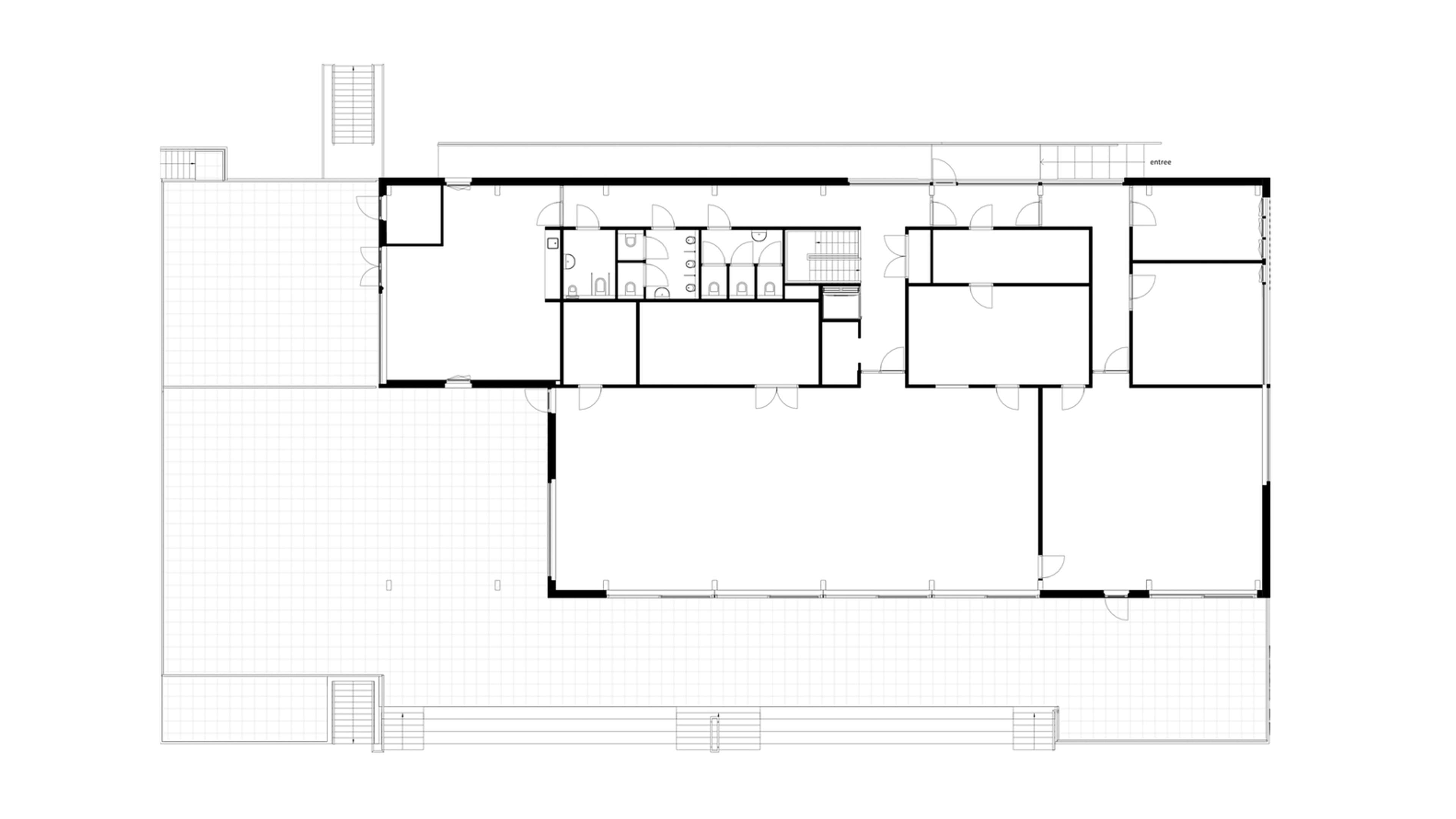
Floor plan

Kitchen on the northern side, venue on the southern side.

Results

The project was a great success. I managed to create a venue where multiple events can be held over the year. It turned out to be very modular and spacious, both of them exceeded the client's expectation.

Kitchen
Main venue
Lounge area