Modern loft

Project details

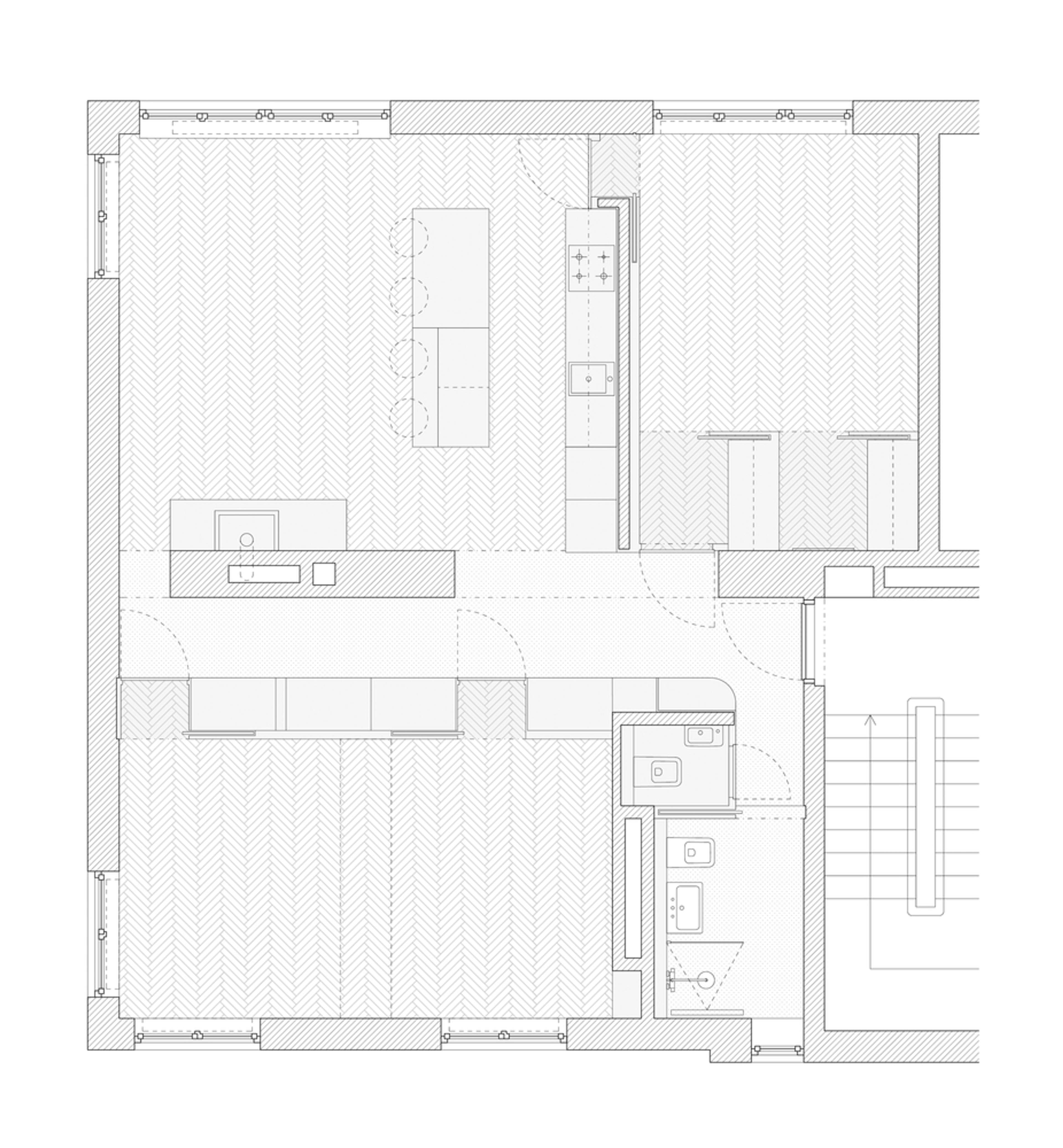
This project aims to transform an existing loft apartment into a more spacious and versatile living area, through strategic configuration and design enhancements. The project focuses on optimizing the available space to create an open and inviting environment with better lit rooms.

My contributions have been instrumental in shaping the overall vision and design of the project. I oversaw every aspect of design and construction administration.

Area of site

2800 ft2

Date

2022

Status of the project

Under construction

Tools used

Photoshop, SketchUp

Design plans

Results

Kitchen
Living room
Balcony