Elena Saadati
Portfolio
Resumé
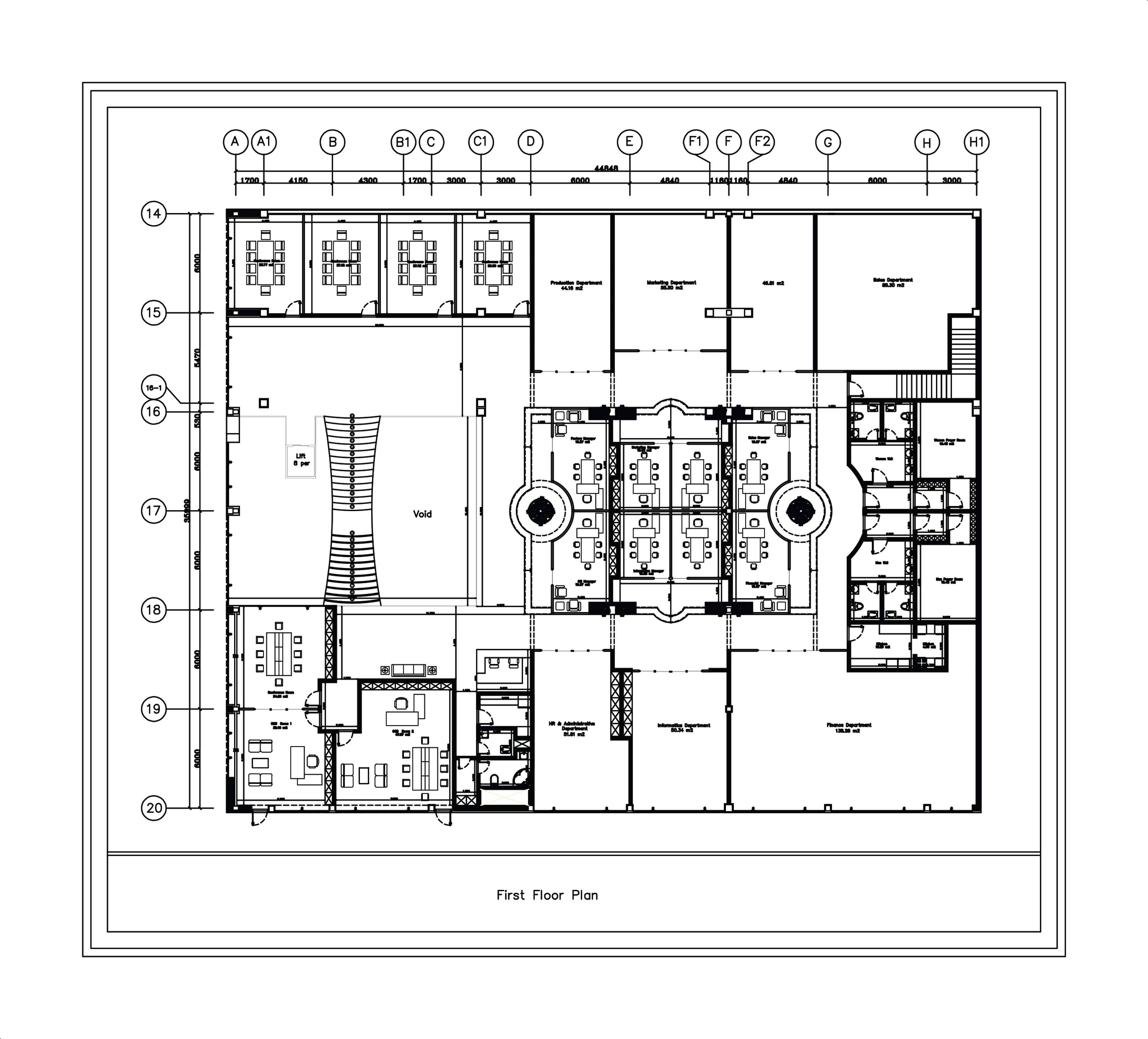
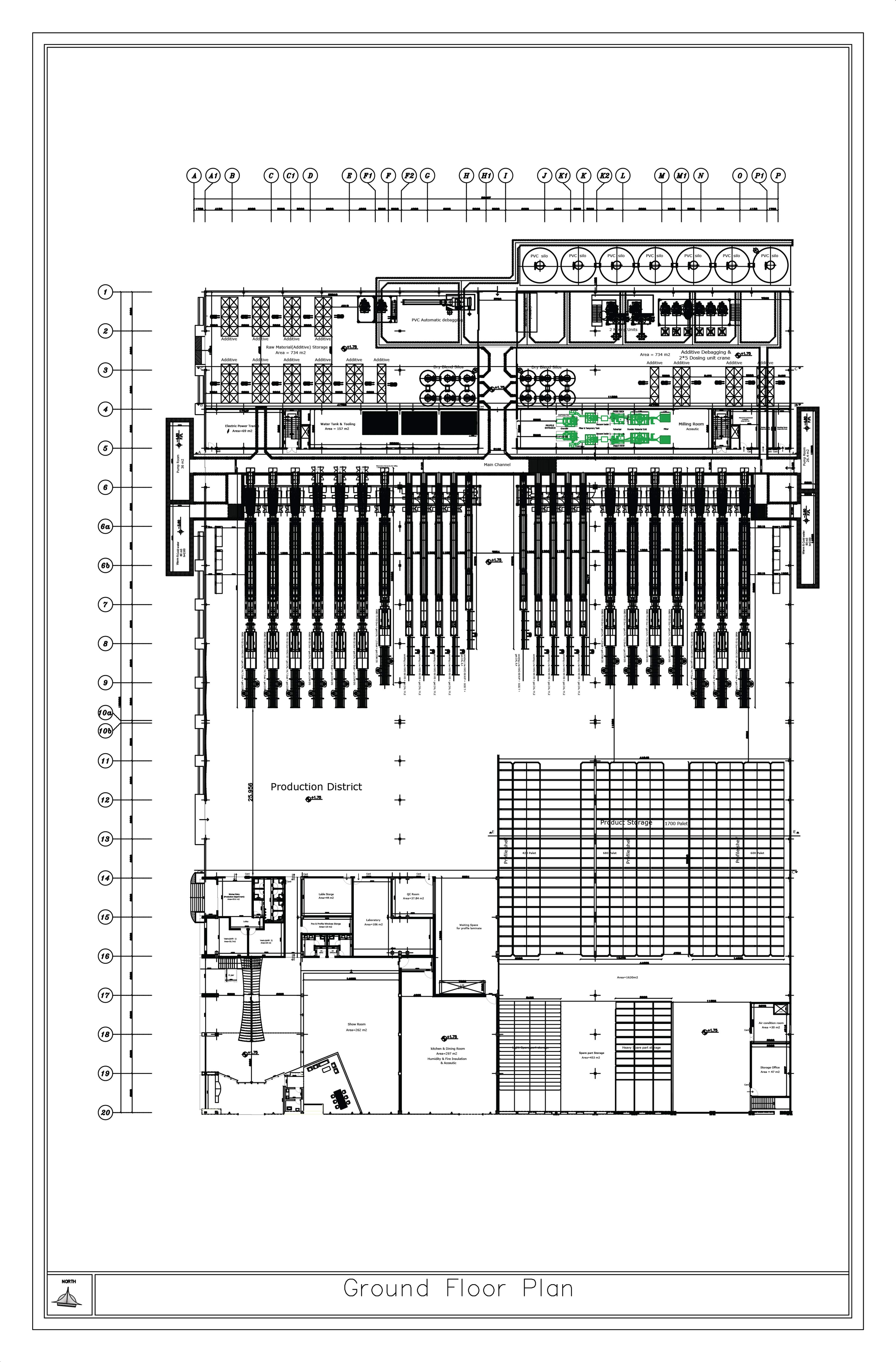
Vista Best Factory Project
Show your plans & sketches
Concept 1
Concept 2
Concept 3