Ramsar Villa Project

Show your plans & sketches

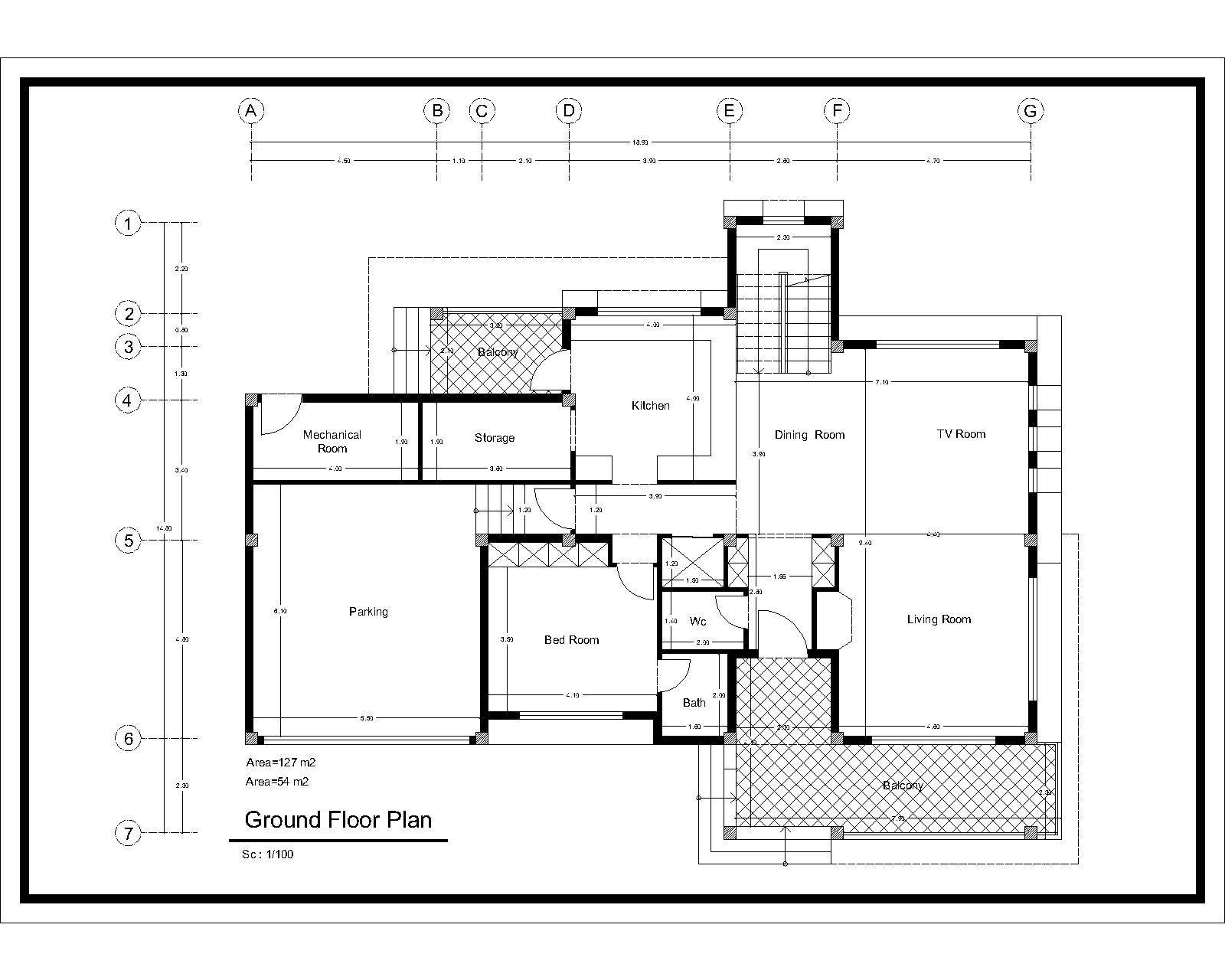
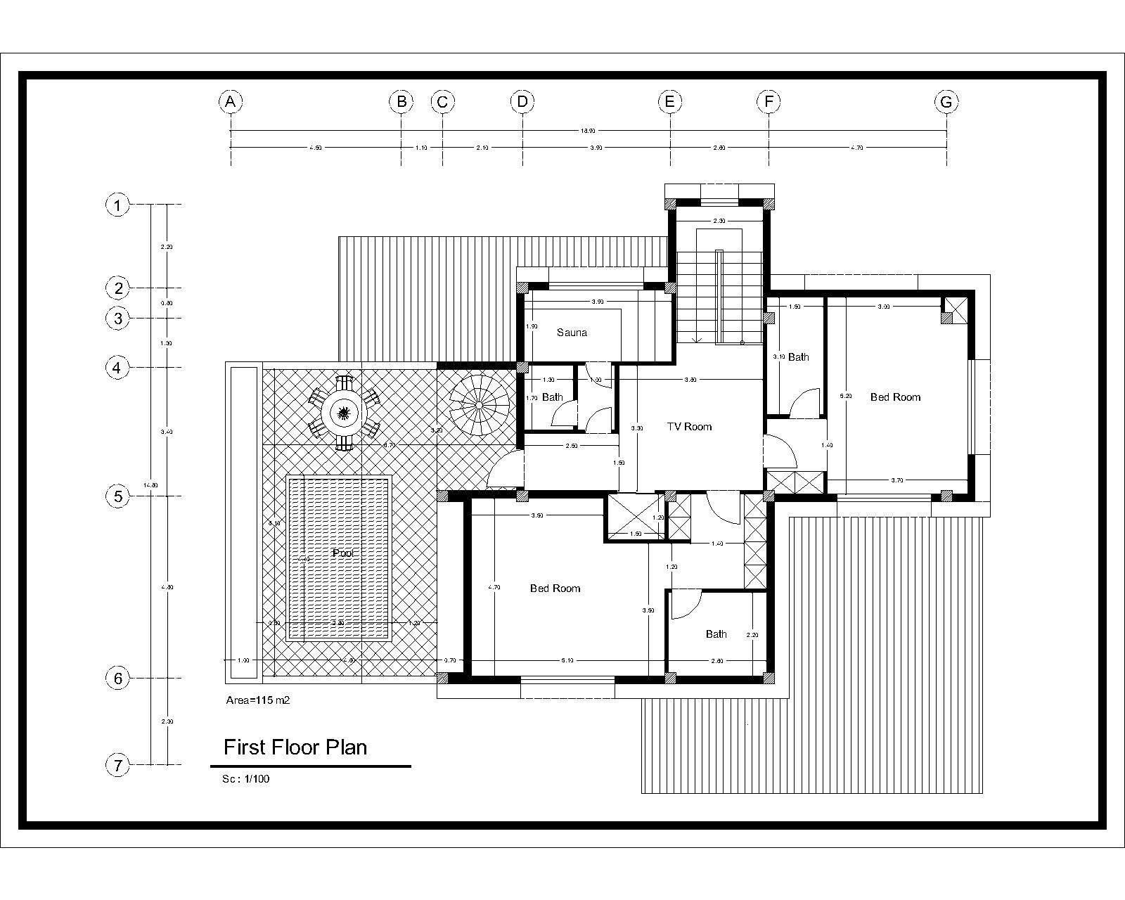
Project Description

This vila is  located on the southern coastline of Caspian Sea in Mazandaran province, Iran. The project takes into account the preservation of memory of traditional houses of north of Iran accompanying by  modern architecture which catches the attention in the ceiling design. In this project Autocad, Revit , 3D max and V-Ray are applied.

One of the main concepts is the terrace with a cozy  swimming pool. Unlike the traditional introverted villas in Caspian Sea, the residents can spend the quality time in the appealing terrace and enjoy the unique view of the sea and mountains.