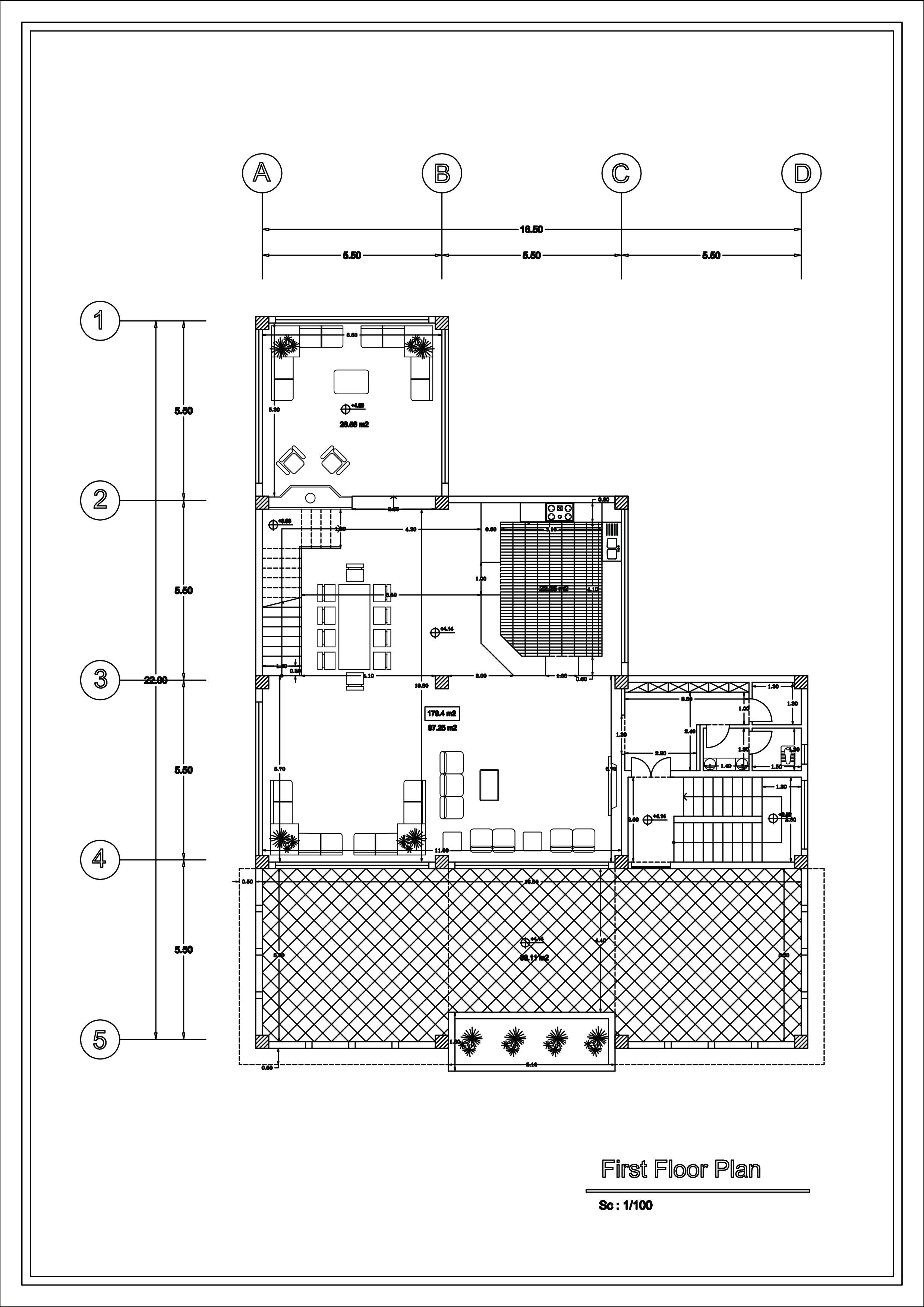
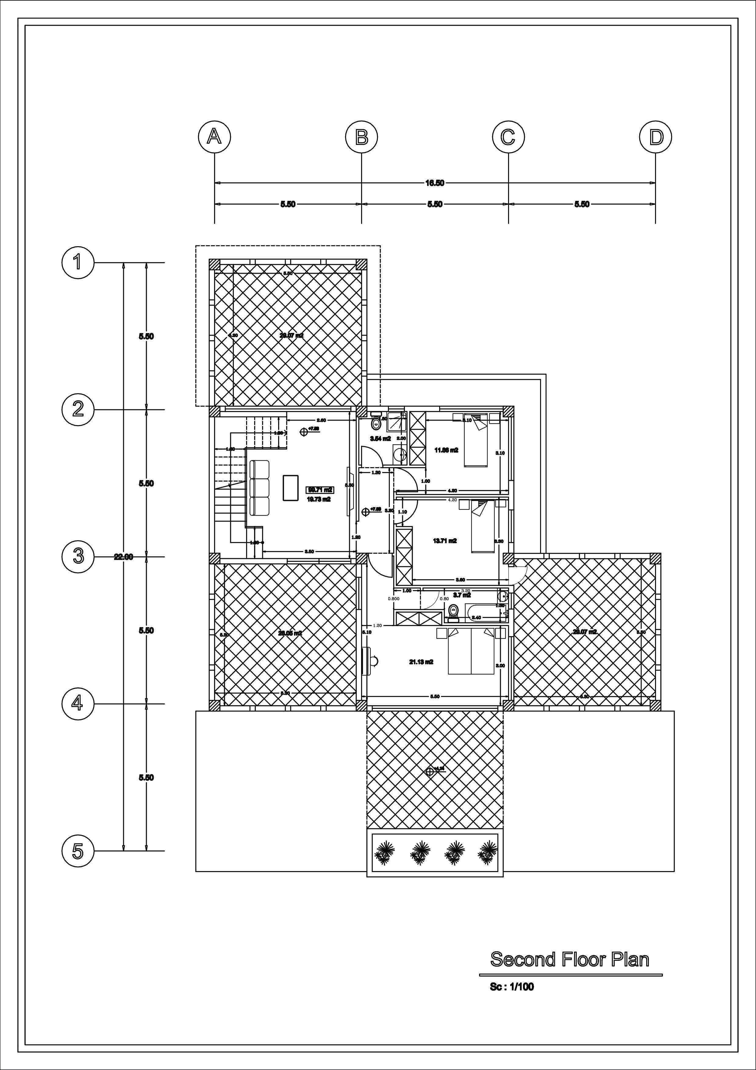
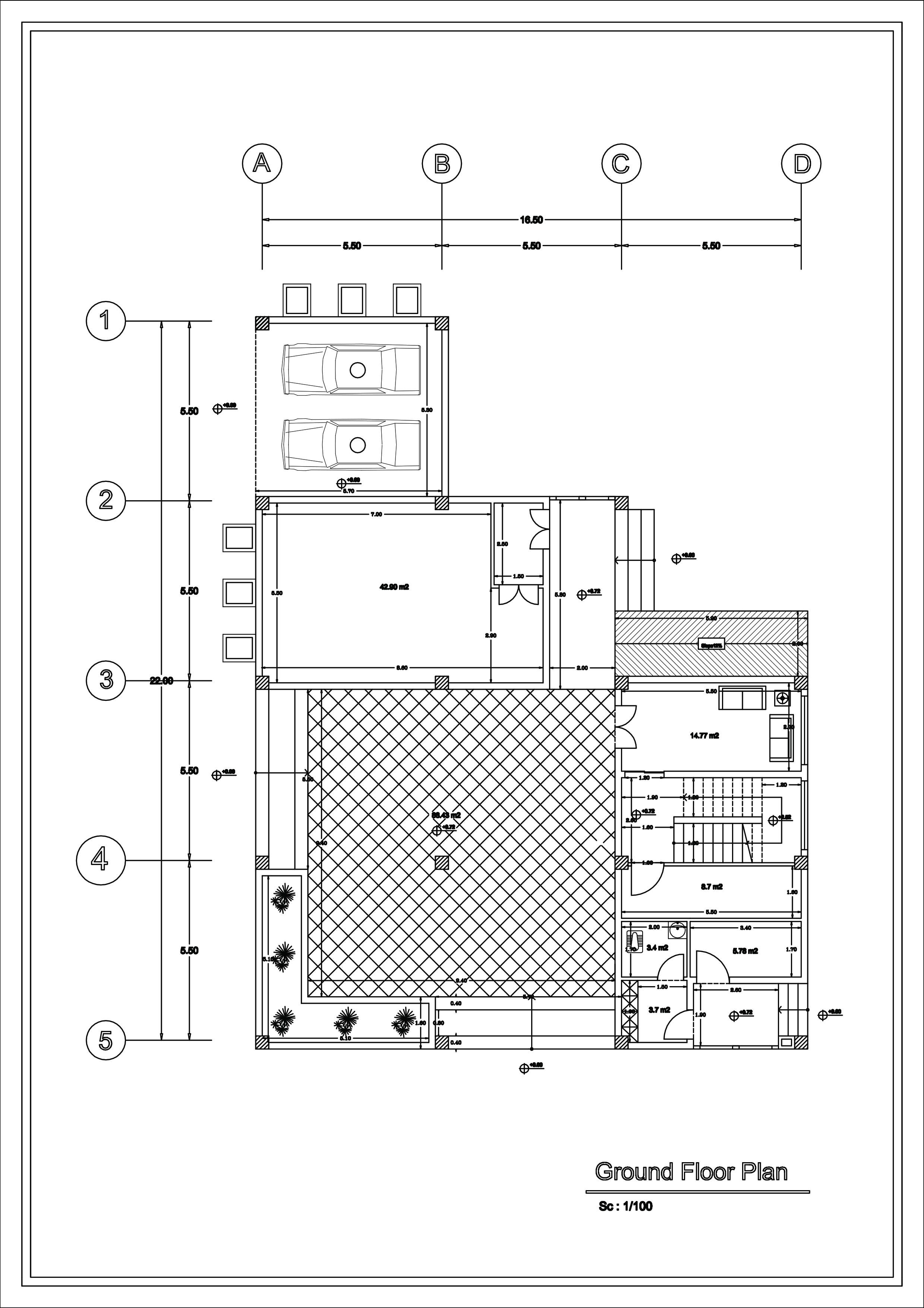
Amreh Villa Project

Show your plans & sketches

Project Description

-This villa is located in Mazandaran, where the combination of the jungles and a mountain is outstanding for the purpose of pleasure.

-The villa includes Several balconies  on the demand of  the main client in order to spend their time outdoor.

-There is also a roof garden witch gives the residence the chance to experience  the picturesque view of the jungles and the mountain.