KSU STORE

Project overview

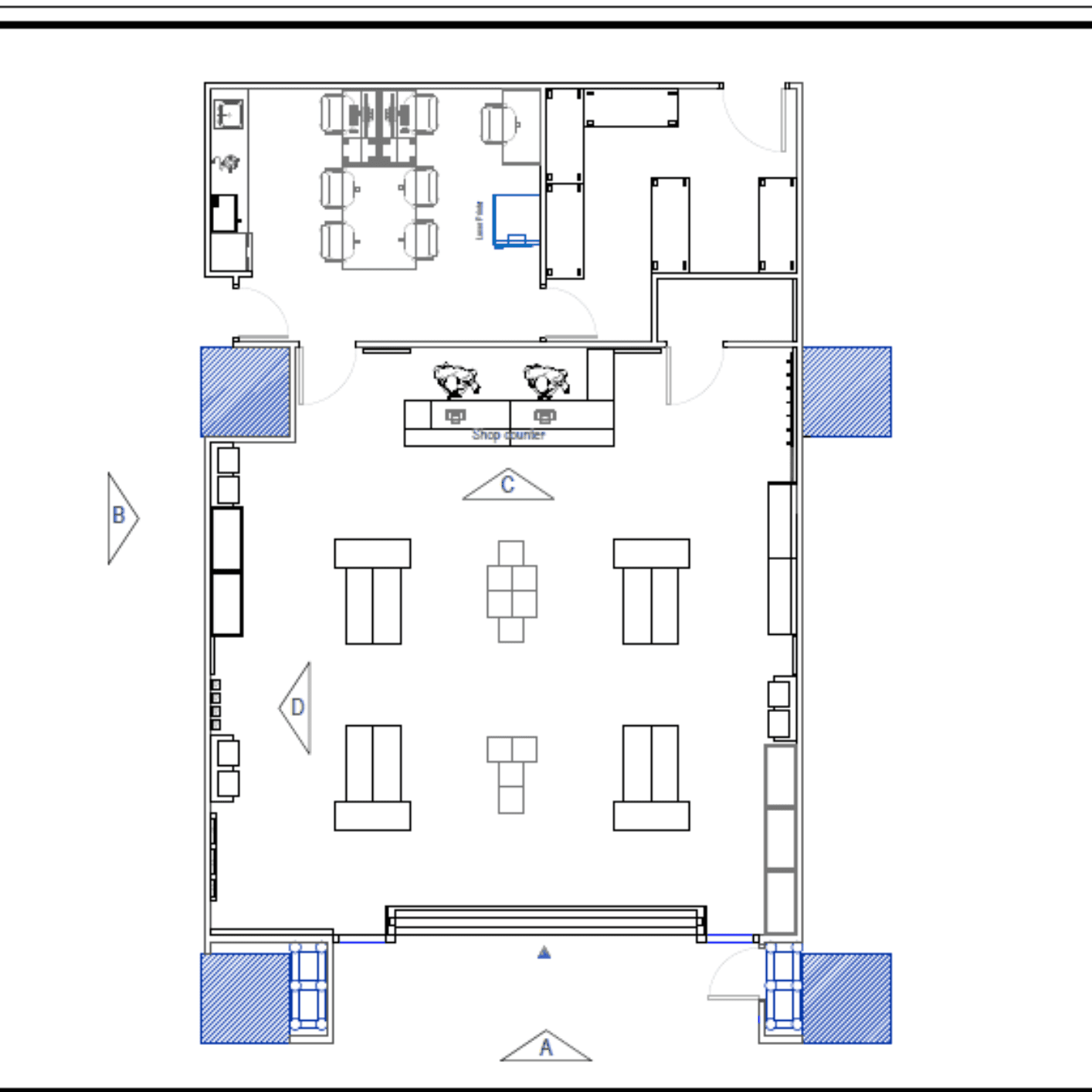
Located in the heart of the University Main Hall at King Saud University, the merchandise store was designed and executed as a vibrant retail space for university-branded merchandise.
For two months, our team handled the entire process — from concept design to full execution — creating a functional, inviting, and brand-aligned environment.
The design reflects the dynamic energy of campus life, while ensuring a seamless shopping experience for students, staff, and visitors alike.

Details

our role began with developing the concept design to reflect the brand’s identity while harmonizing with the university environment. We then proceeded to prepare detailed drawings, select materials, colors, and aesthetic elements. The full fit-out execution, including interior finishes, lighting, and electrical systems followed this. The final stage was furnishing, which involved designing and installing custom shelves, counters, and display units, along with adding the finishing touches that gave the store its modern and inviting character.

Specifications

Site location

KSU Main Hall

Date

2024

Status of the project

Project completed

Tools used

Photoshop, SketchUp

My sketches

3D Shots