Prince's grant home 

Project overview

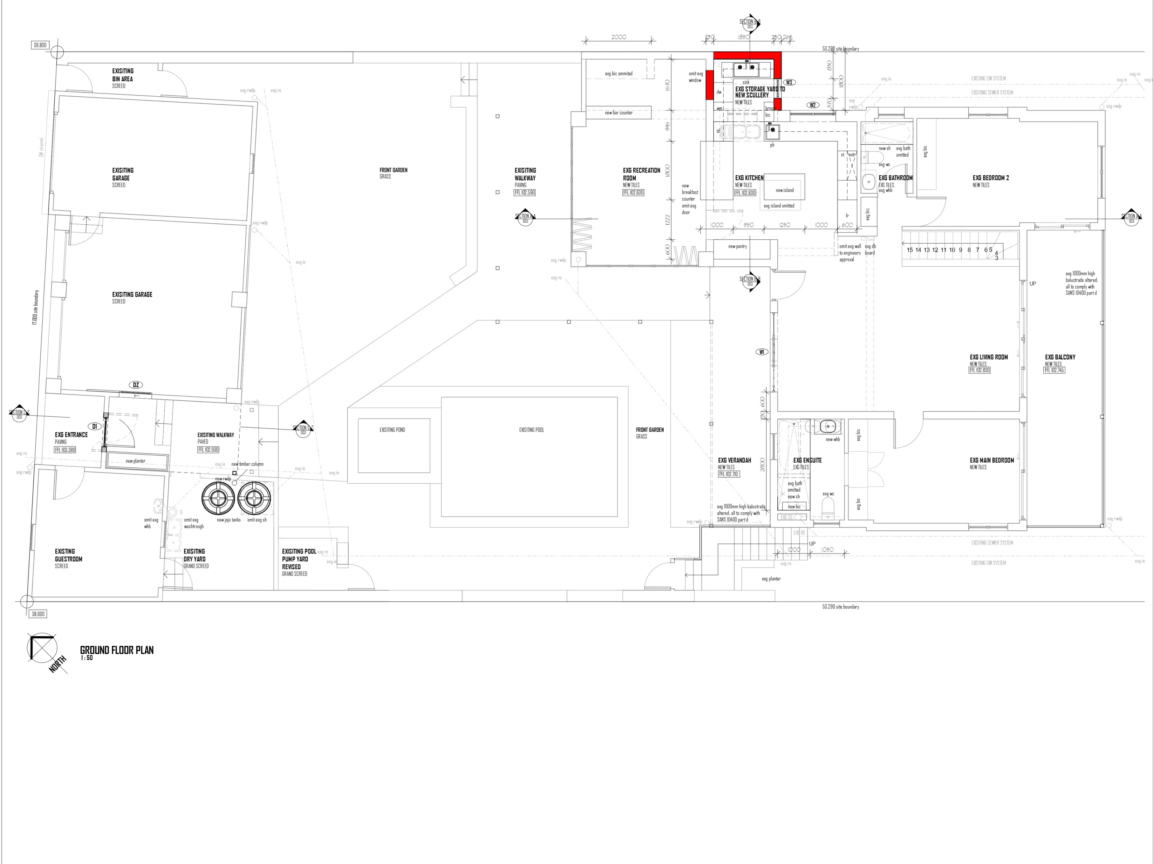
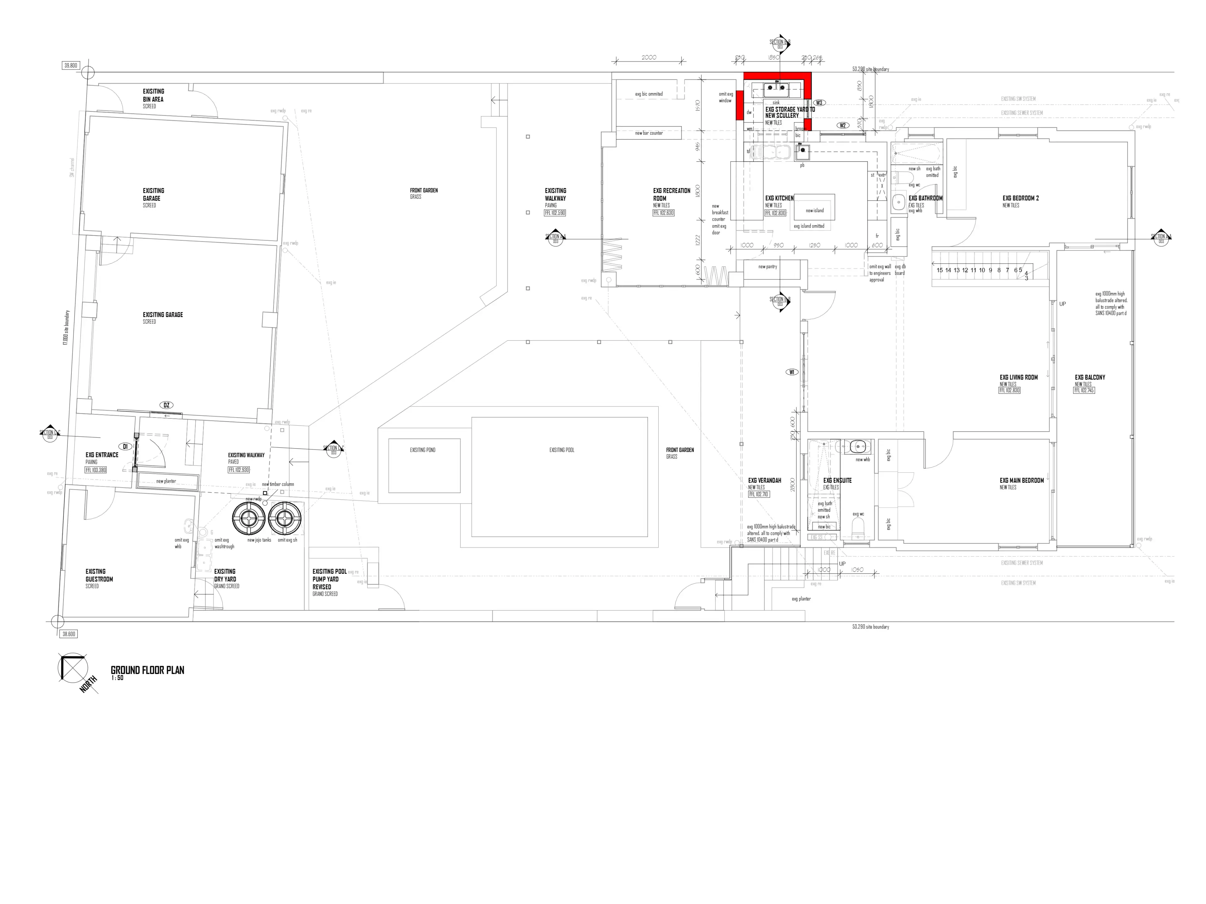
After the completion of the SAPS station, I was employed full time at ABA architects. During this time, my primary role was drafting as-built and renovation drawings for a range of different homes. This included site visits to measure up the homes, ensuring they matched the counsel drawings. This sloped residential property is located on Prince’s Grant golf estate. The owners of the home were renovating their downstairs space, kitchen and property entrance. I measured up their home and drafted their renovation counsel submission drawings.

 

Firm

ABA Architects

Date

2023

Software used

Revit

Council drawings