TK-YO

Project Details

11,500 ft2

Size of the property

November'21

Initiation Date

June'22

Completion Date

Goa, India

Location

About the project

In the midst of a huge influx of new-age restaurants in Goa is a noteworthy name, TK-YO. Catering to the growing market for Pan-Asian cuisine, TK-YO offers much to the tourist and local dwellers seeking a remarkable dining experience.

Set in the heart of Anjuna, a buzzing part of Goa, the TK-YO compound is spread over 11,500 Square feet of area. Sectioned into various spaces including an al-fresco seating around the bar, several Goan-style porches, an indoor dining area and a separately functional bakery, the overall setting boasts of a 200-seater capacity.

Area of site

11,500 Sqft

Initiation Date

November'2021

Status of the project

Completed | June'2022

Tools used

SketchUp | Enscape | AutoCad | Microsoft Powerpoint

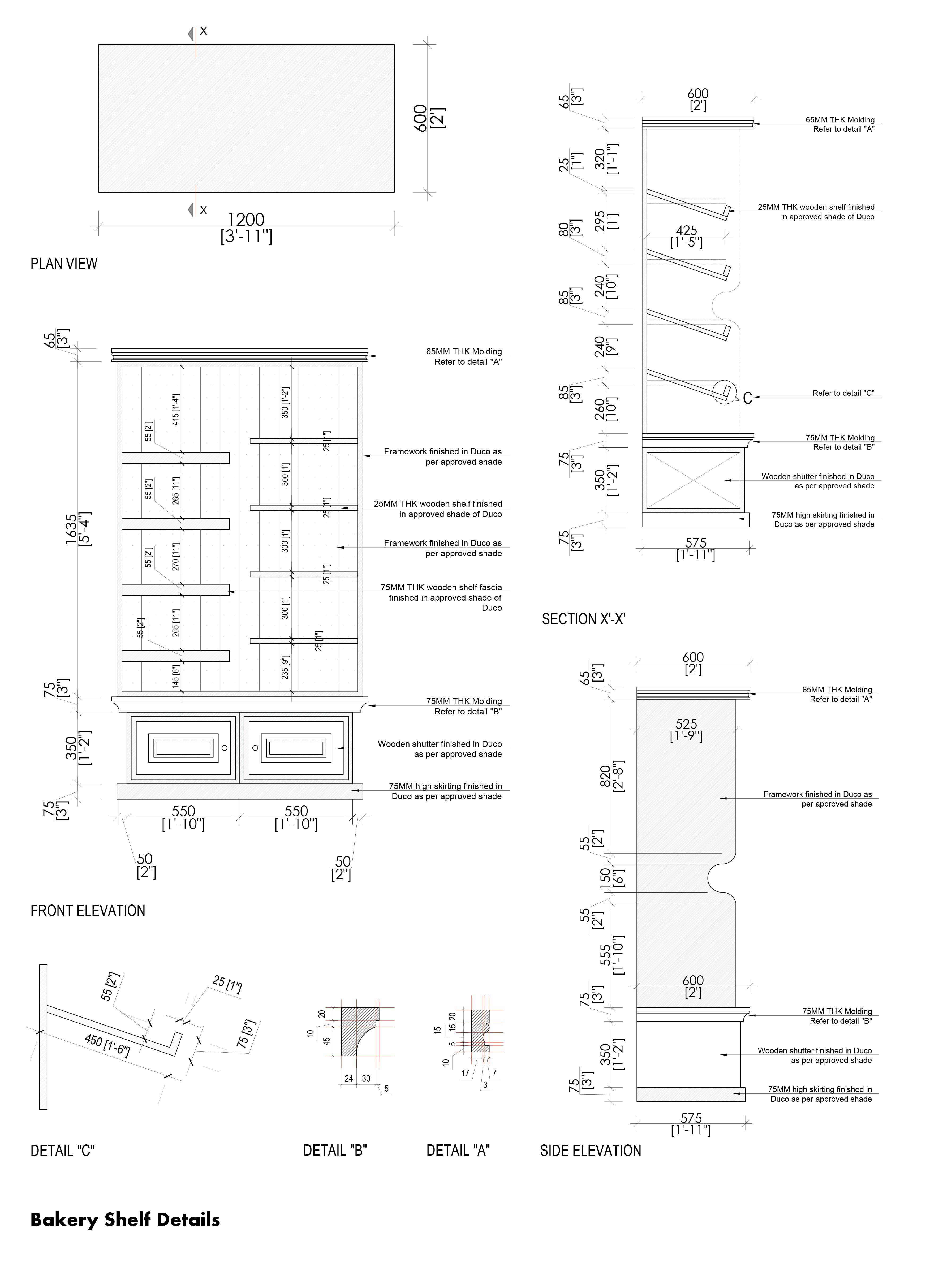
The Bakehouse

Taking the game of overlay of themes and colours to the next level, TK-YO bakehouse is an annexed bakery inspired by a mix of minimal Japanese bakeries and popular German bakehouses. TK-YO Bakehouse is synthesised in muted neutral and pastel colours, as opposed to the bold hues in other areas. A ceiling installation of hollow pipes with scattered lighting covers the ceiling. The entire room is enclosed in panoramic glass panes, and a massive 10 ft. glass door encased in a heavy iron frame. The bakehouse also shares its wall with the live grill section on the other side.

In this astounding hospitality project, we weaved together the relevance of a setting, the theme and ideation, the consequential colour palette, and the elements of space-making- to show how the mindful and targeted use of architectural design can significantly contribute to noteworthy and unforgettable dining experiences. These kinds of multisensory experiences in the tourism industry help elevate guest satisfaction, ever-inclined to draw importance to themes and concepts that lead to the curation and juxtaposition of different colours, shades and tones, furniture and lighting, and the smart play of zoning and conquering spaces, orchestrating the rich historical culture and legacy.

2D Drawings

Software used: AutoCAD

3D Visuals

Modeling Software: SketchUp
Rendering Software: Enscape

Project Gallery