SKYE

Project Details

4500 ft2

Size of the property

September'21

Initiation Date

December'21

Completion Date

Moradabad, India

Location

About the project

Skye, the resto-bar in Moradabad, India is poised to boost the city's nightlife with a chill-out vibe that allows guests to unwind and have a great time.

The rooftop lounge adheres to a modern, contemporary style catering to the town's local crowd that enjoys discovering Moradabad's flipside at night. With the aim of bringing a truly metropolitan lounge experience to the city dwellers of Moradabad, we designed a trendy and upbeat bar, especially for the local population. The rooftop lounge offers both indoor & outdoor dining experiences, with a deck serving as a balcony, overlooking the quiet cityscape of Moradabad. There are several architectural details incorporated into the design that enhance the overall spatial ambiance of the lounge.

Area of site

4500 Sqft

Initiation Date

September'2021

Status of the project

Completed | December'2021

Tools used

AutoCad | 3Ds Max & Vray | Microsoft Powerpoint

Moradabad's Ultimate Party Destination

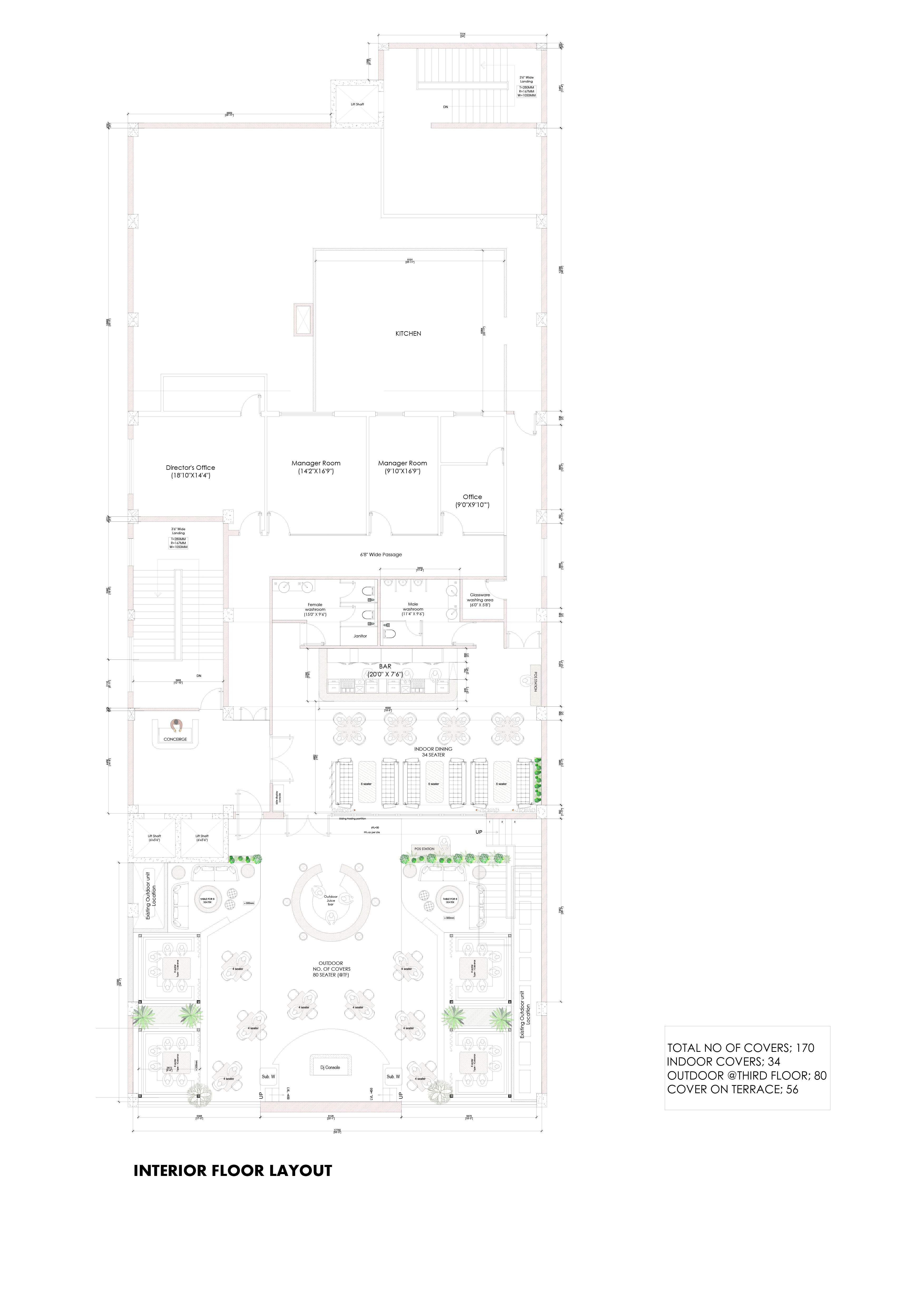
A distinctive indoor and outdoor bar, cabana-style seating, and lavish lighting have been highlighted as key elements that make the lounge striking yet elegant. The cabanas sit modishly on the sides of the outdoor space, surrounding a unique circular bar, which together accentuates the modern aesthetics of the place. The indoor area, which includes seating, a bar, and restrooms, slowly unfolds into a large open area, revealing a stage and an adjacent outdoor bar. 

The mesh island bar placed in the center of the terrace stands strong as the eye-catching feature of the entire lounge. The bar features a robust metal frame standing on six pillars, with peripheral lighting that gives it a glowing look in the evenings. Large pivotal glass panels serve as the physical barrier between the indoors and the outdoors. Thus, the visitors seated inside have an unrestricted view of the eccentric outdoor bar and the stage. The outdoor deck offers cozy seating with a view,  as the visitors can observe the lounge's pristine features while enjoying the city’s picturesque nightscape. The cabanas also serve as a point of focus, flaunting the desired concept of the resto-bar. The thoughtful planning of the cabanas with planters acting as green pockets offered a spacious and airy quality to the resto-bar. The assortment of various plants in planter boxes in between the seats assisted in purifying the atmosphere, maintaining the character of the space, and breaking the visual monotony of the lounge.


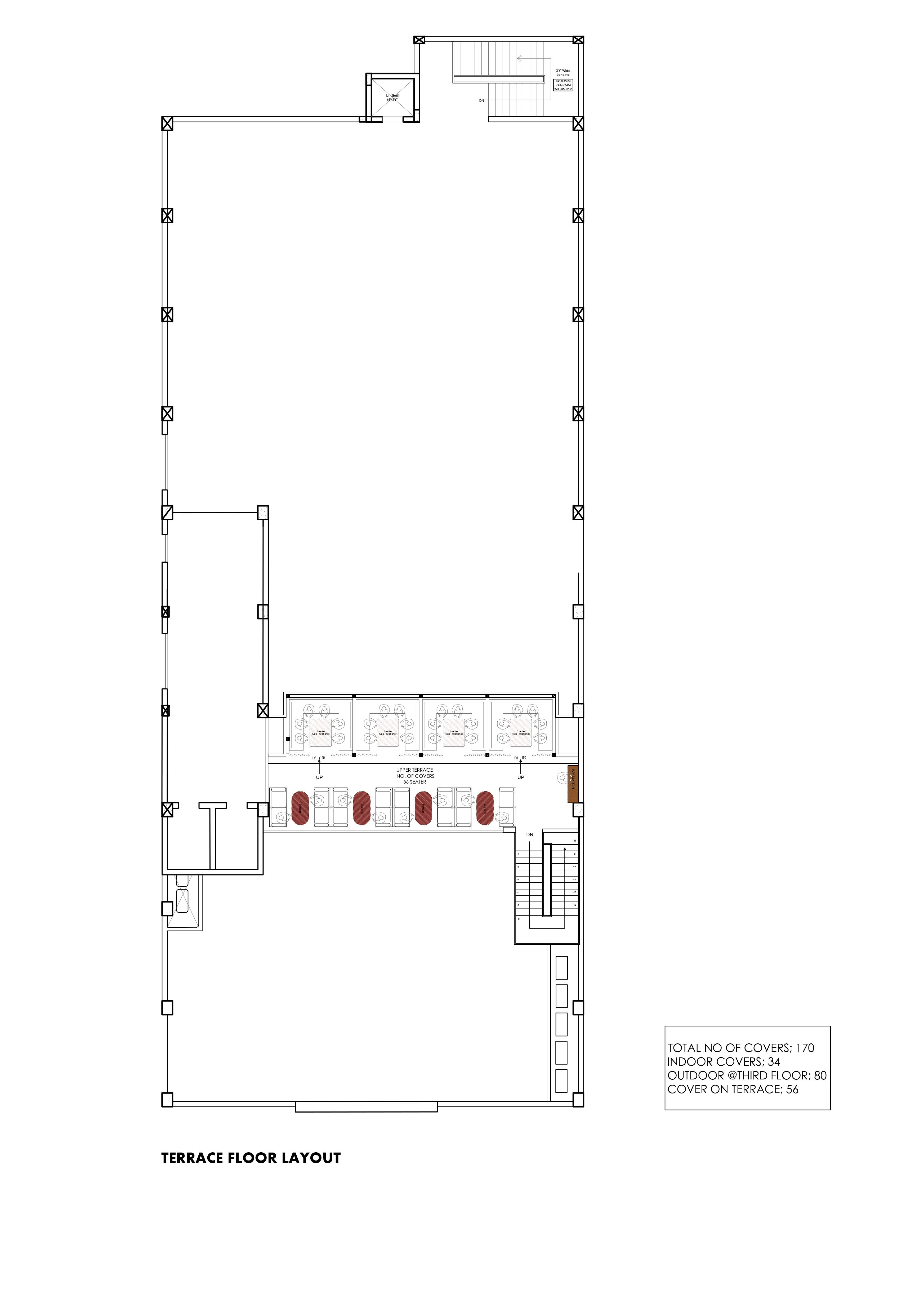
2D Drawings

Software used: AutoCAD

Project Gallery