NIZAMUDDIN RESIDENCE

Project Details

9000 ft2

Size of the property

February'19

Initiation Date

January'21

Completion Date

Delhi, India

Location

About the project

A contemporary minimalistic and frugal design approach was adopted as the brief called for a humble abode that wasn’t ostentatious or gaudy. With clean lines and a statement design vocabulary incorporating double-height volumes and enormous atriums, this house is strikingly unique and highly innovative in nature. Each opening of the dwelling is designed such that it overlooks Humayun's Tomb. The notion was to create a unique language and an all-new narrative of scale provided. There is a myriad of perspectives and scales - from a closed driveway when moving into the double-height wall to the horizontally spaced living room, the design ensures that the inhabitants never feel tedious.

Located in the hustle and bustle of New Delhi, this splendid residence serves the purpose of an office cum residential space for a lawyer. The notion behind this magnificent project was for the residence to become a hybrid of a residence and a workspace, and the client's second home where he could come in to stay with his family now and then.

Area of site

9000 Sqft

Initiation Date

February'2019

Status of the project

Completed | January'2021

Tools used

SketchUp | Enscape | AutoCad | Microsoft Powerpoint

Façade

Designed with meticulous attention to privacy, the façade of this residential abode stands as a testament to both functionality and aesthetic innovation. An ingenious arrangement of wooden louvers envelops the entirety of the exterior, meticulously engineered to offer seclusion while simultaneously inviting glimpses of the surrounding landscape from within. Crafted with a keen eye for detail and architectural finesse, these louvers not only serve as guardians of privacy but also as sculptural elements that imbue the facade with a sense of dynamic movement and depth.

However, the true pièce de résistance of this architectural marvel lies in the integration of a captivating mosaic art mural, masterfully created by the esteemed artist, Mini Mason. Positioned strategically amidst the wooden louvers, this bespoke artwork not only serves as a striking visual focal point but also lends a distinct identity to the residence, elevating it to the status of a veritable landmark within its environs.

As sunlight dances across the surface of the mosaic throughout the day, casting intricate patterns of light and shadow, the facade undergoes a mesmerizing transformation, evoking a sense of wonder and enchantment in all who behold it. Whether bathed in the golden glow of dawn or illuminated by the soft hues of twilight, the facade remains a captivating sight, drawing the gaze of passersby and inspiring admiration from afar.

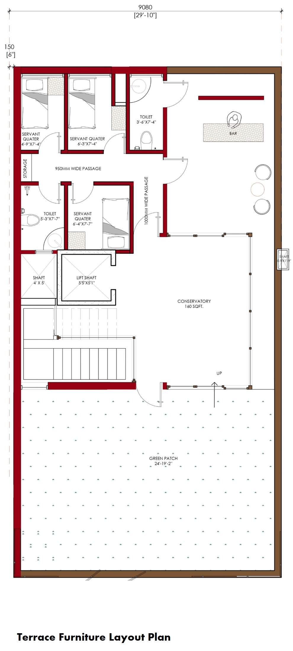
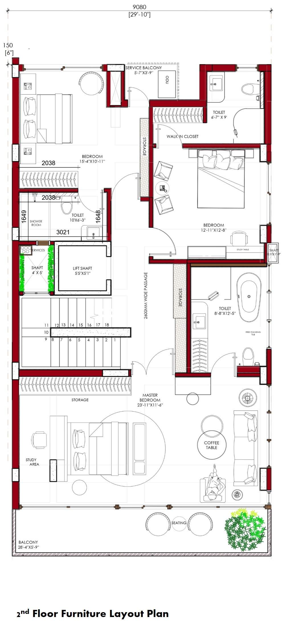
2D Drawings

Software used: AutoCAD

Project Gallery